查看完整案例


收藏

下载
feel the kindness of one’s family
以灵活性绝佳的「回型空间」为主轴,拆卸原墙面改作结合T5灯管赋予暖意,并以两片铁件玻璃滑门调整场域作用,依需求调整为独立或开放。
因为屋主平时喜欢户外活动,因此初期以蓝色为主调,但因考虑居家色彩不宜过度缤纷,因此选用低彩度的丹宁湛蓝、浅蓝交迭,赋予小宅清新自由的空气感。
客厅有别于传统将横梁淡化做法,刻意加重横梁,结合深色油漆包覆,在减少压迫的同时、创造空间的立体层次,格局采用开放式设计串连三厅,以此加大活动区域,并运用丹
宁湛蓝的墙面、搭配爱马仕橙沙发,传递舒适温馨的氛围。
厨房维持原有模样,仅用木地板延伸,餐厅则放置四人桌,满足朋友相聚聊天用餐的需要,搭配白色木家具,呼应整体色调。
案例信息
项目地点:重庆万州
项目类型:住宅
项目性质:半包
项目面积:㎡
114㎡
项目风格:北欧
设计
+施工:重庆零设装饰设计有限公司
主要用材:乳胶漆、木纹砖、六角花砖
客户需求
本案业主是一对年轻夫妻,希望在不大面积的改动墙体的情况下,满足设计上新怡的作品,墙面只想用乳胶漆。内阳台有储藏空间,有一面必须有植物墙。
设计理念
设计房子,就像业主制作甜品的过程,每一分味道都是精心研制,一笔一画融灌的都是对生活的热爱;因此设计从一开始就有比较清晰的定位,通过设计,给客户一个温馨的家。
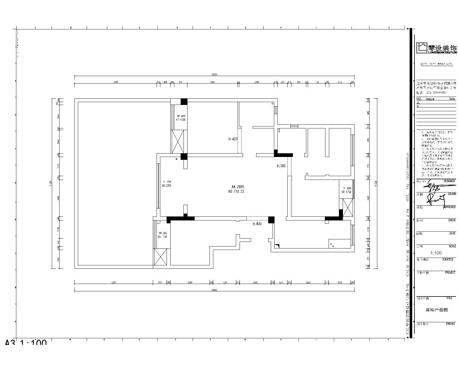
户型改造
原户型厨房进门比较小,在进门区自然光照射不完,形成进门死光的局限,主卧门与厕所,大门三点一线,破财,破运。所以为使空间更开阔;改掉餐厅墙将24墙做12墙并内推20公分将厨房门卫1300的单槽滑门,原卫生间较小,并对与进门口,所以将主卧进门移方位,采用干区分离的方法,扩大衣帽间的同时,主卧也得到延伸;餐厅采用卡座座靠,不仅起到了空间压缩还多储物的作用,还保证了美观度。
设计方案
设计方案
▼客厅 Living room
▼客厅 Living room
▼客厅 Living room
北欧的色彩搭配貌似不经意,实则总能获得令人印象深刻的效果。黑白色
“钢琴”地毯在视觉上拉伸空间层次,柠檬黄和绿植系布艺抱枕与奇幻森林般的窗帘相呼应;每一处都有讲究,既有生活的随意,又有视觉的平衡
▼客厅 Living room
▼客厅 Living room
▼客厅 Living room
▼客厅 Living room
卧室
Master Bedroom
ll
L.S I I S.C
客服
消息
收藏
下载
最近













