查看完整案例


收藏

下载
项目设计机构:武汉 ID 室内设计工作室
项目地址:翰林紫苑
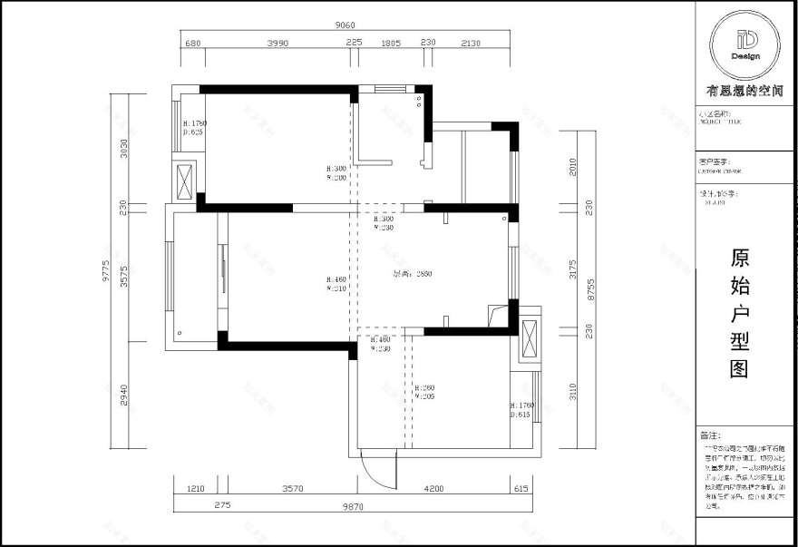
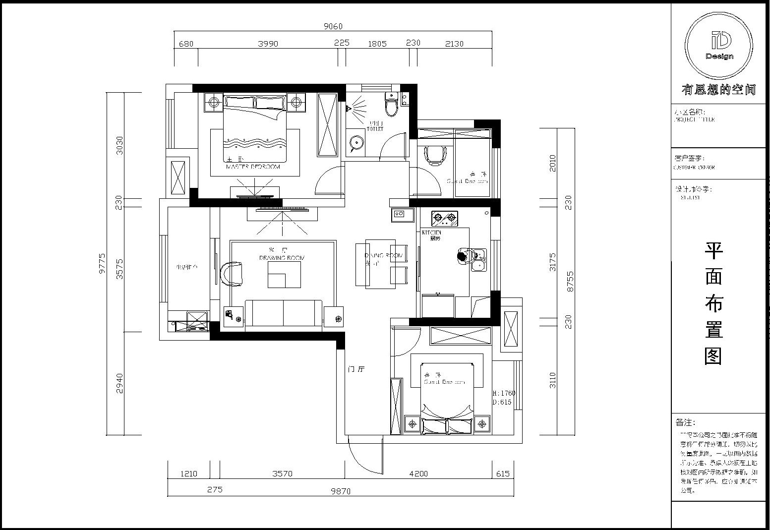
建筑面积:95㎡
项目户型:三室两厅
工程造价:11.8 万(不含家具、电器、设计费)
如果我们把房子称为家,那它一定是个充满人情味暖心的空间。每样家居用品不仅要展现充分的使用功能,更要有惬意的视觉美感和舒适使用感受。恰好我们做到了!
这家的主人是一位帅气可爱的兵哥哥,由于部队原因,只有每周末有空。所以尤为重视和设计师的每一次沟通,也因为,这是为爱妻精心打造的婚房。
兵哥哥说她酷爱灰色,说完,嘴角上扬。脸上的笑容让我们仿佛看到了他对她的那份宠爱。
客厅以灰色为基调
用原木色地板衬托北欧风格
优美弧形的沙发手把
木质纹理带来清新自然风
亲切温馨的气氛应运而生
蓝的沙发、绿的抱枕、碎花靠背
赋予了和谐惬意的生活氛围
北欧元素浓厚的魔豆灯必不可少
客餐厅彼此相通
空间显得大而宽阔
整套胡桃木家具复古而自然
厨房经典的黑白配让视觉上更显干净。
DIY 的黑板墙给厨房增加了不少情趣。
白色的厨房永远不担心过时
清爽简洁,集美观与实用性一体
拼花地砖洋溢浓郁的北欧气息
主卧延续客厅的色调
墙壁由浅灰色乳胶漆刷至而成
搭配胡桃木色床架
床头淡雅的荷花
简单不失情调
具有强大储物空间的书架
孩子的玩具、书籍有了归属地
为了保证儿童健康成长
房间选用环保漆
撞色窗帘、复古小吉它
属于孩子的那份童趣
设计师以提高空间利用率作为重点
干湿区合理划分
充分利用空白墙面做功能挂件
墙面采用北欧风格中典型的黑白方砖
空间布局紧凑,简单实用
从配色到材质,从家具的摆放到器具的陈列,都要有一种恰到好处的和谐之美。本案中业主的整套胡桃木家具(床除外)由工作室统一采购,共计 22500 元,节省预算同时又能确保效果。整体设计没有浓烈的色彩,也没有凌厉的线条,让人身处空间,倍感舒适、放松。再次感谢业主对我们的信任,施工过程中全力配合。
每一个屋子都是一个小宇宙
你的房子 你的样子
--------关于武汉 ID 设计工作室--------工作室地址:东亭世纪彩城丽苑 2 单元 1801
客服
消息
收藏
下载
最近





















