查看完整案例


收藏

下载
简洁的北欧风格,有点冷冷的感觉。而日式风格色彩则多偏重于原木色,以及其他天然材料颜色,形成朴素的自然风格,清新自然、简洁淡雅。这两种风格结合起来,让你拥有一个温暖又干净简约的家。整个空间的特点大多以典雅的色调为主,带着古朴神秘的色彩,多偏重于原木色,以及竹、藤、麻和其他天然材料颜色,形成朴素的自然风格。
案例名称:重庆·和黄御峰
户型面积:105平米
设计风格:日式混搭北欧风格
硬装设计:DE设计事务所 黄妮娜
软装设计:DE设计事务所 舒心
整体费用:38W
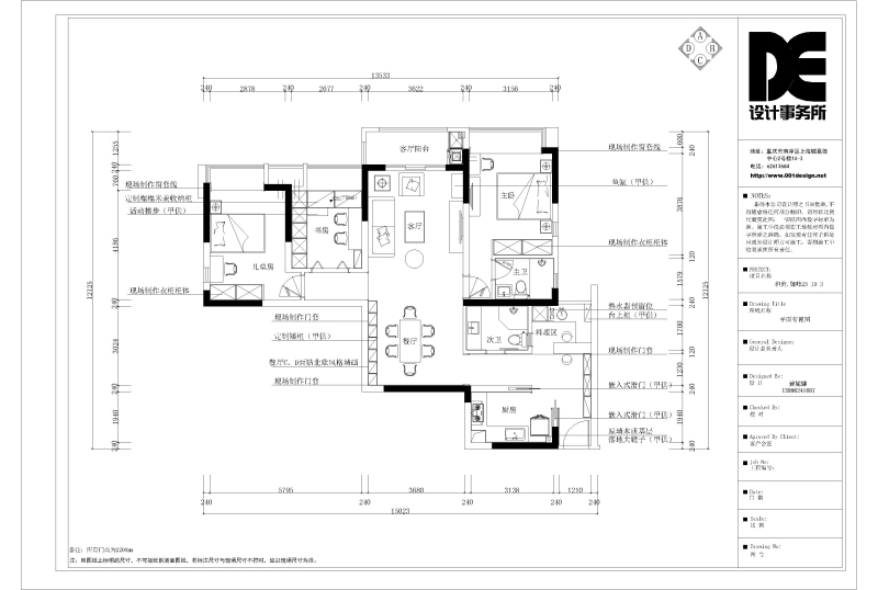
【户型】
【客厅】
【厨房】
【餐厅】
【吧台】
【主卧室】
【次卧室】
【书房】
【卫生间】
客服
消息
收藏
下载
最近

































