查看完整案例


收藏

下载
Argentina Corzuelas Residential
设计方:Manuel Gonzalez Veglia , Dolores Menso
位置:阿根廷 科尔多瓦
分类:居住建筑
内容:实景照片
图片:19张
摄影师:Gonzalo Viramonte
这是由Manuel Gonzalez Veglia与 Dolores Menso联合设计的Corzuelas住宅,位于阿根廷科尔多瓦市郊一个新社区里。该项目旨在成为一个冷静而有序发展的干预,一个置身于混杂背景中的僻静场所。一旦走进该住宅的室内,就能理解由该建筑结构定义的空间序列。通过结构,建筑师定义了了该建筑的造型、空间和运动。为了减少和控制建设成本,该项目使用了不昂贵的模块化元素(如混凝土块)以及不需要维护的材料(如暴露混凝土及彩涂金属板)。
译者:筑龙网艾比
From the architect. The house is located in a new community on the outskirts of the city. The project is meant to be a sober and orderly intervention; a pause within a visually noisy context. Once you walk in the interior of the house, one understands that the spacial sequence is defined by its structure. By structure we mean shape, space and movement.
In an attempt to reduce, but above all, keep control of construction costs, inexpensive modular elements were used –e.g. concrete blocks – as well as materials that do not require maintenance - e.g. exposed concrete and pre-painted metal panels-. Concrete blocks comprise the exterior envelope of the house with metal framing with gypsum board on the inside. The metal framing hosts all of the pipes and wires without interfering with the CMU, while providing optimal thermal insulation. The project is laid over a grid of parallel walls which run from east to west, crossed by 4 beams in a north-south orientation. Walls define spaces and there are sloped slabs between beams.
阿根廷Corzuelas住宅外部实景图
阿根廷Corzuelas住宅之局部实景图
阿根廷Corzuelas住宅内部实景图
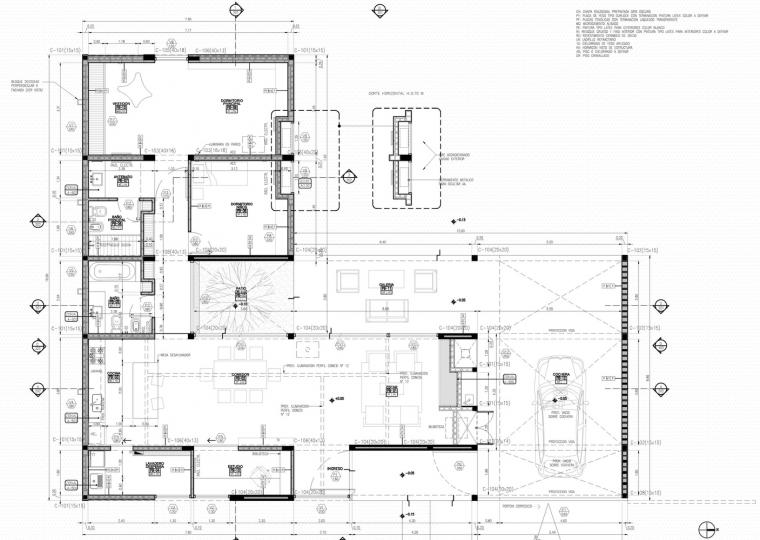
阿根廷Corzuelas
住宅平面图
阿根廷Corzuelas住宅平面图
阿根廷Corzuelas住宅示意图
客服
消息
收藏
下载
最近







































