查看完整案例


收藏

下载
Australia MY80 Apartment building
设计方:Hayball
位置:澳大利亚
分类:居住建筑
内容:实景照片
图片:15张
摄影师:Peter Clarke, Shannon McGrath
这是由Hayball设计的MY80公寓楼,位于澳大利亚墨尔本中央商务区。该项目设计概念是垂直聚落,设有底层零售空间、商业楼宇和公寓。通过其独特的造型、材料和衔接,该项目创建了一个紧凑的布局。通过激活地面,与公共空间建立联系,该塔楼促进了城市活力。该项目提供487套公寓,为市中心提供了重要的居住空间。
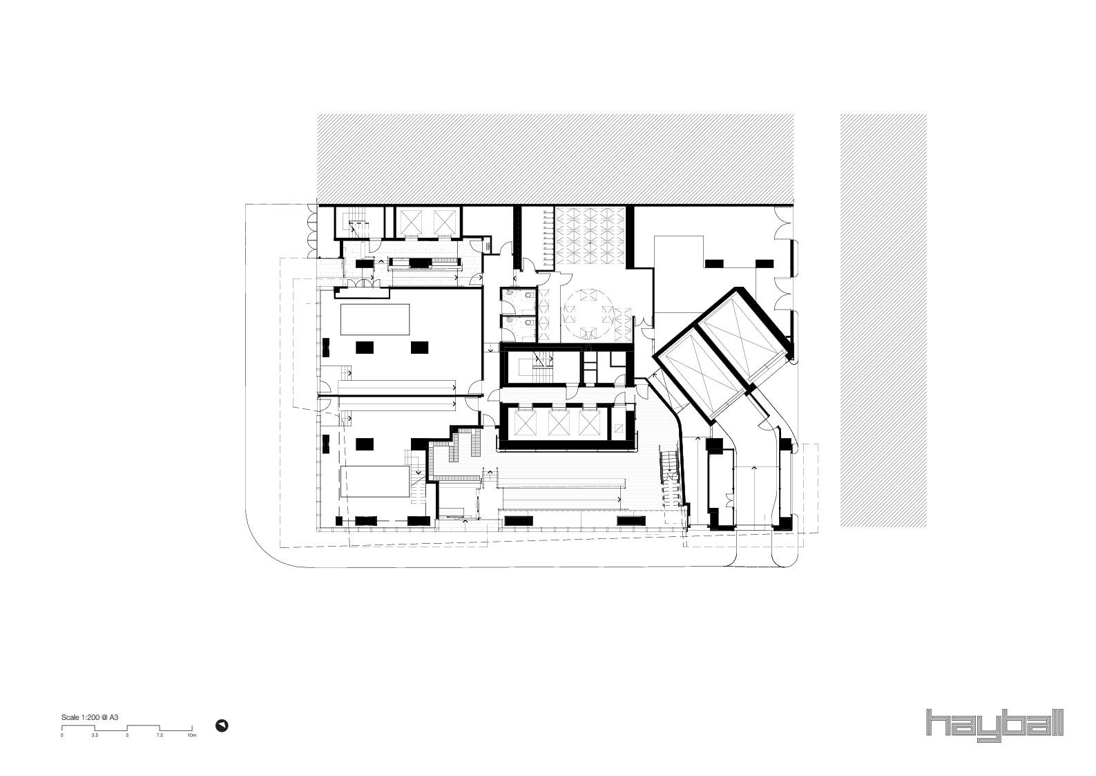
公共空间和商业空间丰富了塔楼的活动内容,并为居民提供了多种生活设施,并迎合了高层住户。这些设施包括休息区及户外露台、居民餐饮区、游泳池及桑拿、首层的电影院及购物中心,以及53层的屋顶酒吧及户外露台,提供壮丽的视野。公寓是经济型的,而公用区域提供了宽敞的专用空间,如餐饮区和设计师厨房,有助举办大规模娱乐活动,丰富私人的公寓人生活。
译者: 艾比
From the architect. MY80 is an apartment tower with a confident presence in the central business district of Melbourne, Australia. Designed as a vertical neighbourhood it features retail spaces at ground level, commercial premises and apartments.Through its distinctive form, materiality and articulation, MY80 is stitched neatly into a tight urban site. By activating the ground plane and establishing genuine connections to the public realm, the tower contributes to the city’s vitality. With 487 apartments it adds a significant residential population to the city’s centre.
Public and communal spaces enrich the activity of the tower, which offers residents a range of lifestyle services catering to a sophisticated set of high-rise dwellers. These include a lounge and external terrace, residents dining area, swimming pool and sauna, cinema and business centre on level 1, and a rooftop bar and external terrace with impressive views on level 53. The apartments are structured to be affordable, with the communal areas providing generous specialised spaces – such as the dining room with designer kitchen for entertaining on a large scale – that complement private apartment living.
The drive for more lifestyle facilities in part arises by the pressure on apartment sizes from construction and land costs. High design quality means that smaller spaces can still excel. At MY80, every last square metre is maximised from a design point of view, and what is on offer within the tower is complementary to what’s available locally.
MY80 is located in a vibrant part of the city, in close proximity to key Melbourne institutions including the Queen Victoria Market, the State Library of Victoria, RMIT University, Melbourne Central shopping complex and a number of key public green spaces. The area is rapidly changing. Recent, current and proposed high rise residential developments and increased numbers of residents are creating a high density, walkable neighbourhood unprecedented in Melbourne.
澳大利亚MY80公寓楼外部实景图
澳大利亚MY80公寓楼外部夜景实景图
澳大利亚MY80公寓楼内部实景图
澳大利亚MY80公寓楼平面图
澳大利亚MY80公寓楼立面图
客服
消息
收藏
下载
最近

















