查看完整案例


收藏

下载
121 Residential building
位置:巴拉圭 亚松森
分类:居住建筑
内容:实景照片
图片:24张
摄影师:Federico Cairoli
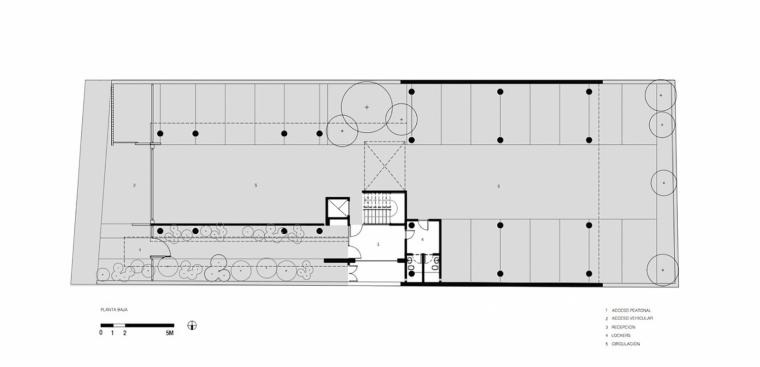
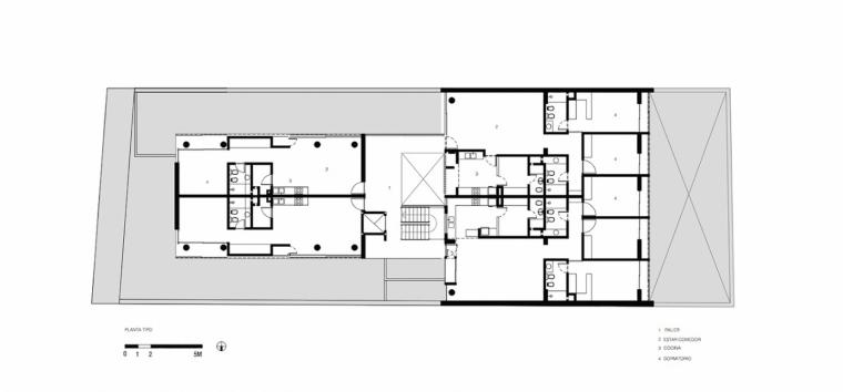
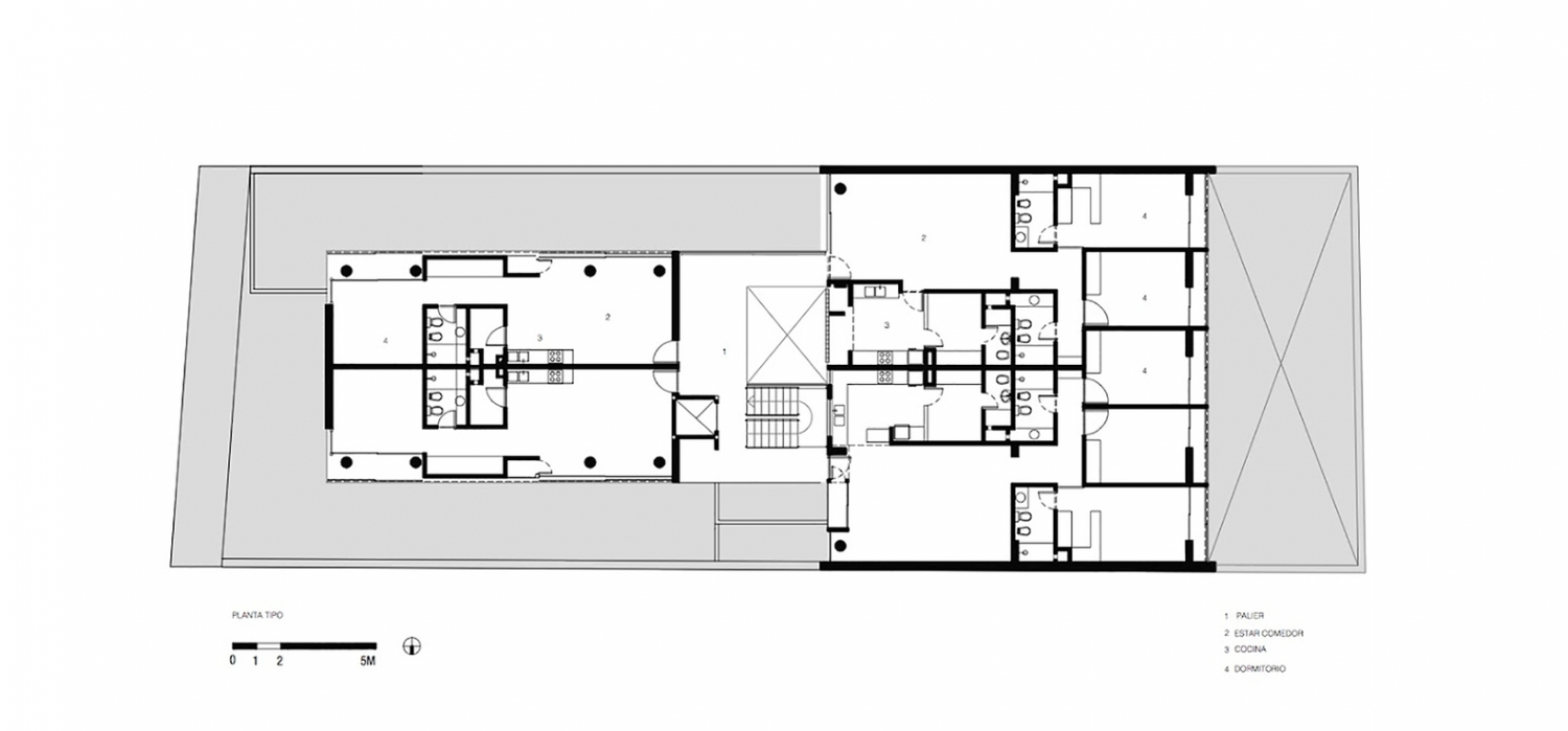
项目坐落在亚松森,它包含了一栋三层楼的住宅楼。住宅楼的一楼被用来作为入口和车库。剩下的三个层面是典型的楼层平面,每一个层面都包含有两个阁楼、一套两居室的单元和一套三居室的单元。楼顶被当成了休闲的平台和烤肉区域。住宅大楼由两栋建筑体量构成。一栋十字形的建筑体量包含了公寓,一栋纵向的建筑体量后退了一定的距离,以便十字形的建筑体量能看见场址前面的一个广场。
这两栋建筑体量是由一个中央的核心连接起来的,这个中央的核心包含了楼梯和电梯,并创造了一个高四层楼的庭院。整栋建筑体量的结构都由后张的、20厘米厚的厚板制成,这有利于建筑体量的石工和构造。完成后的建筑体量大部分都是未加工、未修饰的状态。
译者:蝈蝈
Located in Asuncion, the project consists of an apartment building of three floors. The ground floor is dedicated to access and parking.The next three levels are typical floor plans, each consisting of two lofts, one two-bedroom unit, and a three bedroom unit. The top floor is intended for a recreational terrace and barbecue area.The building is made up of two volumes. A cross volume containing the apartments, and a longitudinal one with retreats to allow views of the cross volume toward a plaza in front of the plot.
These two volumes are linked by a central core that houses the stairs and elevator, creating a courtyard 4 levels high.The structure of the entire building is made up of post-tensioned slabs 20 cm thick, which facilitates the construction of masonry and framing.The materials used in the raw construction are mostly the completion of the building.
巴拉圭罗萨斯121住宅大楼外部实景图
巴拉圭罗萨斯121住宅大楼外部局部实景图
巴拉圭罗萨斯121住宅大楼之局部实景图
巴拉圭罗萨斯121住宅大楼内部实景图
巴拉圭罗萨斯121住宅大楼立面图
巴拉圭罗萨斯121住宅大楼平面图
客服
消息
收藏
下载
最近

















































