查看完整案例


收藏

下载
America Rock Box
设计方:Schwartz and Architecture事务所
位置:美国
分类:居住建筑
内容:实景照片
图片:35张
摄影师:Bruce Damonte
这是由Schwartz and Architecture事务所设计的岩石盒子,位于美国索玛诺县。设计通过简单的变形来戏剧性地放大场地的感觉和创造膨胀的空间,设计的每个调整都需要协调内部功能和外部环境的关系,将对环境的影响最小化。取名“岩石盒子”是对有限预算和困难场地环境的呼应。建筑需在2000平方英尺的范围内满足所有室内外所需功能。位于如此暴露的场地环境,而同时又作为狂热葡萄酒的乡郡,对于设计提出一个更加严苛的环境要求,需要全年舒适的环境。悬臂式的甲板和中央庭院从盒子上切割出来,以确保在一整天温和的阳光和足够的阴影。特别是,内部屋檐的部分出挑和外部玻璃的外凸构造,确保冬季温暖阳光的同时避免夏季眩光。当光线照到中央庭院的时候,户外空间便活跃起来,同时伴随着凉爽的微风。
译者:筑龙网 艾比
With an economy of means, this simple form morphs to amplify the experience of the dramatic site and create an expansive feeling home that belies its small footprint. Each adjustment to the diagrammatic box negotiates the functional and environmental needs to foster self-contained and site-specific living with a minimal environmental impact.
The tightly constrained footprint of the affectionately named “Box on the Rock” is a response to a limited budget and difficult site. Shallow underground hillside waterways run across the site often daylighting in unexpected and unwanted locations.These necessitated relatively expensive pier footings thus motivating an extremely efficient 2,000 sq ft footprint. With no initial resources to develop the wild scrub and rock landscape of the 3-acre property, the home becomes a lone outpost settling the higher ground of the larger natural site --a literal box on a rock.Given these limitations, the architecture of this outpost needs to provide for all indoor and outdoor functions within its area. With the extremes of the wine country microclimate on the exposed site, this becomes an even more critical requirement for year-round comfort.
The central courtyard and the cantilevered deck are strategically carved out of the diagrammatic box to ensure that over the course of the day, temperate options for both sun and shade are always available. In particular, the geometry of the overhang at the front cantilevered deck and the inward angle of its exterior glass walls are carefully calibrated to capture morning sun and winter warming while shielding the internal space from the harshest summer glare.Later in the day the central courtyard comes alive as the sunniest developed outdoor space, yet one that is naturally cooled by capturing the valley cross breezes.
美国岩石盒子外部实景图
美国岩石盒子外部夜景实景图
美国岩石盒子内部实景图
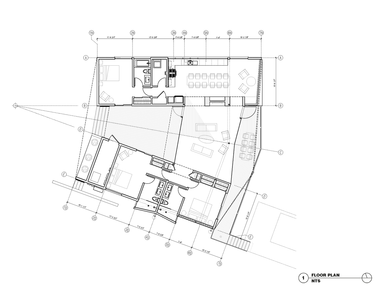
美国岩石盒子平面图
美国岩石盒子示意图
美国岩石盒子剖面图
美国岩石盒子立面图
客服
消息
收藏
下载
最近





































