查看完整案例


收藏

下载
Lugo A’Bodega Residential
设计方:Cubus
位置:西班牙 卢戈
分类:居住建筑
内容:实景照片
图片:21张
与住宅连接在一起的萨拉克旧石头粮酒厂是很异类的建筑体量,这些粮酒厂建筑体量也是当地经济活动展开的地方,比如保存火腿、葡萄酒和烈酒,除此之外还保存秸秆和喂养牲口。这个项目完全修复了这样子的一个旧酒窖,并将这个旧酒窖转变成了一个新的住宅。项目包含了三个部分:基本没有改变的、包含了两个部分的原始建筑体量;一个两层楼高的干草堆;一个一层楼的次级建筑体量,这个建筑体量还附有一个牲口圈和一个酒窖。这三部分都是半掩埋式的,住宅西部的墙壁是封闭的,但是却向东部的风景敞开。
住宅设计考虑到了原始的建筑体量和当地的建筑风格。住宅所在的村庄很和谐:石头建造的建筑体量和原始的野草地之间很平衡。住宅的提案并不想打破这样的均衡,所以住宅非常尊重原始墙壁的限制。住宅在没有放弃自己建筑特色的情况下融入了当地建筑风格(干燥的石头、地址构造和很少的开口)的价值观。修建住宅使用的是当地的材料。修建住宅使用的是原始的干燥石头墙和石板屋顶。
译者:蝈蝈
The old stone wineries of the Ribeira Sacra (Galicia) were (and are) heterogeneous constructions linked to house where the activities of the local economy are developed, such as preserving ham, wine and spirits in addition to storing straw and putting the beasts to rest. The project fully recovers one of these old cellars to convert it into a new home. The project is based on three premises:The initial volume consists of two bodies that remain virtually unchanged: a two-storey haystack and a second volume with one floor that integrated the beasts place and the wine cellar. Both are semi buried by the road against the west facade, and open to east across the landscape.
- Respect the initial volume and the local architecture. The village is harmonious: stone buildings and the existing wild grass wild are balanced. The proposal doesn’t want to break this equilibrium so it works respecting the limits of the existing walls. It also integrates the values ??of the local architecture (volumes of dry stone, tectonics, with only a few holes) without renouncing to it’s own language.- Local materials. It’s created a case with the existing dry stone walls and slate roof (recovered from an old house).
卢戈A’Bodega住宅外部实景图
卢戈A’Bodega住宅内部实景图
卢戈A’Bodega住宅模型图
卢戈A’Bodega
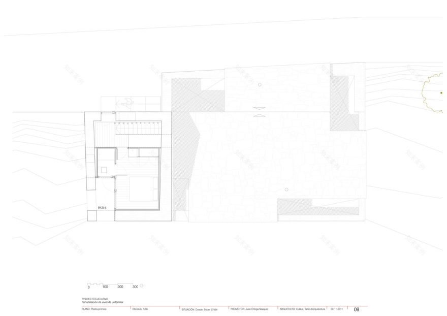
住宅平面图
卢戈A’Bodega住宅平面图
卢戈A’Bodega住宅剖面图
客服
消息
收藏
下载
最近











































