查看完整案例


收藏

下载
有人说设计就是纯粹的艺术,张扬个性
我认为设计是解决生活、行为问题,是一种生活方式的规划和体现。
浩炫全案设计
项 目 地 点: 杭 州
设 计 师: 俞 华
项 目 类 型: 全 案
软 装 设 计 师: 黄 晔
————————————————————————————————
本案是一套200方的平层江景房,三室二厅二卫,一家四人居住。
整个规划就放动区和静区两大部分:北面是一线江景安排了共公空间,是人家交流和活动的区域,
厨房和餐厅的可变空间做了外扩的调整,让江景做为我们的“园景”,一天劳累的工作后以度假状态放松自己。
南面是休息睡眠空间,同样也做了可变空间的外扩调整,有自己比较舒服的个人空间,喝个咖啡、晒晒太阳、看看书。
这是一套做全案的房子。
在施工之前,已把前期施工的重点,和后期软装的搭配确认完成。
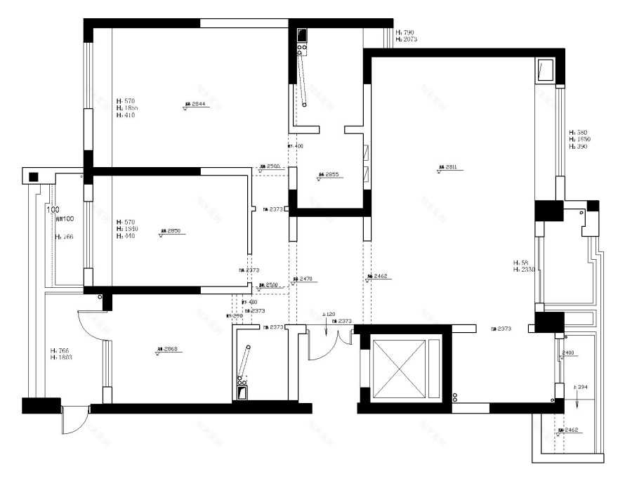
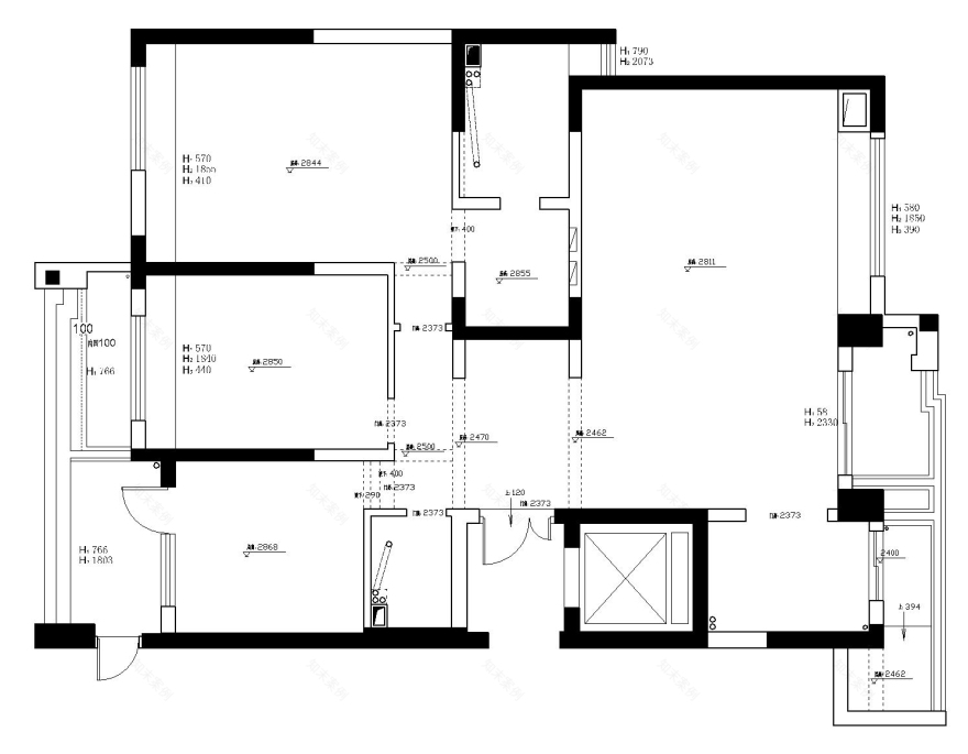
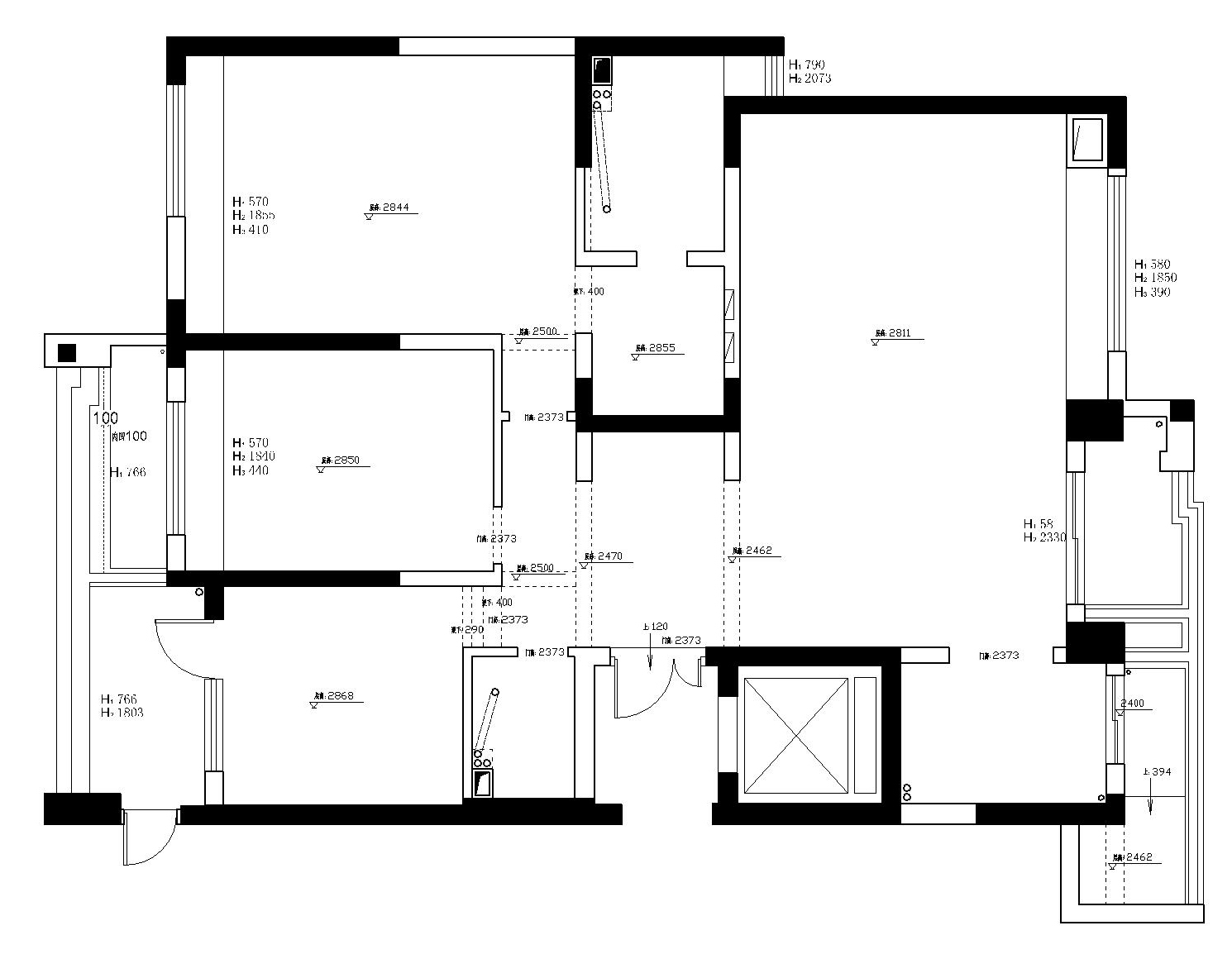
施工节点
————————————————————————————————
立面意向图
客餐厅公共区域
主卧立面意向图
————————————————————————————————
客厅
巨大的落地窗外是钱塘江和钱江三桥,
当坐在沙发上时,便可看到三桥上川流不息的车辆。
从软装搭配方面,考虑到业主个人喜好。
所以客餐厅整体的搭配以浅色为主。
用蓝色的窗帘和抱枕做以点缀。
和背景大理石相呼应
是整个客厅更协调更整体。
搭配金属材质的水晶吊灯,使整个客厅沉稳中不失华丽。
餐厅
餐桌考虑到后期的维护和打理
选用了深色木质的餐桌,搭配了软包和木头相结合的餐椅。
不仅起到了使用时的舒适性,还让餐厅整体更柔和。
玄关
主卧
次卧
客卧
谢谢观赏
公司地址:杭州市古墩路673号瑞博国际B座701室
客服
消息
收藏
下载
最近








































