查看完整案例


收藏

下载
America 1 No. makeshift
设计方:OJT建筑事务所
位置:美国 洛杉矶
分类:居住建筑
内容:实景照片
图片:18张
摄影师:William Crocker
简易房是城市住房计划中非常有发展前景的一种房屋类型。这种平房可供城市中大部分人使用,费用低,居住舒适,所以有着潜在的开发市场。简易房项目从根本上说是土地使用和设计的策略,为众多城市中的人们提供了拥有住宅的机会。由于经济压力上行,城市中能够容纳密集人口的房屋也越来越少,所以就需要简易房这种房屋类型作为解决方案,这也导致简易房成为了美国住房市场中必不可少的部分。
简易房作为新项目开发,通常被人们理解为是单调的,并且会大规模建设的,在该项目中,则完全采取了相反的方式,该房屋构架极具特殊性,特殊的构造实现了城市一体化的目标。而且与它的名字“简易房”相反,这座房屋并不简单,它并非是规模性建设,同时建设上完全依赖于设计进程。在这块场址内,没有好的
设计方案
,便也不会进行任何的开发建设。
译者:蝈蝈
Starter Home* is an opportunistic urban housing program created to develop affordable, entry-level homes for the speculative market. The Starter Home* program is fundamentally about using inventive land strategies coupled with design to develop homeownership opportunities in urban neighborhoods that, due to upward economic pressures, are no longer assessable to large parts of the population. The starter home moniker is important in that it clearly associates the program with a quintessential, albeit fading, component of the American housing market.
Conventionally understood as monotonous, mass produced, greenfield development, this program takes a decidedly opposite approach of architectural particularity and urban integration to achieve similar aims. And, unlike its namesake, it relies wholly on design to set the development agenda, create access to land and generate the product. Without architecture, in this context, there would be no development.
美国1号简易房外部实景图
美国1号简易房内部实景图
美国1号简易房模型图
美国1号简易房示意图
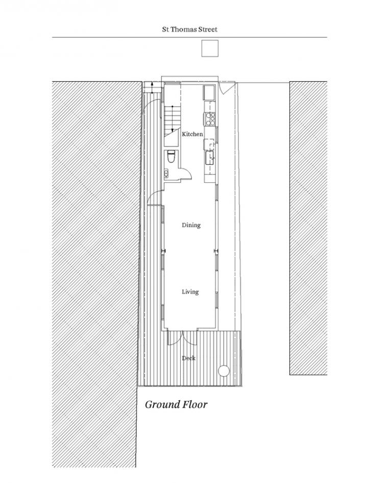
美国1号简易房平面图
美国1号简易房剖面图
美国1号简易房立面图
客服
消息
收藏
下载
最近





































