查看完整案例


收藏

下载
Fayyad
设计方:SAOTA事务所
位置:南非
分类:居住建筑
内容:实景照片
图片来源:SAOTA
图片:13张
项目的合伙人斯蒂芬·安东尼表示,该项目的客户是来自纽约的一对夫妇,想要一个在南半球的暑假度假屋。考虑到当前的建筑趋势,他们希望建筑有清晰的水平设计线条,还有大面积的玻璃和屏风,打造既开放又私人的空间。房子要有两间卧室,还有室内、室外的生活空间。出于职业需要,还需建立工作室,便于开展摄影等工作。
选址
选址是在南非西海岸的开发区,位于耶兹方丹,南边是开普敦,周围有很多沙丘。西海岸的气候有时很好,有时非常恶劣。
方法
为了观赏海景,拓宽视野,不被沙丘遮挡视线,设计师抬高了一层的居住区。L形的交叉设计利于透过两侧的玻璃观景。房子还有个庭院,比较阴凉,里面有矩形的泳池。矩形的结构、线性元素、水平的玻璃构造、滑动屏风和壁炉都是主要的设计元素。
使用的材料
建材比较简单,天花板采用混凝土建造,带有木质图案,上面还有标准尺寸的百叶窗板。墙壁涂上了单一的灰浆,地板和浴室的墙壁用的是白色水泥。
住房
天然木质百叶窗和屏风略带灰色,慢慢可能变成银灰色。屋内的门和细木工艺的家具是深胡桃色的,悬臂楼梯是用红色木材建造的。浴室则精心挑选了绿松石或绿色马赛克建造,壁炉使用了石材包层。厨房采用高光漆,涂成黄色,与其他空间的白色形成对比,比较醒目。
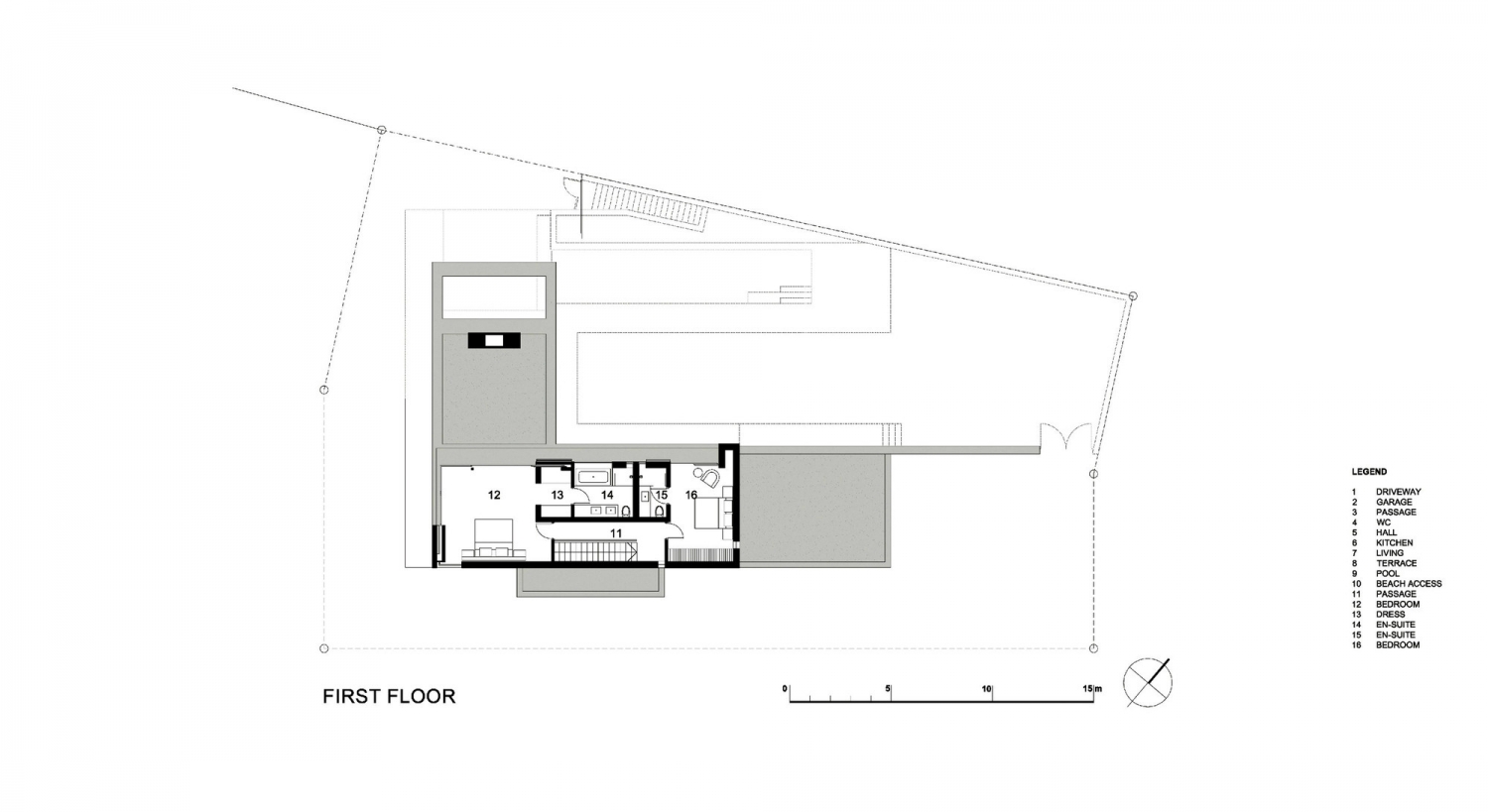
居住区被架高了,地下室修建了工作室,上下有楼梯连接。地下室包括一个大工作室、书房兼第三个卧室、浴室和储物间。落地式滑动窗能让工作室、庭院和屋谷成为单独的空间,工作室的自然光线比较充足。
主要的生活区高于地面,前门那里铺上了垫脚石,周围有很多植被。居住区有入口走廊、楼梯、开放式厨房、用餐区、休息室和露台,还有面向大海的阳台。
一层有两个卧室套房,主卧室面向大海和露台。屋顶还有个小花园,更衣室会通向浴室。第二个卧室套房位于走廊的尽头,面向阳台。
功能
L形的交叉设计很好地保护了庭院和居住区。临海的外观均采用玻璃建造,能观赏到从北部到南部桌山的全景。天气好的时候,可以把窗户全打开,亲近自然。滑动的百叶窗用于遮阳,还能保护住户的安全和隐私。阳台的窗户也都能打开。
建筑细节
比较注重视效和采光,天窗位于楼梯的上面,在地下室的楼梯上,也能看到海景和山顶的景色。透过窗子,可以看到南非西南部桌山的山脊。浴室的窗户有横向有纵向的,既能观景又能保护隐私。玻璃的设计突出了水平的线条,光线穿过百叶板时,会被过滤。悬臂式的花园露台延伸了房子的长度,令房子看上去十分轻盈。
总体印象
房子采用极简主义的设计,与周围的环境相融合,十分和谐,丰富了的西海岸的建设。
译者: Odette
From the architect. “The clients, a couple from New York wanted a holiday home in the Southern hemisphere for summer vacations. Aware of contemporary architectural trends, they requested a sculptured building with clean horizontal lines, large areas of glass and screens creating a space that is ‘open as well as private’. Their brief was a 2-bedroomed home with indoor / outdoor living spaces and a studio to be used in their photographic and film related occupations,” says Project Partner, Stefan Antoni.
Site
The site is one of the few remaining sea-front stretches on the West Coast to be developed. Passing through the sleepy residential area of Yzerfontein one heads back South towards Cape Town. The site is one of a prize number located immediately behind the never-ending line of dunes. The climate on the West Coast can at times be idyllic and other times extremely harsh.
Approach
To maximize the views of the sea and waves over the dunes, the Ground Floor living areas were elevated above natural ground level. The L-shaped concept of two intersecting rectangular forms allow two full glazed sides to face the view and at the same time create a sheltered courtyard overlooking a long, rectangular pool. Sculptured rectangular forms, linear elements, expansive areas of horizontal glazing, sliding timber screens and the feature fireplace are the principal elements of the design.
Materials used
The simple choice of materials complements the sculptural form of the house. The ceilings are off-shutter concrete with subtle wood grain patterns in the rectangular grids formed by the standard sized shutter boards. Walls are painted single coat plaster. Floors and bathroom walls are white cement screed throughout.
Accommodation
The principal neutral elements are complemented by the natural timber shutters and screens. These will mature in time to the silver-grey colour of Balau timber. The full height internal doors and joinery are dark Walnut stained African mahogany; the cantilever staircase is rich red ‘Boire’ timber. Each bathroom is characterised by a feature wall in a carefully selected turquoise or green mosaic to complement the jade green slate vanity tops. Natural stone ribbon-clad features include the fireplace hearth, the red sandstone barbeque ledge recess and the rock-face jade slate pool spillway waterfeature. The basement courtyard has a Balau timber deck, highlighting the transition from the internal white cement screed to the dune sand. The high-gloss lacquered kitchen in yellow with seamless snow-white moulded counter tops is an unexpected surprise, for a functional element.
Raising the living areas above the natural ground level allows a one and a half volume high basement studio. Approached via an enclosed staircase, the basement comprises a large working studio, a study / third bedroom, bathroom and store room. The studio opens up to a courtyard, level with the sand of the valley between the site and the dunes. Floor-to-ceiling cavity sliding glazing allows the studio, courtyard and valley to become a single space – a natural daylight studio of infinite length. A dramatic stone-clad waterfeature cascades down from the pool on the enclosed side of the courtyard cooling the air of the sun-filled sheltered space.
The primary living level is raised above street level. The simplified street elevation comprises a natural timber garage door and is all that is required. One arrives at the front door up a gentle flight of stepping stones bedded in natural vegetation. The living area is made up of; an entrance hall with feature cantilever tread staircase, an open-plan kitchen, dining and lounge and the sea-facing balcony running the full length of the West façade as well as a covered terrace and linear patio cantilever over the sheltered courtyard garden and crystal-clear lap pool.
The First Floor has two bedroom suites. The main suite faces the sea and opens onto a terrace the length of the garden façade and has an accessible roof rock garden. The dressing room leads to the en-suite bathroom. The second bedroom en-suite is located at the inland end of the gallery passage space, and opens onto the same linear garden balcony.
Function
The form of the house follows the required function. The L-shaped plan with its extended feature-wall towards the street creates the protected courtyard and living area. The sea-facing façade is glazed from end to end, encompassing the panoramic view from the North to Table Mountain in the South. The living area glazing can be completely opened up to allow the room to become part of the dunes, the ocean and horizon on a perfect West Coast day.
The sliding Balau shutter screens provide protection from the setting sun over the Western horizon as well as privacy and security when required. The glazing to the covered terrace can also be completely opened, allowing the kitchen, dining area, covered terrace and courtyard to become one continuous entertainment area – open to the dunes and sea, or protected when the West façade glazing is closed. The screens to the covered terrace provide security and protection from the elements.
Architectural detail
A second layer of architectural intent is evident in the carefully considered framed views and light sources. A slot skylight above the cantilevered staircase in the entrance hall throws a shaft of light into the centre of the house. This casts a moving splay of shadows over the staircase treads. Framed vistas of sea and hilltop at each end of the basement staircase are viewed as one moves up or down between the cool enclosing walls. A picture window to the South of the main bedroom frames the view down the ridge of dunes towards Table Mountain.
Vertical and horizontal slot windows in the bathrooms allow views to the exterior while maintaining a sense of privacy. The butt joined glazed corners of the sea-facing façade enhance the panoramic view and floating horizontal lines. The experience of light climaxes in an almost laser show experience when the sliding shutters are closed during a sunset. The sun’s rays, as they filter through the minimal gaps between the horizontal timber slats create a magical experience as you move within the house. The cantilevered garden terrace extends the length of the house and wraps around to the fireplace, creating the impression that the building sits very lightly on the ground.
耶兹方丹暑假度假屋外部图
耶兹方丹暑假度假屋外观图
耶兹方丹暑假度假屋内部局部图
耶兹方丹暑假度假屋
耶兹方丹暑假度假屋图解
韩国镇川郡住房图解
客服
消息
收藏
下载
最近















