查看完整案例


收藏

下载
Slovakia's high pull a cabin in the mountains
设计方:Atelier 8000
位置:斯洛伐克 高塔特拉山镇
分类:居住建筑
内容:
设计方案
图片:21张
摄影师:Jan Cyrany
这是由Atelier 8000设计的斯洛伐克高塔特拉山山中小屋竞赛
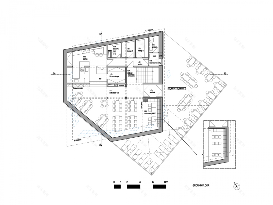
,坐落于山顶,以简洁的立方体“让人联想到起冰川中未融化的漂流冰块”,而其“尖锐的边界”融入到背景环境中。玻璃幕墙、光伏板和金属的轻盈、通透的质感,使得整个场地发出微光,如同山上的湖泊或是融化的冰块反射出的光芒。建筑使用了落叶松木做的胶合板,铝质的立面以方块的形式组合,立面的独立元件以1×1米模件组成,以方便处理和运输。建筑地下设置了推雪车停车库、职工入口、滑雪储物室、干衣室和洗手间,首层设置了餐厅和露台,而顶层则设置了卧室和紧急医疗室。考虑到节约能源和运营成本,该项目被设计成被动式节能建筑,其造型和朝向都能将太阳能吸收最大化。
译者: 艾比
Atelier 8000 has design a sustainable mountain hut for Slovakia’s High Tatras as part of the Kežmarská Chata (Kežmarská Hut) international competition. Seated on one of its vertices, the simple cube “evokes an erratic block left behind by the retreating glacier,” while it’s “sharp edges” blend into the mountain backdrop.
“Thanks to the positioning of the construction, three sides of the facade are visible from any viewing point, which amplifies the play of light and shadows – the same effect which can be observed on the neighboring rocks,” described Atelier 8000. “The glass surfaces of windows and photovoltaic panels along with the light transparency of the metal plating complete the whole picture of the site with a touch of glimmer – just like the glints and reflections which can be observed on the surface of a mountain lake or on thawing ice.”The construction is built with glued laminated timber beams made from larch wood. The aluminum facade system is designed in the form of square panels. The dimensions of the individual elements of the facade are designed in the module of 1×1 meter to facilitate easy handling and transport to the building site.
At its base, the hut provides a snowmobile garage, staff entrance, ski storage, drying room and restrooms. The ground floor is made up of a restaurant and deck, while the upper floors accommodate sleeping and emergency recovery areas.In terms of its energy generation and consumption the hut has been developed as a passive building. The shape and orientation of the hut maximize solar energy, while parts of the facade with energy generation units are oriented southwards and eastwards to face the sunrays directly.
斯洛伐克高塔特拉山山中小屋外部效果图
斯洛伐克高塔特拉山山中小屋外部局部效果图
斯洛伐克高塔特拉山山中小屋外部夜景效果图
斯洛伐克高塔特拉山山中小屋内部效果图
斯洛伐克高塔特拉山山中小屋分析图
斯洛伐克高塔特拉山山中小屋平面图
斯洛伐克高塔特拉山山中小屋立面图小屋平面图
斯洛伐克高塔特拉山山中小屋立面图
客服
消息
收藏
下载
最近























