查看完整案例


收藏

下载
America California 510 Cabin
设计方:Hunter Leggitt Studio
位置:美国 加利福尼亚
分类:居住建筑
内容:实景照片
图片:19张
2011年,Hunter Leggitt Studio临时将公司的地点从洛杉矶搬到了加利福尼亚,伊莎贝拉湖边的高地沙漠中,他们这样做的目的是设计并建造一栋定制的、高精巧度的现代小屋。小屋是为一个五口之家的定期睡眠设计的,但是小屋非常灵活,它可以容纳下10来个客人并使客人感到舒适,510小屋对客户来说是一个安静而又简洁的周末休息寓所,我们的客户是一个非常忙碌的、来自圣塔莫尼卡的家庭。回应严格的预算限制和工作室的兴趣,我们创造了一个被称为“设计/建筑+教育经验”的设计,设计灵感部分来自Mockbee’s Rural Studio,Hunter Leggitt Studio将建筑成就向学徒公开了。
在一些建筑工作台上发布一个简单的传单后,工作室收到了好几百个来自全世界学习建筑的学生的申请书。工作室对学生的要求仅仅是一个工具带、卷尺、锤子和极好的态度,按照这些要求,工作室选出了七名学生,这些学生的工作经验很少或者说根本没有,他们将会前往工作的场址并协助项目的建设。在教学的同时指导70%的建筑行业的经验,工作室不仅能够设计建造一个独特的、精巧的、符合风俗的建筑物,而且更重要的是能够为年轻的学徒创造一个学习经验和故事的机会。
译者:蝈蝈
In 2011, Hunter Leggitt Studio temporarily relocated from Los Angeles to the high desert near Lake Isabella, CA to design and build a custom, highly crafted, modern cabin. Designed to regularly sleep it’s family of 5, but also be flexible enough to comfortably host a total of 10 guests, the 510 Cabin serves as a tranquil and compact weekend retreat for the client, a busy Santa Monica-based family.Responding to strict budget limitations and the studio’s interest to create what it called a Design/Build/+ educational experience, partially inspired by Samuel Mockbee’s Rural Studio, HLS opened the construction effort up to student apprentices.
Posting a simple flyer on several architectural job boards, the studio received hundreds of applications from architecture students all over the world. Requiring only a tool belt, tape measure, hammer, and great attitude, the studio selected seven students with little to no formal experience to move out to the job site and help build the project.Teaching and simultaneously conducting 70% of the building trades, the studio was not only able to deliver a uniquely crafted custom project for a fraction of the conventional construction price, but was more importantly able to create a legacy learning experience and story for the young apprentices.
美国加利福尼亚510小屋外部实景图
美国加利福尼亚510小屋外部局部实景图
美国加利福尼亚510小屋外部阳台实景图
美国加利福尼亚510小屋局部实景图
美国加利福尼亚510小屋内部客餐厅实景图
美国加利福尼亚510小屋内部卧室实景图
美国加利福尼亚510小屋内部浴室实景图
美国加利福尼亚510小屋内部局部实景图
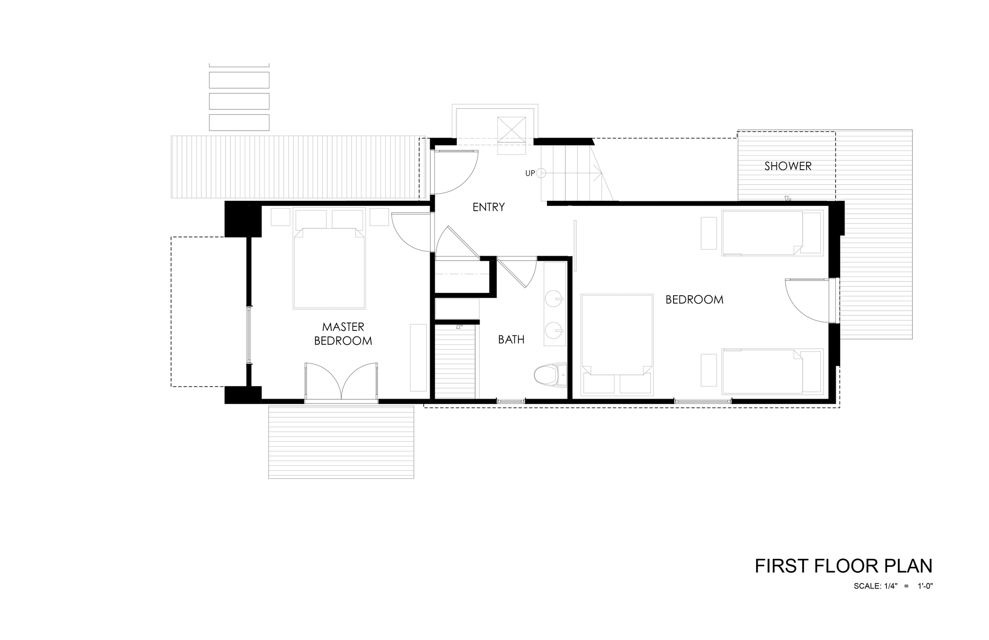
美国加利福尼亚510小屋平面图
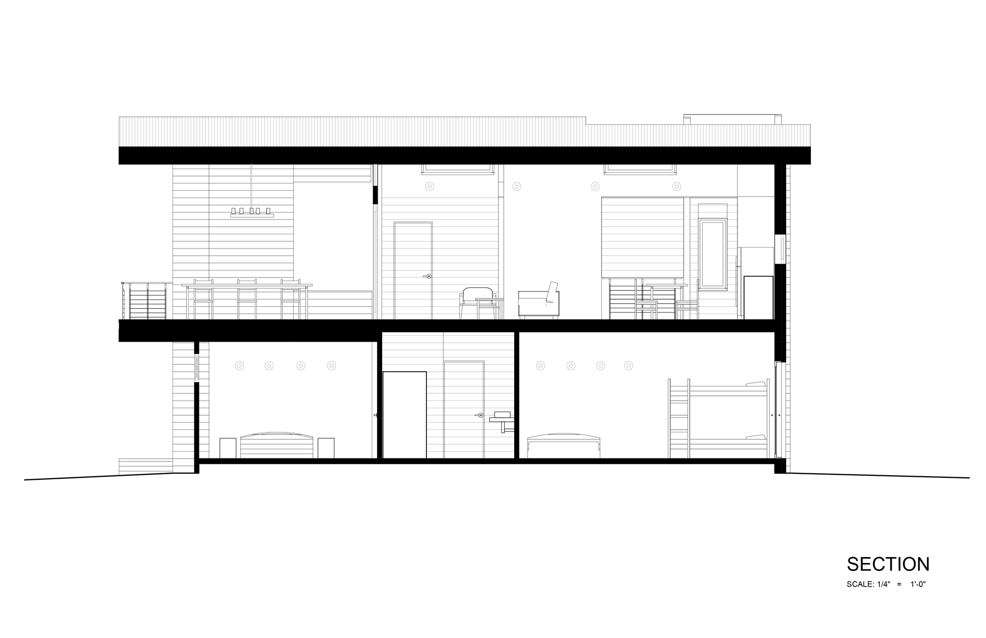
美国加利福尼亚510小屋剖面图
客服
消息
收藏
下载
最近





















