查看完整案例


收藏

下载
Japan Us Residence
设计方:Tadashi Suga Architects
位置:日本
分类:居住建筑
内容:实景照片
图片:36张
住宅是为一对夫妻和他们的孩子设计建造的,住宅包括了两个家庭和一间卧室。住宅的场址坐落在一个旧住宅区中,离车站只有五分钟的路程远。几个私人房间被设置在了住宅的二楼。我想我愿意采取东西向的长距离的建筑方式,这也是场址的主要特色。贯穿住宅北侧的楼梯井将二楼的隐私区域和一楼的公共区域连接了起来。住宅中的每一个地方都可以被这个楼梯井连接起来。
因为住宅一楼的北面不能向街道敞开,所以住宅北面是一种有效的照明方式。橘色的柔光灯被二楼的kichou反映着,并涌进了起居室中。玻璃制品被加固的低辐射玻璃荫蔽着,这些加固的低辐射玻璃达到了最好的绝缘效果。它们的主要功能是应对客人对一楼北面公共区域的拜访,并在道路和住宅北部之间形成缓冲。双高的空间同样是一种通风的方式。大胆的剖面图担保了光线、通风和家人之间的连接,所以住宅才会有这样的形状。通过一个木盒子可以看见住宅的内部空间。
译者:蝈蝈
The house consists of a parent and child, 2 households and a guest room. The site is in the old uptown for about 5 minutes from the station.Several private rooms are being arranged on the 2nd floor. I thought I'd like to take the long distance construction through east and west where the main features of the site area.The well hole (which passes through the whole building in the north side) intended to achieve the role of linking a private zone on the 2nd floor to the public zone on the 1st floor. Everywhere in the house can be linked by this.
Because Kitamo on the 1st floor can't be opened to the road, the north side is an effective lighting way. The orange soft light reflected in the wall in kichou on the 2nd floor is poured on a living room. Glass is shaded using reinforcement LOW-E glass and it's made out of the best specification on the insulation performance.I made them concentrate the function for visiting the north side of the public zone on the 1st floor, and makes the buffering form the road in Kitamo.The double height space is also a way of ventilation. The bold section plan which collateralizes lighting, ventilation and the connection of the family decides about the shape of this housing. The inside can peep through a wooden box.
日本Us住宅外部实景图
日本Us住宅外部夜景实景图
日本Us住宅之局部实景图
日本Us住宅内部实景图
日本Us
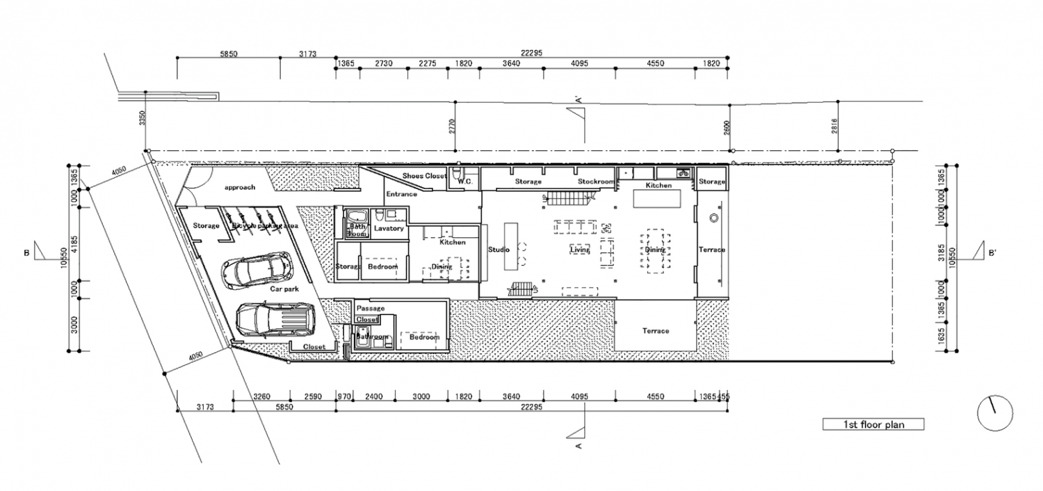
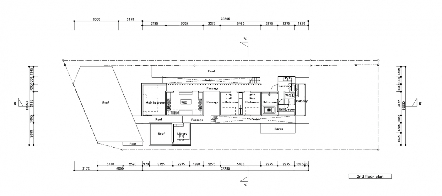
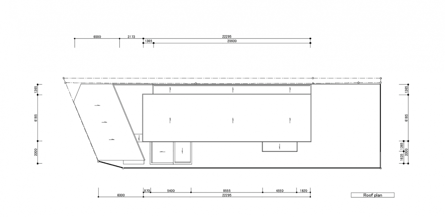
住宅平面图
日本Us住宅平面图
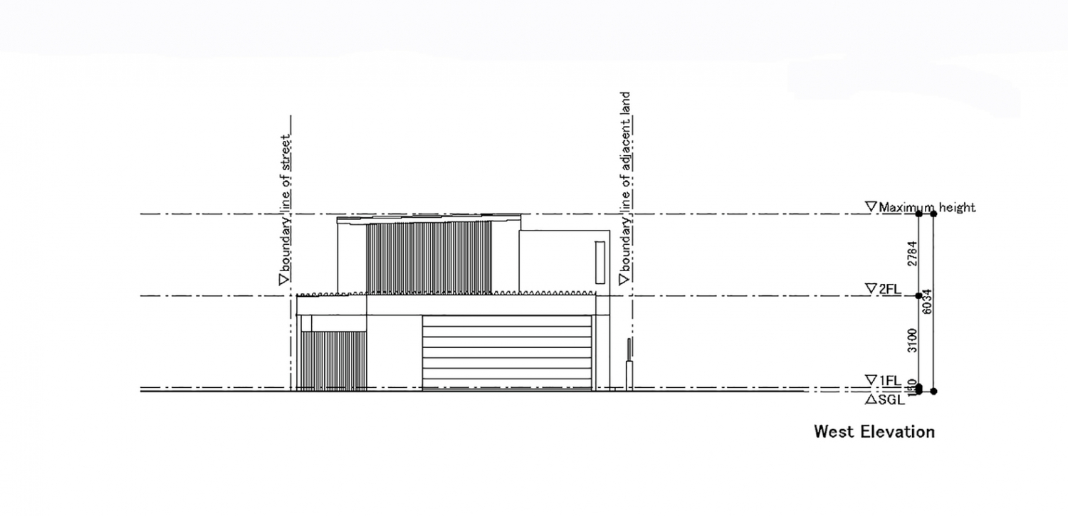
日本Us住宅立面图
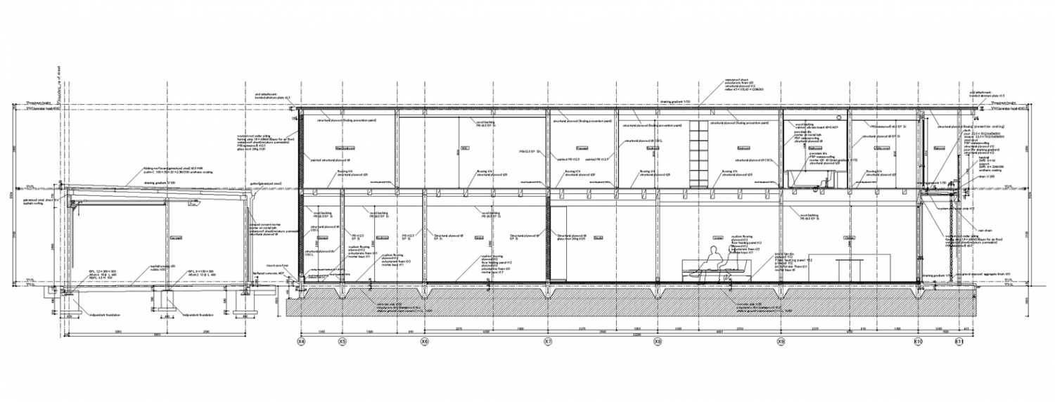
日本Us住宅剖面图
客服
消息
收藏
下载
最近






































