查看完整案例


收藏

下载
Korea South Chungcheong Private Residence
设计方:designband YOAP architects
位置:韩国
分类:居住建筑
内容:实景照片
设计团队:Hyun Bo Shin, Inkeun Ryu, Doran Kim, Minhee Kang
图片:39张
摄影师:Shin Do Keun
早在2014年的时候,项目的客户就曾经拜访过我们的工作室。我们的客户刚满30岁,并于两年前结了婚,而且她从来没有在首尔以外的地方生活过。她也在努力偿还她的债务。这主要是因为很多首尔的新婚夫妇都得租住房租高的小房子,在生了孩子之后搬进更大的房子。这也意味着新婚夫妇要面对着不断增长的债务。为了转变这种恶性循环,客户及她的丈夫决定带着她的单亲母亲一起开始一段田园生活。幸运的是,她在她的亲戚那儿买到了一块小的场址,场址靠近海边的城镇。
城镇的名字叫Sowon-myeon Padori,在韩语中是“希望”和“波浪”的意思,客户想要一栋属于自己的住宅和一个为当地的爱狗人士准备的小招待所。在客户过去的生活中,她经常与她的狗狗在一起,但是在旅行的时候,她经常面临着如何安置狗狗的问题。她想要为所有爱狗人士准备一个小的但是舒适的空间。漂亮的场址、客户打破社会上惯例的决定以及项目的独特性都吸引着建筑设计师们,而且项目的进展非常迅速。
译者:蝈蝈
On early 2014, a client visited the office. She was on her early 30s, married 2 years ago, and has never lived outside Seoul. She was planning exodus from vicious circle of debt. (Many newly married couple of Seoul begin with small house of high monthly rent, and move to a bigger house after having baby. This means that the amount of debt grows dramatically before the couple's paying back the money.) To make a shift from the vicious circle to the virtuous one, she and her husband decided to start a rural life with her single mother.Luckily, she could buy a small estate near seaside town from her relative.
The town has a beautiful name 'Sowon-myeon Padori' (meas 'wish' and 'wave' in Korean), and she wanted her house and a small guesthouse for dog lovers there. All through her life, the client always has been with her dogs, but she often had trouble with finding good stay for her and her dogs while traveling. She dreamed a small but comfortable place for all the dog lovers. The beautiful location, her decision to break a social convention, and a unique program of 'special guesthouse for dog lovers', all these conditions fascinated the architects, and the project went fast.
韩国忠清南道私人住宅外部实景图
韩国忠清南道私人住宅外部阳台实景图
韩国忠清南道私人住宅外部局部实景图
韩国忠清南道私人住宅之局部实景图
韩国忠清南道私人住宅外部夜景实景图
韩国忠清南道私人住宅内部实景图
韩国忠清南道私人住宅内部卧室实景图
韩国忠清南道私人住宅内部衣帽间实景图
韩国忠清南道私人住宅内部浴室实景图
韩国忠清南道私人住宅内部过道实景图
韩国忠清南道私人
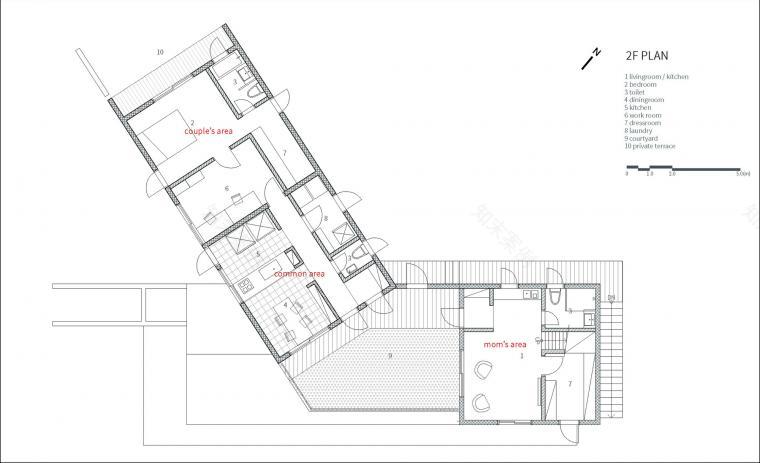
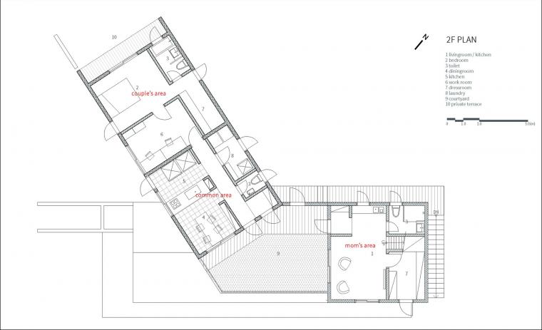
住宅平面图
韩国忠清南道私人住宅平面图
韩国忠清南道私人住宅立面图
韩国忠清南道私人住宅剖面图
客服
消息
收藏
下载
最近















































































