查看完整案例


收藏

下载
DESIGN BY 北岩设计
130平建筑面积
保持生活的原貌,保持生命的本真,于红尘纷扰中行走,做一个神清目明的女子,不被时光蒙上尘埃,不被生活磨掉棱角。
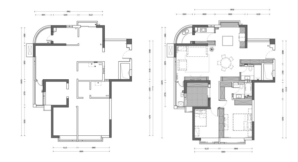
【平面图】
女主心心念念着美式风格,但考虑到户型层高低、梁体多、空间零碎等局限,我们最终在经过不断的商量磨合后,选择将业主所想与实际房屋条件相融合,用现代感的家具打造出美式轻奢的感觉。
北岩认为,生活没必要被风格所束缚,空间服务于人,和谐舒服就最重要。女主思维跳跃,想要的很多,若单纯论风格则会造成太多打压限制。我们更希望能够实现业主心中所想,当然这也是对我们的挑战。
关于业主对收纳空间的要求,我们在玄关、餐厅、客厅、茶室等各个空间都尽力满足:一百多双鞋、几箱化妆品、两衣帽间的衣物、一两个货架的锅具等都有了很好的栖身地。等到搬家结束,女主特别兴奋地说,茶室榻榻米空间还没有装满,还能继续买买买。那种兴奋劲和满足感,就是对我们能力的最佳认可。
【玄关】
与本案女主接触是一件非常愉悦的事,在她身上,你总能感受到翩翩起舞的活力和优雅。不矫情,从内心散发出热爱和真实。想去看极光,就立马攻略订购机票;想去新疆,一星期把国家地理杂志的新疆内容都看完后果断出发……永远身随心动。我想只有把事看得特别真、特别通透的人才能这样,因为大多数的我们往往已经在漫长的岁月洗礼中变得犹豫不决…大多数的我们已经忘了我们的原貌。
用一整面墙的收纳,满足说走就走的果敢和干练。马不停蹄只需要在路上,回到家就是休息。而关于那百余双鞋子的故事,静静放好找某个晴好的日子娓娓道来。
“魔镜魔镜,你说谁才是这世上最美丽的女人?”
其实每个女人都是上帝的宠儿,值得被好好呵护,但首先,我们要好好爱自己。人生战场,时刻做自己的女王。
【客餐厅】
全屋色系上,采用称霸时尚T台的高级灰,中性色有一种不露锋芒却经久不衰的生命力,有助于缓解精神压力和生活疲惫。皮质、麻布、木系、金属等不同元素的混搭设计,象征着美式轻奢生活的自由与和谐,一如年轻该有的状态,自由追逐,梦想栖居。
电视背景墙与餐边柜统一风格设计,格子与线条的邂逅,让空间多出几分灵动的优雅,也让女儿的绘本童梦与妈妈的甜品美食之梦有了妥帖的安放,书香字间,收获沉甸甸的幸福。
复古灯具、铜质袋鼠小品灯、餐桌上的向日葵,每一个细节里,都满含我们对生活的热爱和对年轻生命的洞察。杂志上精美的家居图画,也可以走入我们的平凡生活,不是明星不是大牌,也可以拥有这般如梦似幻的理想生活。北岩,始终致力于此。
【厨房】
这部分是本案的焦点所在。有限的厨房,无限大的甜品美食爱好,各种厨具,不断增加中的各种锅具,全部要展示出来,全部要分类放好……如何完美解决?世界上,唯爱和美食不可辜负!北岩也是,从来不会辜负客户所托。厨房外,岛台伺候,颜值与功用兼得,甜品赏鉴、朋友聚会趴,任性可为。厨房内,格架和收纳柜满足不同之需,柴米油盐的琐碎,也可以如此美好。
【主卧】
静谧的私人空间,以放松、舒适为首要原则。安静色泽、柔软质地,卸下面具与盔甲,将真实的自我交还这里,用丝绒般的柔滑包裹身心,只管沉醉,忘却时间。
【女儿房】
既有高贵的优雅,也有粉嫩的童趣,妈妈心中的小公主,自当住在浪漫梦幻的童话王国,轻纱帷幔、白天鹅、花朵造型灯具,每一处都有故事,每一处都是成长时光。
【茶室】
兼具茶室与收纳双重功能的榻榻米灵动空间,换季物品及大尺寸物件都可完美隐藏,旧式复古收纳柜,非常见的编织纹理、铜环拉锁等给人一种怀旧情怀。拙朴茶席,古雅茶具,凭添几分意境茶韵,三五好友,两三甜品,一壶春茗……便是一段下午茶的故事。
我们每个人都是生活的主角,在岁月流年的舞台上,保持真我,纯粹前行,心无旁骛,一切自成。
客服
消息
收藏
下载
最近























