查看完整案例


收藏

下载
爱记忆中的人容易,难的是当他们出现在你身边、你面前时,你仍然爱他们。——约翰厄普代克
新家の装修档案
房屋地址:成都—观城
建筑面积:220 平方米
户型:3 室 2 厅 3 卫 1 厨
风格:简约美式
一、原始户型分析
一楼原始户型图
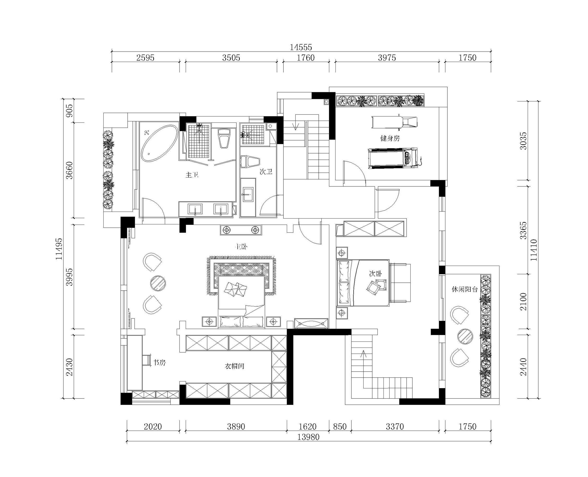
二楼原始户型图
空间分析:整体建筑为框架结构,室内空间可变性大。但原有户型中餐厅空间及厨房空间较小,二楼只一个卫生间,相对来说使用不是太方便。
二、平面布置分析
一楼平面布置
二楼平面布置
空间改造:一楼空间:打通原有次卧和厨房空间,形成餐厨一体化,延长操作台,增加岛台功能,同时将原有客厅阳台纳入到客厅空间中,加大空间面积。
二楼空间:通过结构的搭建,在二楼增加了次卫生间和衣帽间,让业主使用更方便。
三、客厅完工实景
世上最动听的情话是什么?不是我爱你,而是我在这。都说陪伴是最长情的告白,我在,你在,便胜过世间万千言语。
本案是整体大气内敛的美式风格,没有太多雕花的出现,却因为线条的叠加层次感凸显,客厅里寻找了许久的美式铜制吊灯和电视墙上的全铜双头壁灯,又为整个空间打上了温馨的记号。
在设计之初,业主就希望能够有足够的储物和置纳书本的空间,一整面墙的定制柜设计,让空间既不显拥挤,又满足了业主的需求。
风吹动帘角,穿过灯隙,阳光带着时针慢悠悠的走,浅色墙壁映衬着深色沙发,把温柔与稳重、柔软与刚硬融合的刚刚好,就像一家人,互补的刚刚好。
四、厨餐厅完工实景
家,在我们的心里是什么样子的?是温馨、是舒适、是安心。是下班回家后,厨房里的煲锅咕噜咕噜的响,锅里排骨汤的味道忽悠的飘出来带着的阵阵香气。
业主是一个五口之家,让人羡慕的三世同堂。如何让一大家子在一起生活得更加舒适,也是本案设计师考虑得最多的问题。
原有的厨餐厅空间都较为狭小,使用不便,于是设计师便将原有次卧及厨房空间打开,延长厨房操作台面,增加岛台功能,形成厨餐一体化空间。
半开放式厨房的设计有效避免了开放式厨房的油烟问题,同时设计师在餐厅采用
3000k
的暖光源,既增加了食欲感,也让一家人的用餐氛围更加的温馨。
五、卧室完工实景
家庭是什么呢?是一个枕头让人休息安宁,是一架床让人放松舒适,是相互照顾却又各自独立,是既彼此相连也能空间分隔。
卧室是一个私密性极高的空间,要求不仅能休息放松,也要符合业主个人性格特征,让身体精神得到双重满足。
主卧采取了温馨的暖色调作为墙体颜色,再用芥末黄、天空蓝、神秘紫拉开色彩对比,增加空间层次感。同时把书房、休闲区、衣帽间都纳入主卧内,打造独属于业主的卧室空间。
儿童房采用了灰蓝色的墙体颜色,清新淡雅而不失童趣,搭配上芥末绿的床尾凳和浅色系的床品,让空间活力十足。
我们常说,吾心安处便是家,其实家也是心安之处。我们总是需要一个地方去修整自己的灵魂,那个地方,要光,有热气,有烟火,有家人,而不是飘飘荡荡,意念中的存在。
世界那么大,风景那么美,而我,只想回家。
六、设计师の推荐空间
卫生间
通过结构搭建和设计规划,增加卫生间的面积,使用双面盆设计,良好的解决了一家人对于卫生间功能的需求,同时干湿分区,利用拐角处设置浴缸的设计,让卫生间的空间的得到最大化的利用。
七、本案の业主采访
:您在装修过程中遇到过什么样棘手的问题,或者是有趣的事儿?:在装修的过程中还是比较顺利的,不论是和设计师还是和施工队都配合良好,总体还说还是比较愉快的装修经历吧。:您理想中的家是什么样的?:由于家里是三代人居住,理想中的家应该有一家人可以活动沟通的大空间,也会有各自的小空间,互不干扰,家里的每个设备每个空间老年人都要用起来方便。:新家是否达到预期?:基本达到了,因为每一个地方都是精心设计的,设计师和项目组都非常棒。:对其他装友有什么建议吗?:建议也说不上,就是木质定制产品一定要注意几个商家的漆面颜色是否存在比较大的色差,可以让商家提供小色板做对比。
客服
消息
收藏
下载
最近





























