查看完整案例


收藏

下载
England Timber Frame Family Home
设计方:Nick Leith-Smith Architecture+Design
位置:英国 伯克郡
分类:居住建筑
内容:实景照片
项目规模:240平方米
图片:17张
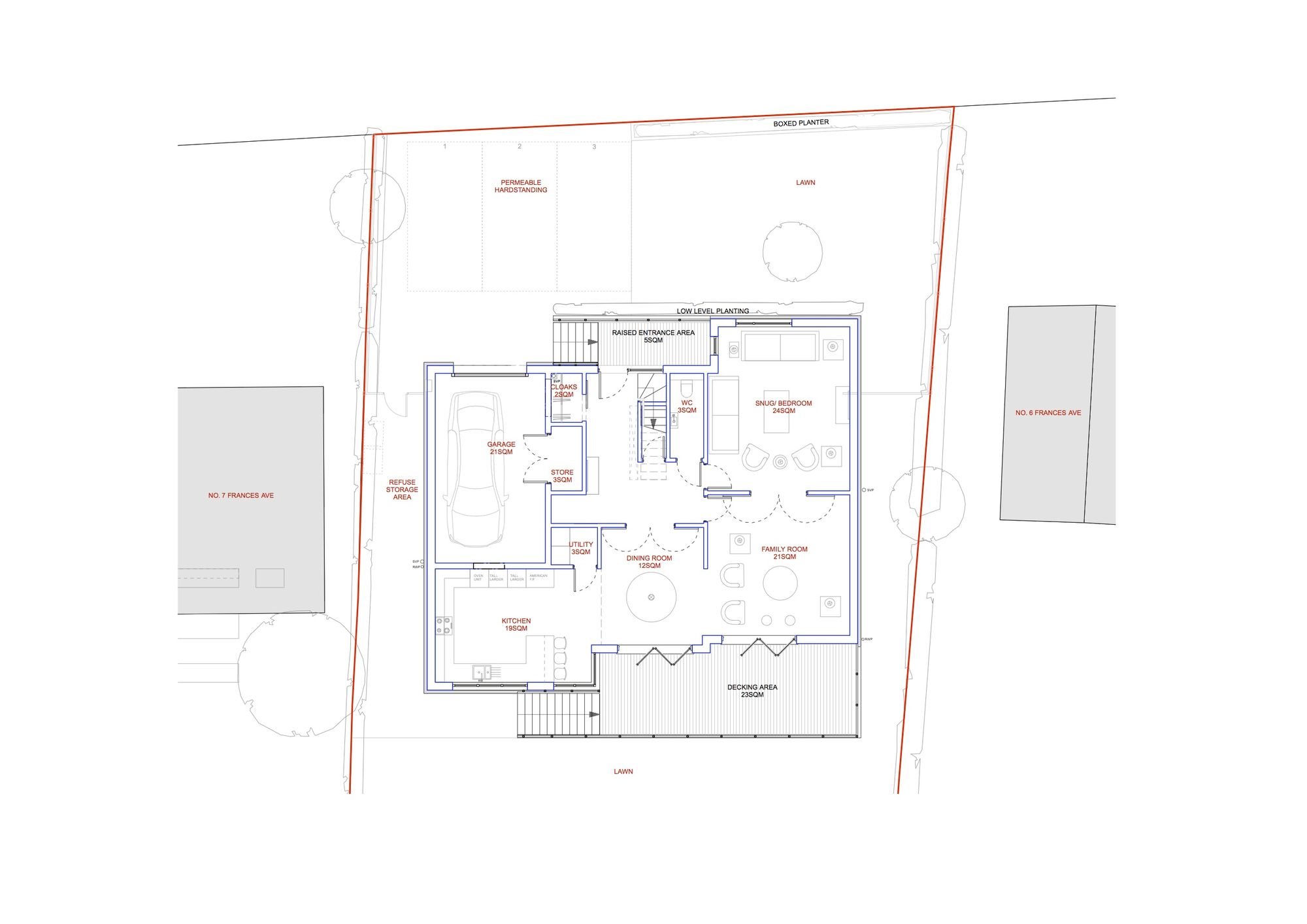
来自伦敦的Nick Leith-Smith Architecture + Design在仅仅的十周内修建了一栋木框架家庭用房,房子位于英国的伯克郡,修建这栋房屋的场址上以前是一栋战后的平房。这栋环境友好型的住宅面积240平方米,位于一片被确定的洪泛区域中,所以住宅必须被修建在一米高的砖底座上。这个额外增加的高度使车库和住宅的入口层面之间产生了一个分离的水平面,这也为一个其他面的、受限制的物质颜色增加了深度。底座的砖包层和住宅的主要体量之间形成了对比,住宅的主要体量使用的是落叶松木包层。
Nick Leith-Smith Architecture + Design形容完工后的住宅为“减少及最低”,并反映了建筑设计公司的特征“当代的工艺、材料和形式”。大方的钢框架玻璃和高圆顶的天花板为住宅带来了丰富的自然光线,并照明着住宅楼层平面图创造出来的瘦长视线。站在门廊处,你可以同时看见花园和透过屋顶的天空的风景。内部空间是开敞式平面布置的结构,这样的设计是为了使可见性最大化,使居住者可以在一个地点同时看见厨房、餐厅和生活区域。
译者:蝈蝈
London-based Nick Leith-Smith Architecture + Design built a timber frame family home in just ten weeks, replacing an existing post-war bungalow in Berkshire. The environmentally friendly residence is 240-square-meters and sits on a designated flood zone, requiring the house to be placed upon a 1-meter-high brick plinth. The addition of such height creates a split level between the garage and entrance level, adding depth to an otherwise restrained material palette.The brick cladding of the plinth contrasts with the main volume of the house, which is rendered and clad in larch timber.
Nick Leith-Smith Architecture + Design describes the resulting aesthetic as “pared down and minimal,” and reflective of the firm’s characteristic understanding of “contemporary craft, materials and form.”Generous steel-framed glazing and high vaulted ceilings allow ample natural light and illuminate the elongated sight lines created by the home’s floorplan. Standing in the entrance hall, one is simultaneously afforded views of the garden and through a skylight at the roof’s apex. The interior assumes an open-plan configuration in order to maximize visibility, with the kitchen, dining room, and living area forming one space.
英国木框架家庭用房外部实景图
英国木框架家庭用房外部局部实景图
英国木框架家庭用房外部夜景实景图
英国木框架家庭用房内部厨房实景图
英国木框架家庭用房内部楼梯实景图
英国木框架家庭用房实景图
英国木框架家庭用房平面图
英国木框架家庭用房立面图
英国木框架家庭用房效果图
客服
消息
收藏
下载
最近



















