查看完整案例


收藏

下载
Mexico Tapalpa private house
设计方:Elías Rizo Arquitectos
位置:墨西哥
分类:居住建筑
内容:实景照片
图片:30张
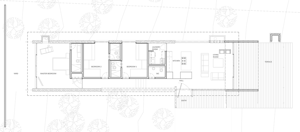
这是由Elías Rizo Arquitectos设计的Tapalpa私人住宅,位于墨西哥的利斯科州。设计师巧妙地将私人区域与公共区域通过一个露台连接起来,过渡自然协调,不仅放大了室内活动的空间,延展了视线,更塑造了更为广阔的休闲区域,能够更好的贴近大自然。
图片来源:Elías Rizo Arquitectos
墨西哥Tapalpa私人住宅外观图
墨西哥Tapalpa私人住宅内部客厅图
墨西哥Tapalpa私人住宅
客服
消息
收藏
下载
最近
































