查看完整案例


收藏

下载
BoWo DE watts, housing
设计方:António Fernandez Architects
位置:葡萄牙
分类:居住建筑
内容:实景照片
图片来源:Jose Campos
项目规模:490平方米
图片:39张
摄影师:Jose Campos
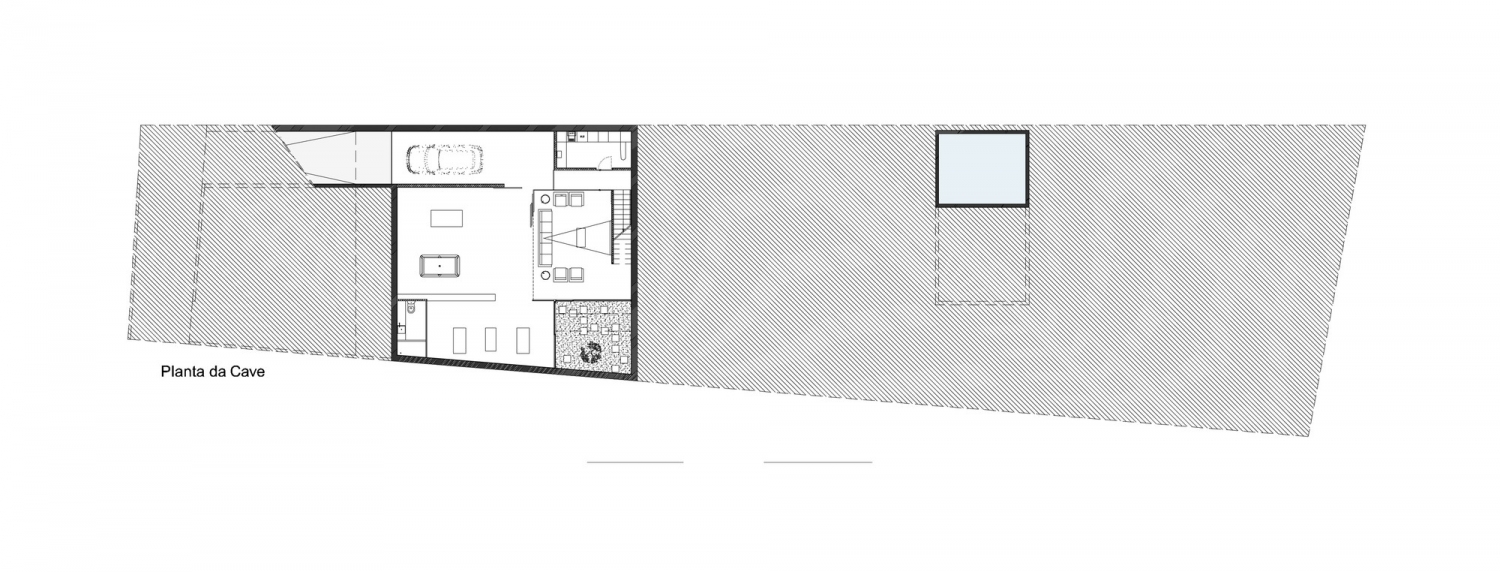
房子仍在建造中,整体上比较私人化,后面有一片林地。房子是位于市区,但具有明显的乡村风格,与众不同,非常独特,这也是户主所期望的效果。建造时,要达到相关的建筑要求和规定,尽量与众不同。住宅的底层比较深,各个空间相互连接,采用多边形的外观设计,中间还用庭院。建筑师打造了开放的空间,扩展了居住空间。外部有双重的居住区,形成比较私人化的交叉、混合风格,减少约束感。
房子建造了新外观,在现有的空间内创建新空间,为建造工作定下了基调。对普通路人来说,房子的设计始终引人注目。垂直方向上,都是镜子似的多边形,围墙上布满了黑色金属设计。进去后,能看到玻璃框架、庭院,比较透亮。黑色的外观与绿草和池水形成鲜明对比。露台那里采用木板条和玻璃结构,这样的话,阳光能照射到地下室。外观使用了玻璃门,比较隐蔽,不易被发现。屋后有很多树,绿意葱葱的。进到内部的话,各个空间相互映衬,给人们带来不同的视觉感受。
楼梯是黑色的,和白墙形成对比,空间设计比较简单。厨房有定制的家具,是建筑公司设计的。起居室延伸到了木板条,形成了到泳池和绿地的过渡。附加的露台处有图形设计,保护了内部隐私,和卧室、浴室及办公室相连。楼上,私人浴室为白色的,走廊通向套间,里面有橱柜和镜子。
卧室是多功能的,有不同的平行线条会聚点,采用多角形横梁,透过玻璃能看到庭院。地下室有电影院、游戏室,在入口处就能看见。在户外,有花园和庭院,铺路的材料、铺板、花岗石板和铺路圆石的设计都从简,体现极简主义的艺术风格。每个空间都有各自的特色,不会凌驾于其他空间之上,整体舒展开来,紧密相连。住户能充分享受设计的独特,体验隔间的不同布局。外观是黑色的,好像关闭着一样。每个隔间就像生活的各个组成部分一样,独特而且多样。
译者: Odette
From the architect. As a project, the Fábio Coentrão house presented a unique challenge since its intention was to respond effectively to a demanding programme of a very personal nature for the building as a whole and individually for each space. The house is part of a subdivision still under development. The back of the lot faces a forested plot of land, and the house, integrated within an urban space with a strongly rural character, had every chance to serve as a different model. Different, individualized, unique, just as the owners wanted it to be.
The project initially sprang from the wish to obtain the lot in the least usual manner, albeit conforming to all legally stipulated requirements. The subdivision permitted the ground floor to have great depth. In this way, it was possible to design a house in which the spaces are interconnected and open onto interior courtyards at the centre of the polygon-shaped lot. Thus, open spaces were created within the enclosed space, expanding living areas, expanding spaces. The divisions make the most of the exterior space. And the exterior space as ‘the container’s interior’ possesses a dual ‘outside-inside’ living space’. Concepts intervene, hybrid spaces are created, capable of supporting an architecture that aims to be very personalized. The upper floor was much more constrained, limited by the regulations imposed on the lot to a rigidly drawn rectangular polygon. The project succeeded in subverting this constraint.The idea of a house gutted by courtyards that sculpt the volumes and open new facades recreating spaces within spaces set the tone for the development of the project. The programme demanded even more and the concept gained momentum.
To ordinary passers-by on the street, the house invariably draws attention to itself through its strong presence: the black form vertically cut by mirrored polygons and the enclosing wall covered by black sheet metal polygons. For those who access the lot, the house reveals its glass frames, courtyards and transparencies; the black facade contrasts with the green grass and blue water of the pool onto which the living room opens.For anyone gaining access to the dwelling, the architectural interplay begins immediately by crossing the metal bridge with wooden slats and glass guards over the patio that illuminates the basement floor. The mirrored glass door lies hidden in the facade. The metal profiles that recreate tree branches on the side facade enliven the black coating. Vegetation proliferates at the back of the lot. For those entering the house, the interplay of spaces and different sensations begins.
A black staircase with floating steps and glass guard/wall stands out against the white walls and cabinets. The space is simple with a clear reading. The kitchen, containing custom furniture designed by the architectural firm, is extended by the courtyard that separates it from the living room. The living room, in turn, lives for the courtyard and extends to the wooden slats that mark the transition to the pool and the green grass of the back garden.On this floor, a second courtyard within the container, designed with graphics that provide privacy for the interior spaces, brings together the spaces that connect to the bedrooms, baths and office.Upstairs, the predominance of white in the private bath exudes light. The corridor leading to the suite is lined with closets and a set of mirrors that amplify it, creating yet another ecstasy of illusions.
The bedroom is versatile, permitting different vanishing points, opening up onto the lot’s front with polygonal beams and towards the bedrooms’ courtyard through a large glass plane. The basement contains a cinema and games room facing the courtyard below that communicates visually with the dwelling’s entrance.In the outdoor areas, namely the courtyards and gardens, design simplicity was chosen for the paving materials, decking, granite slabs and cobbles, conferring a very minimalist reading to the spaces.
In this way, each space speaks for itself, is individuated. All are important, but one space does not attempt to superimpose itself on another. The house unfurls and thrives as a whole. All the spaces are different, all the spaces coexist and interact with one another. They are all necessary, but at the same time each one stands on its own, with a unique design. The dwelling thus possesses a distinctly strong character, where the enjoyment of the space, the visual play between compartments and pure delight of the house’s living areas dominate. For the exterior, the house is black, cut by mirrors, and seems closed. And it’s true! It encloses within itself a rather diversified set of small spaces, each one with a strong identity, all of them small containers of life.
波沃德瓦兹姆住房外观图
波沃德瓦兹姆住房外部局部图
波沃德瓦兹姆住房内部局部图
波沃德瓦兹姆住房外部细节图
波沃德瓦兹姆住房
波沃德瓦兹姆住房-29
波沃德瓦兹姆住房截面图
波沃德瓦兹姆住房平面图
波沃德瓦兹姆住房正面图
客服
消息
收藏
下载
最近









































