查看完整案例


收藏

下载
Ho chi minh city residential fold wall
设计方:NHA DAN ARCHITECT
位置:越南 胡志明市
分类:居住建筑
内容:实景照片
建筑设计负责人:Nguyen Dinh Gioi
结构工程师:Do Thanh Tuan
设计团队:Nguyen Van Anh, Nguyen Phan Anh Tuan, Luong Xuan Dong
承包人:NHA DAN Construction
图片:39张
摄影师:Hiroyuki Oki
这是由NHA DAN ARCHITECT设计的折墙住宅。场地为长方形用地,周边是
多层住宅
。因此,该设计要将自然光线引入到建筑底层,在有限的用地上创建宽敞的居住空间。建筑师从功能分区开始着手,楼梯和走廊等交通元素布置在建筑一侧,而主要生活功能区布置在另一侧。接下来,建筑师通过对分隔空间的墙体进行对折,以解决现状面临的问题。通过简单地对墙体进行对折,使得交通空间收窄,增加顶层卧室的可用空间。而折墙形成的斜面,有助扩散来自天窗的自然光线,室内的照明环境随着时间变化而变化。折墙结构要得以施工,比普通结构相对复杂且昂贵,幸运的是建筑师与客户的沟通,获得了认可。
译者: 艾比
The site is a rectangular lot whose sides are occupied by neighboring multi-story houses. As a result, the design challenges are to bring natural light to bottom floors and create a generous space for living within a small lot.We started the design by dividing up the program: circulation elements such as stairs and hallway on one side and main living functions on the other. Next, we proposed to fold the wall that divides the program to one side to solve the aforementioned challenges.By simply folding the wall towards one side, the circulation space is narrowed, thereby increasing usable spaces for the bedrooms on the top floors. The sloping surfaces generated by folding the wall diffuses natural light coming in from above, filling the interior with different lighting conditions as each hour passes.The structure execution of this folding wall is relatively more complex and expensive than that of conventional structures. Fortunately, we have the approval and cooperation of clients in order to turn the design into reality.
胡志明市折墙住宅外观图
胡志明市折墙住宅外部图
胡志明市折墙住宅外部局部图
胡志明市折墙住宅
胡志明市折墙住宅图解
胡志明市折墙住宅屋顶平面图
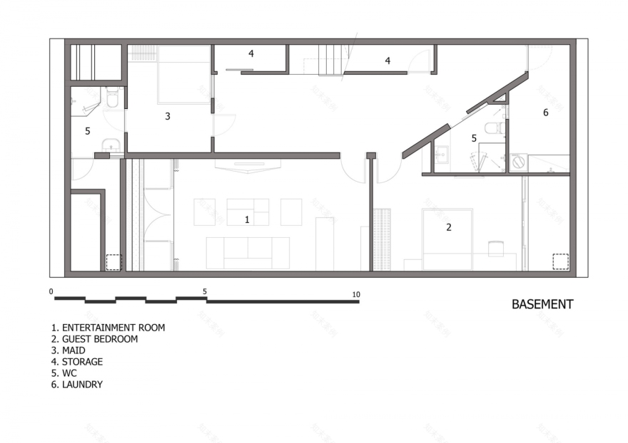
胡志明市折墙住宅地下室平面图
胡志明市折墙住宅底层平面图
胡志明市折墙住宅三层平面图
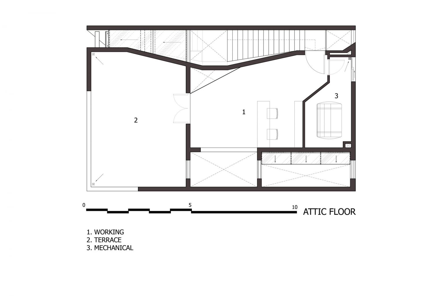
胡志明市折墙住宅阁楼平面图
胡志明市折墙住宅纵切面图
客服
消息
收藏
下载
最近









































