查看完整案例


收藏

下载
Canada Russet housing
位置:加拿大
分类:居住建筑
内容:实景照片
建筑设计:Splyce Design
图片来源:Ivan Hunter
图片:23张
这栋住宅位于西温哥华的一个斜坡之上,它周围有参天大树,西边是花旗松,南边还可以看到海洋。基于这些条件,设计者将住宅部分陷入山体并向外延伸从而使视野最大化,住宅和景色因此融为一体。由于住宅西边临近崎岖倾斜的溪畔,住宅符合严格的环境和地质技术要求。溪畔顶部的后置带给了住宅地基向东的推力。为了留有足够的空间,建成的通道十分狭窄。同时为了不妨碍溪畔植被的生长,中层和上层分别有一部分悬臂于地基之外,下层和周围形成了一片野地。由此不难发现此住宅与其地理位置的联系,包括其地势以及通过太阳的移动达到的墙与墙之间的光照。利用此优势,设计者巧妙地扩大了天空,海洋以及森林视野。
译者: 柒柒
From the architect. This project is located in West Vancouver on a steep site with mature cedar and douglas fir to the west and an ocean view to the south. The house responds to these conditions by nestling itself into the hill while also projecting out over it to maximize views and connectivity to the landscape.Due to its proximity to the rugged and sloping creekside bank to the west, the house was subject to strict environmental and geotechnical conditions, including a required setback from the top of the bank that pushed the building’s foundation eastwards. The resultant footprint was awkwardly narrow, so to gain back valuable space, a portion of the main and upper floor is cantilevered back out past the foundation, allowing the native creekside vegetation to grow up, under and around as an uninterrupted, wild, forest floor.From this space, one gains an understanding and orientation of the home in relation to the site, its topography, and movement of the sun across the building by way of the wall-to-wall skylight above. Subtle hints of views to the sky, ocean and forest are suggested from this vantage point.
加拿大Russet 住宅外部实景图
加拿大Russet 住宅外部一角实景图
加拿大Russet 住宅外部楼梯实景图
加拿大Russet 住宅内部窗户看外面实景图
加拿大Russet 住宅内部楼梯实景图
加拿大Russet 住宅内部走廊实景图
加拿大Russet 住宅内部洗漱间实景图
加拿大Russet 住宅内部餐厅实景图
加拿大Russet 住宅内部厨房实景图
加拿大Russet 住宅内部实景图
加拿大Russet 住宅内部浴室实景图
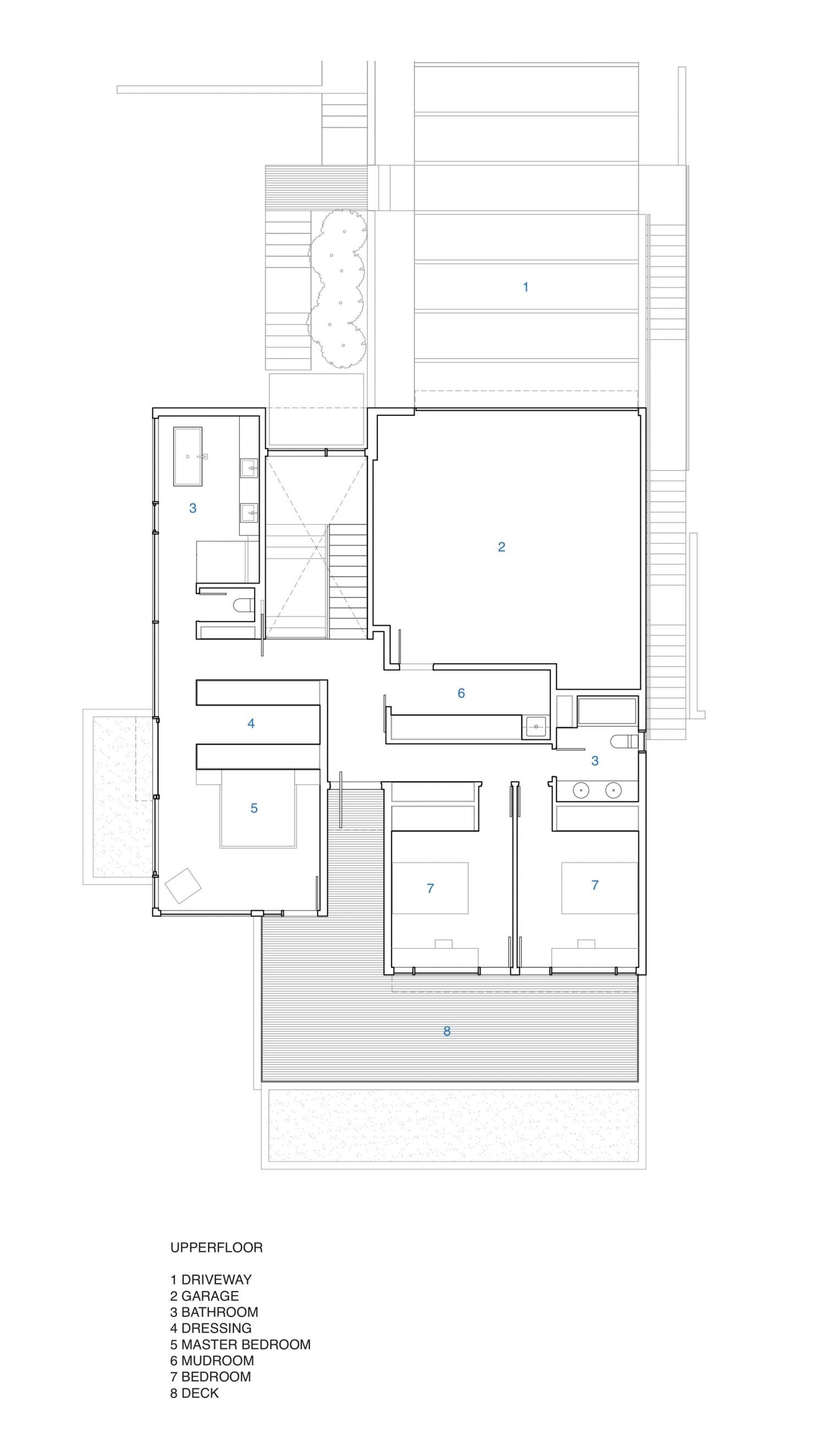
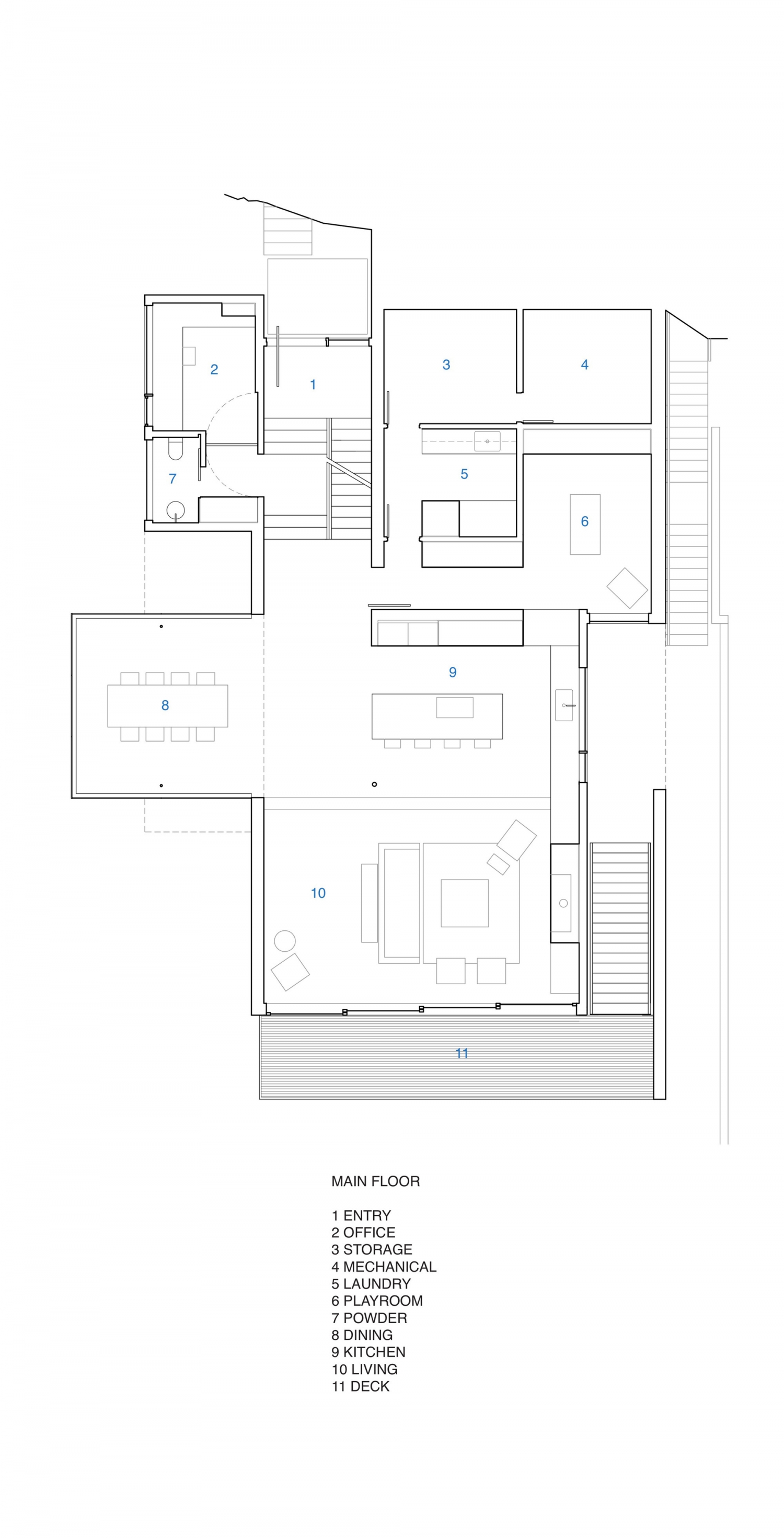
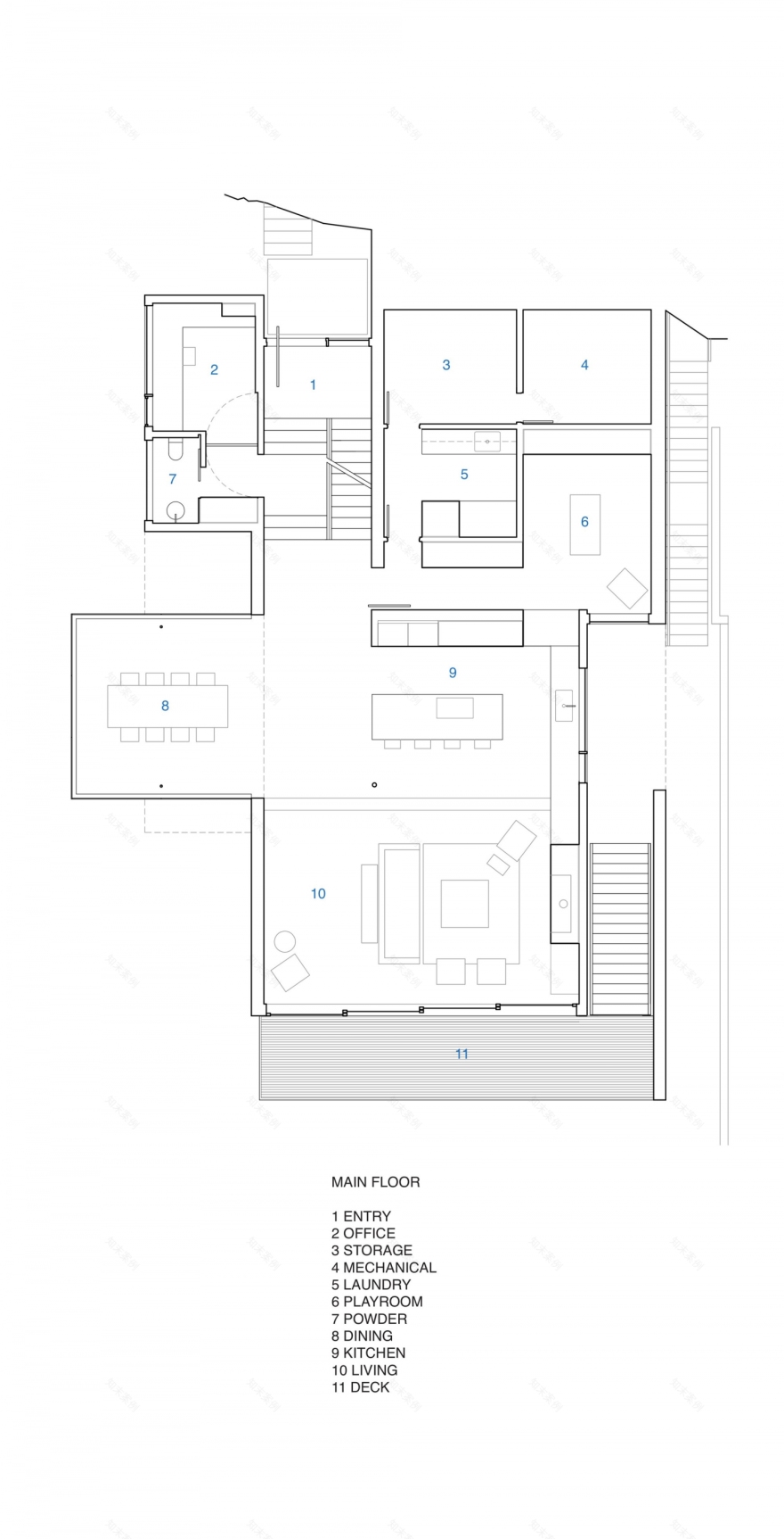
加拿大Russet 住宅平面图
客服
消息
收藏
下载
最近

























