查看完整案例


收藏

下载
Australia's high street house
设计方:Alta建筑事务所
位置:澳大利亚 墨尔本
分类:居住建筑
内容:实景照片
图片来源:Our Media Design Studio
图片:26张
摄影师:Our Media Design Studio
高街位于澳大利亚墨尔本安静的东部郊区。建筑规划在705平方米的长方形土地上,长方形的短边朝向北面。精心设计的住宅角度使其后院不会被住宅本身遮挡。后院为主要的户外空间,同时,另外在建筑中间设计了一个大型庭院。中央户外活动空间大大改善了内部连接、视角、光线、通风等条件。北面,根据重要性、功能需求和空间大小设计有:休息室,车库,两个主卧和衣帽间等。这些空间的采光条件十分优越。关于卧室隐私问题,简单的解决办法就是安装窗帘;东面,中央庭院位于车库后面,这个开放空间使住宅呈现深度8米的U形结构,这就解决了内部光效较暗和通风不畅等问题;南面,典雅客厅、餐厅和厨房的布局,满足了户主视觉上大型开放空间的要求。这个开阔的90平方米空间集中了客厅、餐厅和厨房三大设施的用途,使内部和外部的所有活动联系起来。特殊的生活空间连接了中央庭院和后院,创建一个开阔连续的内外空间,光照条件极佳;西面,设计有浴室、洗衣房和厨房,都安置在西边,成了西面太阳直射的缓冲区。住宅采用的是三角形屋顶结构,之所以采用是三角形,是因为这样的结构十分牢固,同时给人一种强烈的家的归属感。材料的选择根据建筑周围的环境而定,节约了成本。各种材料有砌块,木材包层,金属板,奶白色的油漆等,所有的这些材料都来自周围的自然环境。
译者:蝈蝈
Located at the quiet eastern suburb of Melbourne, Australia. This site is a 705 m2 rectangular block of land with its short side and street frontage facing north. The orientation of the site pre-determines that the dwelling’s backyard would be overshadowed by the dwelling itself. Therefore while not challenging the backyard’s role as the main outdoor space, our basic approach was to introduce a sizeable courtyard in the middle of the block, which would one, create a central outdoor activity space that feeds back into the interior for connection/view/light/ventilation, and two, add another north facing interface for the project.
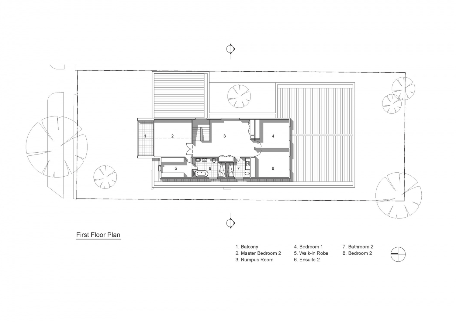
North – Because of their importance, functional needs and sizes, the dwelling’s primary north facing street frontage fa?ade has been allocated to entry lounge, garage, two master bedrooms and walk in robe. It would be beneficial for most of spaces to have sunlight access. Privacy issue to bedrooms was simply dealt with using curtains. East - Behind the double garage was the central courtyard; this open space allows the dwelling to achieve a U shape footprint, with an average building depth of 8m, therefore eliminating any possible dark and poorly ventilated internal spaces. South – To achieve the client’s large open space vision, a typical living + dining + kitchen arrangement was put to use. This generous 90 m2 space integrated the three uses, and interconnected all activities inside and outside. The living space in special was connected to both the central courtyard and the backyard, and creates a space that blurred the inside-outside boundary, and was also flourished with light. West – All service related programmes such as bathrooms, laundry and prep kitchen, were placed at the western side of the block, utilising the service lane that runs north south and also acting a protective buffer against western sun.
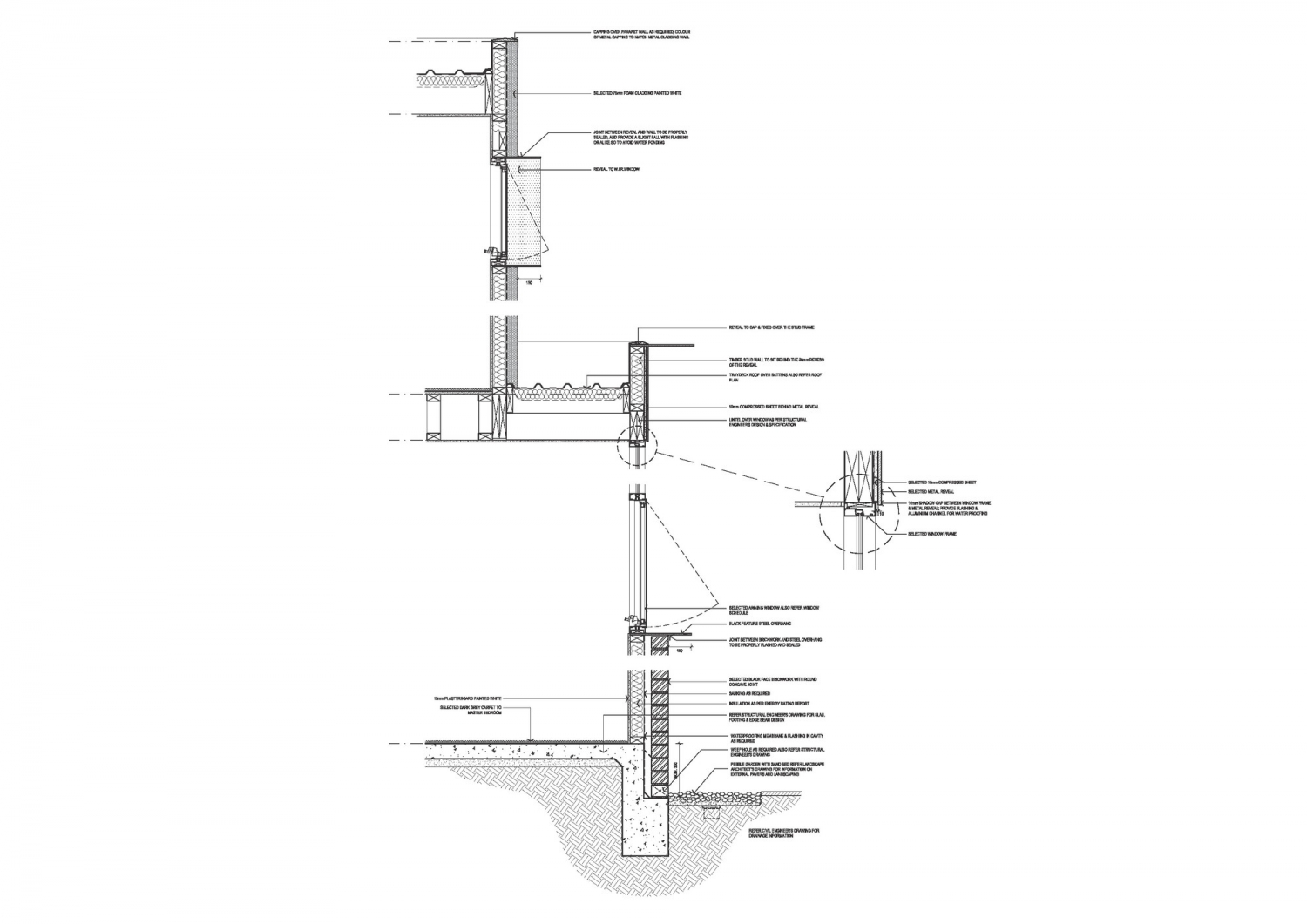
A triangulated overall massing was chosen to link it to its context. It is stable, and provides a strong sense of shelter and homeliness.The external material selection quotes from the context. The earthiness of the brickwork, the stripping of the timber cladding, the shininess of the metal sheets, and the creamy white paint, all these properties were readily available in the surrounding; the unique quality of the project was achieved by combining and contrasting all these materials.
澳大利亚高街住宅外部实景图
澳大利亚高街住宅外部局部实景图
澳大利亚高街住宅外部夜景实景图
澳大利亚高街住宅内部实景图
澳大利亚高街住宅内部房间实景图
澳大利亚高街住宅内部过道实景图
澳大利亚高街住宅内部楼梯实景图
澳大利亚高街住宅内部厨房实景图
澳大利亚高街住宅内部卧室实景图
澳大利亚高街住宅内部房间局部实景图
澳大利亚高街住宅内部浴室实景图
澳大利亚高街
住宅平面图
澳大利亚高街住宅平面图
澳大利亚高街住宅剖面图
澳大利亚高街住宅分析图
客服
消息
收藏
下载
最近




























