查看完整案例


收藏

下载
Zurich Switzerland H apartment blocks
设计方:Gus Wüstemann Architects
位置:瑞士
分类:居住建筑
内容:实景照片
设计团队:Jan Kubasiewicz, Marta Balsera Goni, Eftychia Papathanasiou, Silvia Pujalte
图片来源:Bruno Helbling, homegate
图片:33张
摄影师:Bruno Helbling, homegate
大楼的场址位于苏黎世城的第六区,原先场址上是拥有一个大花园的住宅。建筑项目是一栋公寓楼,楼内有三套出租公寓。一楼有一套,一楼的公寓拥有一个花园。二楼也有一套公寓,因为地势的原因,也拥有一个花园。顶楼是一套两层的楼顶公寓。起居室被看做是外部空间,并拥有最大限度的视角,也具有最佳的光照条件。这个项目的最终建筑构思是H型的公寓楼。字母H中间一横的下方是一个有屋顶的外部空间,上方是一个露台。
在露台的上方我们修建了一个阁楼,使露台变成了一个外部空间。生活区域被认为是外部空间,因为生活区位于H型建筑的外部。在著名字母H顶部我们放上了一个“石头”。这个设计创造了一个新的建筑体量而不是两个石头元素的装饰。公寓楼的两部分都没有多少玻璃。在天气寒冷的时候,被当做外部空间的起居室可以关上大型的滑动窗户御寒,而起居室也就变成了内部空间。出于对自由和革新的向往,我们引进了新建筑理念。这创造了一个非常好的居住地,而且没有任何多余的花费。
译者:蝈蝈
The site is located in the district 6 in the city of Zurich, originally a residential neighborhood with large gardens. The project was an apartment building with three rental apartments, one apartment on the ground floor with a garden, an apartment in the middle, due to the slope with a garden too and on the top floor a duplex penthouse. The wanted the living rooms to be outside rooms with maximum views and optimal exposure to receive the light. In this project the architectural concept eventually led to the figure of a Stone H. The letter H has under the bridge a covered outdoor space and over the bridge a patio.
We put yet another stone, the attic, which makes this Patio turn into an outer space above the H. Thus, the living spaces are considered as outdoor rooms, because they are outside the mass of the H. The H is a well-known letter on which we put a stone on top of it. This produces less a volume of a house than rather two stone elements, two masses almost without glass. In cold weather, the outdoor spaces which are the living rooms can be closed with large sliding windows, so that they become inside spaces. It is the desire for freedom and renewal, that let us bring well-proven elements of architecture in new contexts. It creates powerful habitats, without additional cost.
瑞士苏黎世H公寓楼外部实景图
瑞士苏黎世H公寓楼内部局部实景图
瑞士苏黎世H公寓楼内部浴室实景图
瑞士苏黎世H公寓楼内部厨房实景图
瑞士苏黎世H公寓楼内部实景图
瑞士苏黎世H公寓楼分析图
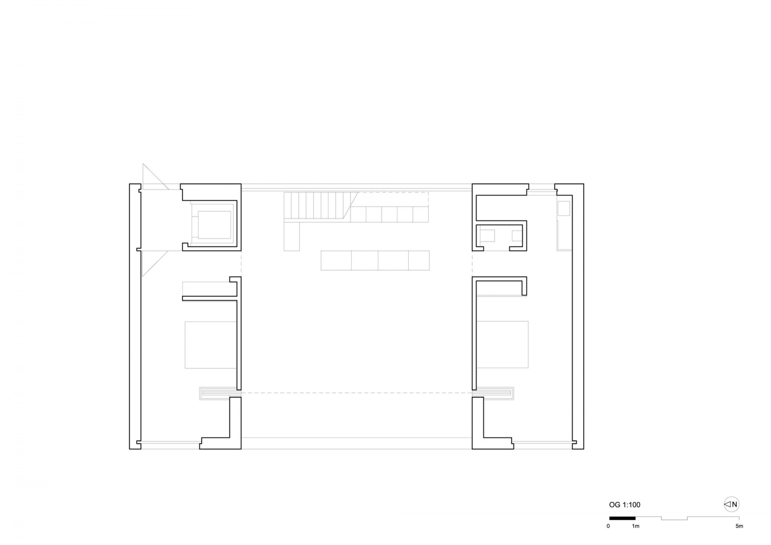
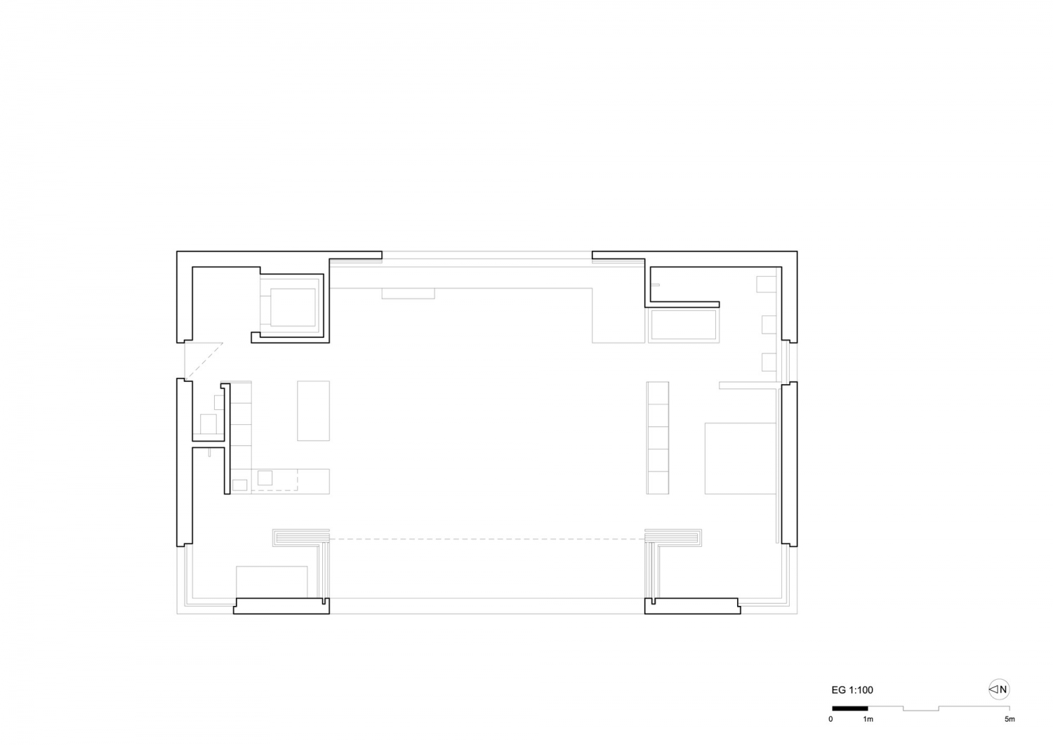
瑞士苏黎世H公寓楼平面图
瑞士苏黎世H公寓楼剖面图
瑞士苏黎世H公寓楼正面图
客服
消息
收藏
下载
最近



































