查看完整案例


收藏

下载
罗斯自豪地坐在一个特色多样的遗产区内。 通过客户对鲜明的物质性和清洁美学的热爱,罗斯意外地提供了一个温暖和快乐的环境。 他们新建的郊区住宅舒适地容纳一个五口之家,他们的狗和艺术收藏品,同时暗指他们已经习以为常的改建仓库的工业高耸空间。 Ross坐落在私人花园内,完全满足客户的需求。
在其风格多样性所定义的传统区域,Ola Studio旨在为邻居提供一个自信的当代建筑,既引用又与当地背景交谈。 罗斯的近邻是白色的单层木质单层平房,一个是带有主导山墙的双面,另一个是带有臀部屋顶的单面。 我们小心翼翼地管理着较大规模的罗斯,其山墙形状与邻居的间距相同,但在规模上逐步建立了街景中臀部和山墙的合适节奏。 罗斯的大胆形式两侧是两个低渲染形式,增强了相邻住宅的存在,并明确划分了公共和私人空间之间的界限。
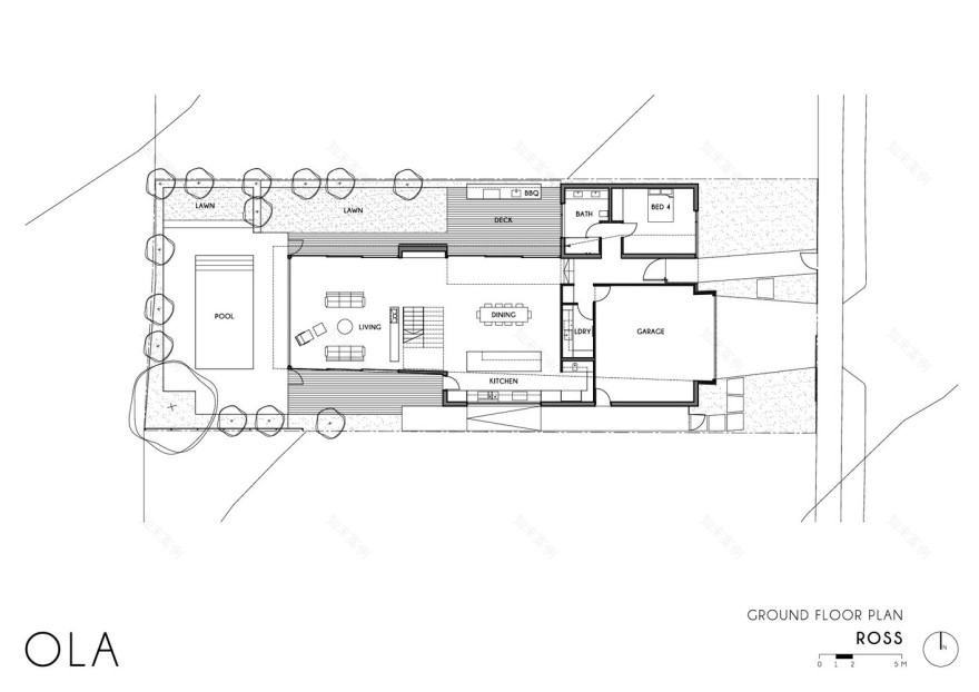
平面布置图
这座房子是一件大胆的雕塑作品; 由其可分割的领域优雅地定义。 公共外观和入口,僻静花园内的起居区以及楼上的私人区域,每个都为公众和居民提供独特的环境。 楼上采用黑色垂直铝合金角度包裹,是一项处理城市环境中的家庭隐私的研究。
穿过房屋长度的山墙按比例逐渐变细,并从南边界剥离,以确保邻居保持阳光。 缩小的比例看到一个房子像在后院漂浮在下面的生活空间的剪影。 漫长的北方方面经过精心设计,采用被动太阳能原理,后花园被切割成土地,形成一个深深的庭院,从而控制午后的阳光。 房子由光伏装置供电。 有充足的隔热层,房屋被板条的阴影遮住,克服了黑屋周围的热量问题。
地面空间沉浸在景观中。 楼上有一层板条,提供私密的室外花园空间,充满斑驳的光线,白天和黑夜都在变化。 灯光柔和地照亮了内部空间的雕刻内部。 长长的空隙在各个外部空间之间创造了视线,强调了花园的重要性和连接房屋的领域。
室内装饰的极简美感充当了客户艺术收藏的画廊。 钢制楼梯和混凝土厨房长凳的雕塑元素进行对话。 使用质量材料来形成详细的内部对象与由光重复元件单独定义的外部形式形成对比。
建筑师,业主和建筑师之间的三方合作不断努力,以便为质量结果提供均衡的成本。
项目图纸
建筑师:Ola Studio
位置:澳大利亚墨尔本
面积:414.0 m2
项目:2018年
摄影:Derek Swalwell
客服
消息
收藏
下载
最近





























