查看完整案例


收藏

下载
没有比无言之诗更有力的言说了
SILENT POETRY
项目的大环境是都市里的高端建材卖场
作为传统建材的木地板展厅
试图在这样的大环境中保持纯朴的自性
让光 材质 空间以其本真之形象呈现
如其所示 将人带入安静沉思之境
现实不断将想象拉回是为确定自己的存在
想象的世界却因更多确定性的质料而更加丰富无限
二者产生的张力给予了空间别样的生命力
空间是包容着物体的边界
设计所要表达呈现的便是情境氛围
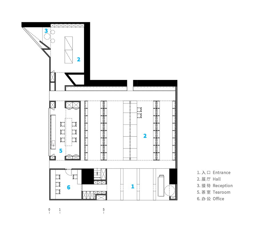
一定厚度的门形成了前厅
央有缝隙藏光强调中轴的存在
却没有打破整体的连贯性
在这里被用做空间的主要面材
它的表面裸露略显粗糙 有细腻的纹路
一个温暖浑然的世界得以展开
与整个空间连通一气呵成
板材与板材的拼接处留有更细的缝隙
来交代每块用料的尺度和受力结构
它会引导人们去理解整体
大厅尽头的透光体如此明亮均匀
温润的和纸让光有了触感
天地墙都被带有自然痕迹的黑松木所包裹
动线尽头是挺有意思的旧木展厅
有末家居Admonter木地板展厅
位于广州,项目包括住宅,办公室,私人会所等室内设计,同时也涉及建筑与景观的方案设计。谭立予先生,首席设计师。
2019年40 UNDER 40中国设计杰出青年;
2010-2019年七次获得CIID中国室内设计大奖赛金奖;
2011、2014、2015、2016、2017APIDA亚太区室内设计大奖。
客服
消息
收藏
下载
最近




















































