查看完整案例


收藏

下载
柔和、温暖而平静的微风轻抚你的身旁,在你耳边微语着你的琴声,轻轻的随着微风轻弹,一曲动人心弦的乐曲,清新扣动人心。当你的琴声幻化成梦的翼翅,将你的心移送到不可知的远方。
一层原始结构图
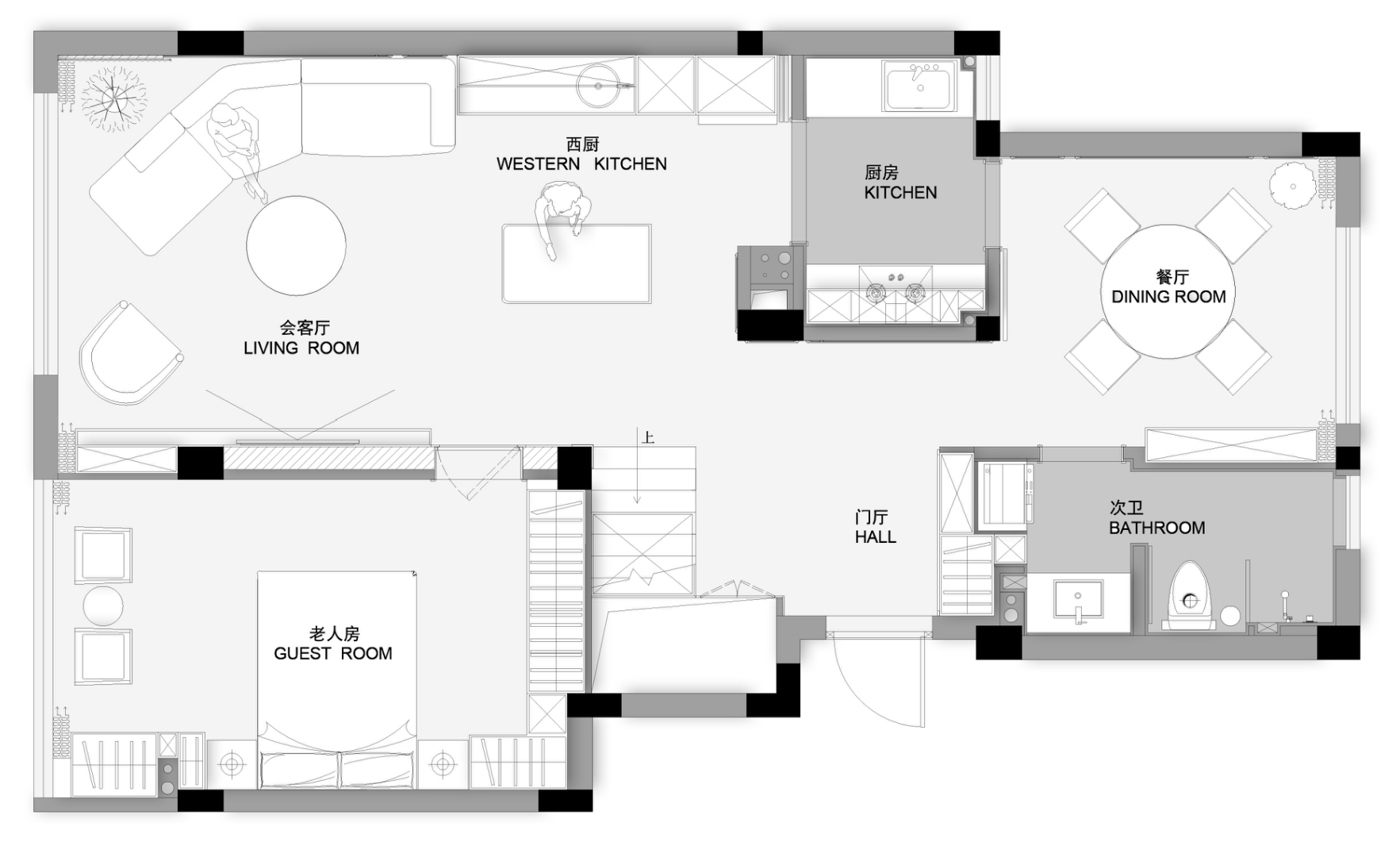
一层平面布置图
客餐厅
项目位于远离城市喧嚣的西山国家森林公园灵山景区。历史上,它曾是黄公望的隐居地。在这样的条件下,业主希望将早就习以为常的生活方式和过去对新生活的所有想象都融入到新宅中去。
长辈房
次卫
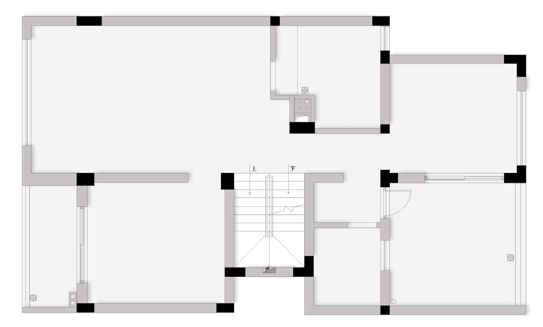
二层原始结构图
二层平面布置图
主卧
在与客户多次的沟通中,我们逐渐厘清了业主家居生活的全貌。除了一般的家庭生活以外,住宅还将具有少量社交性。平衡家居生活的自在舒适和社会责任的练达是设计必须关注的。
主卫
儿卧
多功能室
考虑到周边环境的属性,该项目采用自然柔和的色调。在材料方面,橡木实木用于楼梯,石材用于面板与背板,镜面不锈钢用于墙面装饰,黄铜用于灯具饰品。克制且精细的材料及饰面不仅提升了家的档次,且将其提升到新的境界。该项目不仅仅是舒适且实用的居住空间,也作为业主内心思想的现实表达而存在。
【工程地址】:微风之城【户型结构】:四室两厅两厨两卫【房屋面积】:199M2 户型【全案设计】:内舍·石言
来自群组:内舍整体软装
客服
消息
收藏
下载
最近




































