查看完整案例


收藏

下载
杨绛先生曾这样描述微风:“也许最平静的风还是拂拂微风。”微风栩栩,是花枝的轻轻摇摆,是花瓣的肆意散落,又或是湖面上荡起一圈一圈的波纹。微风之城,在城市与自然之间,在湿地与露台之间风姿摇曳。
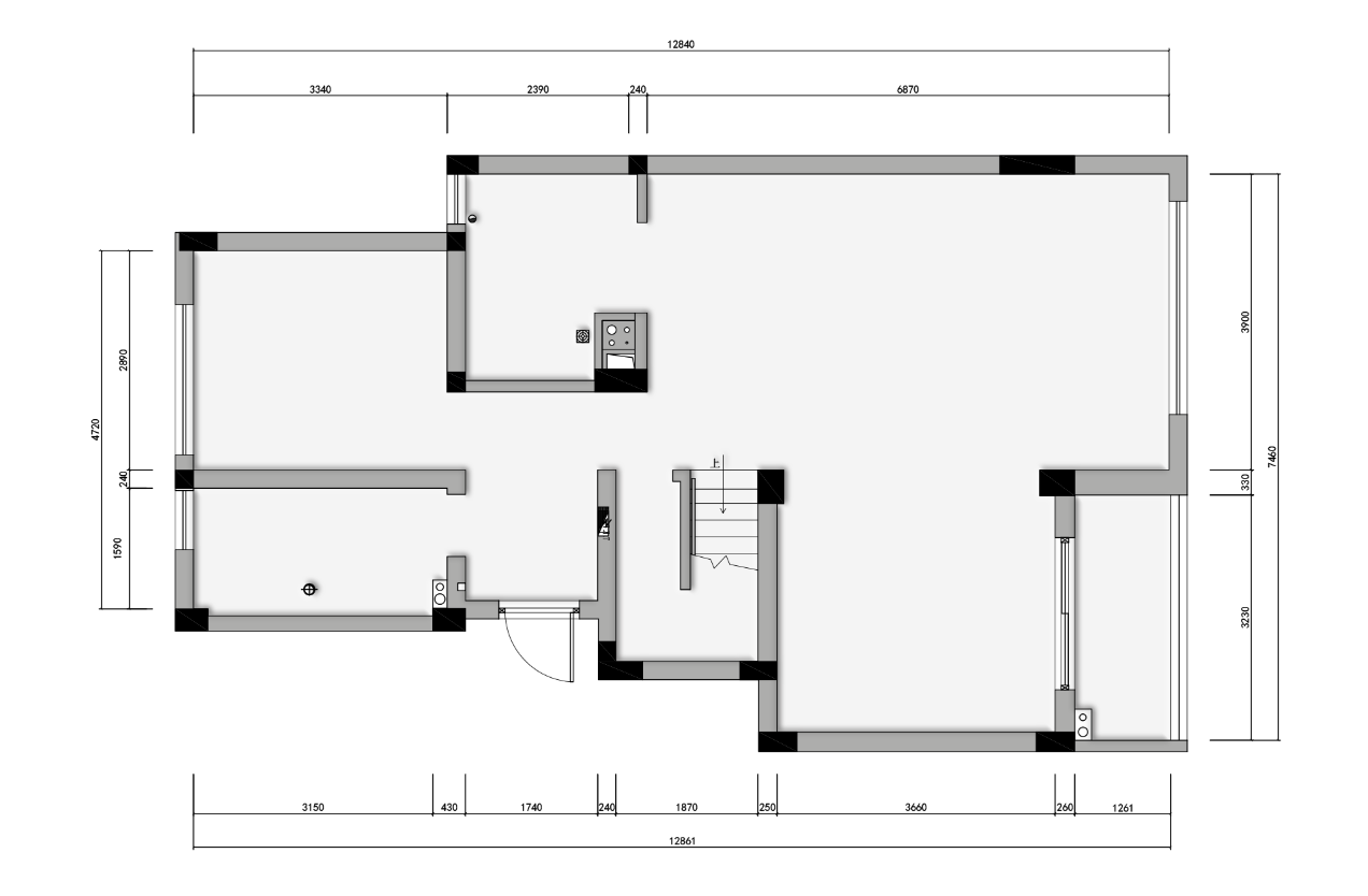
一层原始结构图
一层平面布置图
客餐厅
该项目背靠黄公望国家森林公园,面朝富春江,东邻天然的生态湿地,享有极佳的自然景观资源。在这样远离城市喧嚣的环境下,业主想要的不仅是一个遮风挡雨的住所,也包含着对未来的各种期待。在布局上不仅要开阔明亮的空间感,也要合理的动线规划,才能让业主尽情享受在家的每一分秒。
厨房
原有的墙体将厨房禁锢在方正的空间内,为此我们拆去原有的“束缚”,不仅拉近了空间的互动,清透的玻璃阻隔也让空间体验更加宽敞。同时合理动线,布局合理,极大地利用了厨房空间,将面积的使用最大化。长长的备餐区,一家人一起都不会拥挤。
长辈房阳台内置,增加老人房视觉空间尺度。床尾大面积的定制柜,收纳起生活的鸡零狗碎,化繁为简,增加空间的整体感和延续性。
次卫
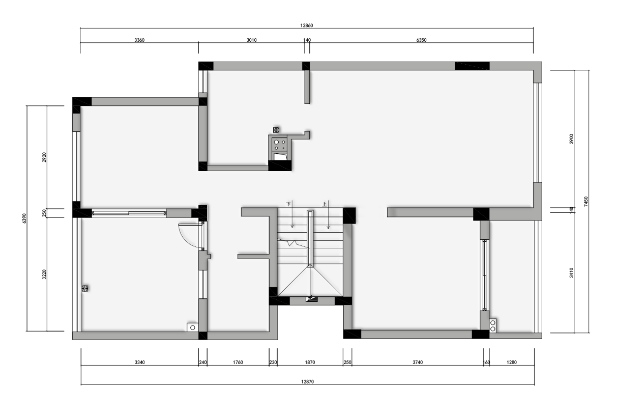
二层原始结构图
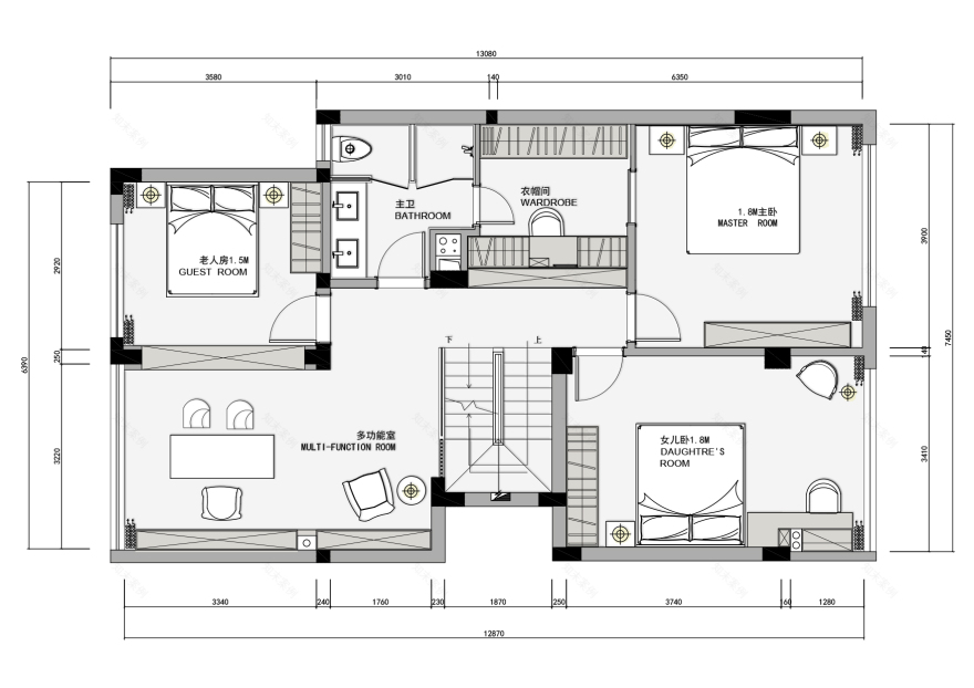
二层平面布置图
主卧
主卧选择了舒适布艺靠背床,使人在触感上能感到舒适与柔软。床头的单簇光源增加了卧室的氛围感,营造了一个冷静又放松的空间。
女儿房
长辈房
二楼老人房朴素优雅,内敛大气。看似简单的搭配,细节的处理却颇具匠心。
多功能室
主卫一二层卫生间采用统一的色调,利落流畅的动线与机能,满足了业主的日常使用需求。
本套方案运用材质的搭配、虚实结构的拿捏,创造出空间的精致度与质感,展现独特的生活品味。在微风徐徐中,尽享时光的流淌。
【工程地址】:微风之城
【户型结构】:四室三厅一厨两卫
【房屋面积】:199M2 户型
【全案设计】:内舍·&
来自群组:内舍整体软装
客服
消息
收藏
下载
最近






























