查看完整案例


收藏

下载
△ 从更衣区望向前厅 摄影:王嘉琪-其间摄影
西建大建筑学院-垣建筑设计工作室
坐落于西安高新区唐延路与丈八路十字东南角的都市之门办公综合体,是高新区门户空间的标志性建筑,也是高新区重要的办公会议场所和产业孵化基地。建筑一至三层为商业空间,每层净高 5.9 米,四层以上为办公空间。项目就位于建筑二层的两跨商业空间之中,改造前面积为 176 平方米。
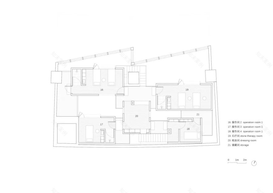
业主租下了两层商业空间,底层作为西餐厅使用,上层作为以理疗、按摩、美容功能为主的生活馆使用,并希望两者功能相对独立。对于生活馆,业主提出了较高的功能性需求,需要容纳五个独立的操作间,以及洽谈间、洗头间、更衣室等房间,还要有用于接待、休息功能的若干公共空间。
△ 方案生成 ©垣建筑设计工作室
△ 整体模型 ©胡祎航
在接触项目之前,业主就已经对空间做了一些初步改造,首先拆除了之前设计搭建的钢结构。同时因为生活馆没有独立的沿街入口,业主选择在房间的西南角加建一部电梯,用来解决上层的进入问题。
经过梳理,设计团队发现了项目的几个核心诉求。首先,摆在面前的是放置业主需求的多个功能性房间,并需处理其与公共空间的关系,在有限的面积内保证两者之间既相对独立又相互依存;其次,设计应提供一处尺度宜人的场所,在高密度、大尺度、快节奏的城市商务区中为办公人群消解工作压力,创造一处小憩片刻的空间;最后,需要寻找一种方式,将室内空间投射到外部环境之中,使其被感知到,从而提升较为消极的二层空间的商业价值。这三个诉求贯穿了设计的始终。
△ 视频介绍 制作:王琛、李少翀
从房间开始思考的空间关系
为了解决业主功能性的需求,团队首先将操作间、洽谈间、洗发间、更衣室等功能分别放置在 10 个房间之中。再将 5 间房布置在一层,另外 5 间房错位布置在二层,创造出房间外的一个大小连续变化的公共空间,让房间与公共空间同时产生。
这一设计目的就是让公共空间划分成不同的领域,同时又彼此关联,让身处公共空间的使用者获得丰富的体验。在大大小小的公共空间中穿行,身体不断地感觉到包裹与释放,让人联想到行走在溪流与丛林、或是低矮的房子与街巷空间中的感觉。
△ 散落的房间 ©胡祎航
△ 负形空间 ©垣建筑设计工作室
与公共空间的紧密关联,导致房间界面的处理需要特别关注。根据对公共空间的开放程度不同,对房间界面的处理采取掏挖和开洞两种方式。被掏挖的房间在公共空间界面产生厚度,增强了房间的体量感,使其与公共部分的体量感建立联系,同时可用作储物功能。另一方面,被开洞的房间则通过墙面的开窗建立了与公共空间视线上的联系,在感知上扩大了房间内部的边界。
在这个思考房间与公共空间相互依存关系的过程中,两个重要的空间群自然而然地形成了。
△ 高差型空间群空间氛围 摄影:王嘉琪-其间摄影
一是围绕着入口前厅而展开的环绕型空间群。前厅是这组空间群的核心空间,一二层房间以及房间外的小公共空间,都错位地围绕着通高的前厅进行布置。更衣、接待、等待、茶饮等行为都发生在这个空间群之中,这种聚合、内向、可通过的感觉是入口附近所需要的空间氛围。
△ 一层房间模型 ©胡祎航
△ 前厅及接待空间 摄影:王嘉琪-其间摄影
△ 前厅旁的等待区 摄影:王嘉琪-其间摄影
二是以东北角休息区大空间为核心的高差型空间群。大空间因被小房间体量挤到了北侧靠窗的位置,从而获得了充裕的光线和良好的视野,这种外向的感觉与入口前厅空间群的氛围截然不同。
从走道经过檐下空间,几阶踏步向上来到抬高了 800 毫米的大空间,会发现层的界限被打破,人距离二层房间的窗子又近了一些。再加上围绕空间中唯一一根独立钢筋混凝土结构柱布置的主楼梯,使人们获得不同标高上的体验。该空间群在垂直方向上制造了一个比较亲密的尺度,使休息区获得了如同在家里一样轻松的氛围。
△ 二层房间架在一层房间之上 ©胡祎航
△ 环绕型空间群空间氛围 摄影:王嘉琪-其间摄影
△ 进入梳妆间 摄影:王嘉琪-其间摄影
两个空间群作为生活馆中最为开放的部分承担了讲座、分享会这样的功能,同时也为未来作为城市多功能空间的使用创造了可能性。
△ 前厅周边的小空间 ©李少翀
△ 通道空间(左);休息区与收银台(右)©李少翀
5.9 米净高之下的尺度
主要的空间关系营造空间的氛围后,房间的尺度感需要进一步被讨论。改造前空间净高只有 5.9 米,主梁下高度只有 5.1 米,钢结构搭建两层的情况下,每层房间的高度不可能太高。
△ 茶室 ©王嘉琪-其间摄影
△ 茶室空间与辅助楼梯 ©王嘉琪-其间摄影
△ 辅助楼梯外的空间 ©王嘉琪-其间摄影
△ 左:更衣间 ©李少翀;右:洗发间 ©王嘉琪-其间摄影
在综合考虑结构高度、地面材料、管线布置等问题的情况下,小房间的净高被确定为 2250 毫米~2400 毫米之间,其尺度与人体的尺度紧密相关,对身体的包裹感而产生的私密性正是这里房间所需要的。
△ 剖透视示意图 ©垣建筑设计工作室
△ 从梳妆间向外看 ©王嘉琪-其间摄影
△ 休息区外的操作间 ©李少翀
同时,通过开洞和开窗,小房间的视线可延伸至公共空间中,在感知上扩大了小房间的面积,使每一个房间都获得了独特的空间体验。这种大小尺度不断转换的做法,在解决了功能需求的基础上增加了空间趣味性。
△ 房间外的小空间 ©李少翀
△ 视线的窗户与通风的窗户 ©王嘉琪-其间摄影
△ 被开洞/掏挖的房间 ©李少翀
使用者在体验空间时,有三条动线特别重要。第一条是客人到达操作间的动线。客人首先经过压低的入口,在接待处和更衣区感受具有围合感的空间,再通过柱子后狭窄的楼梯上到二层,由梳妆间分别去到各个操作间。这条动线并不长,但在保证效率的基础上提供了丰富的空间体验。
△ 辅助楼梯周围的空间 ©王嘉琪-其间摄影
△ 狭窄的通道空间 ©王嘉琪-其间摄影
第二条是客人到达休息区的动线。从入口到达明亮通透的东北角休息区,要经过一个狭窄的通道。通过狭窄和宽敞空间的对比,休息区的客人可以轻松惬意地在窗边进行活动。
△ 主楼梯与休息区 ©王嘉琪-其间摄影
△ 休息区前的高差 ©王嘉琪-其间摄影
△ 休息区前的空间 ©王嘉琪-其间摄影
第三条是服务动线,服务人员通过通道南侧的服务楼梯上到二层,对每个房间进行服务。同时,一层前台、茶室、洗发间的集中设置缩短了服务动线,让服务人员尽量集中在南侧,与客人分流。几条明确的动线组织起了功能,也让穿行于空间中的人有了不同的感受。
△ 狭窄的通道空间 ©王嘉琪-其间摄影
△ 通道上部空间 ©王嘉琪-其间摄影
“抵抗重力”的结构与构造
建造时选用钢结构作为两层房间的主体结构,并在钢结构外包裹石膏板材,让真实的结构隐匿于板材之后,使抽象的体量感凸显出来。
为了“抵抗”重力,使二层房间“漂浮”于一层房间之上,营造整体更加轻盈的感觉,设计师选择在一层钢梁之上加建一排 100 毫米×100 毫米方钢架起二层钢结构,再利用这 100 毫米的高差,完成上下石膏板材各向中间包裹 50 毫米的做法,使上下两个完成的体量相接但不嵌套。这种被消除的重力感所带来的轻松的氛围与整体空间所创造的氛围是一致的。
△ 抵抗重力的“漂浮感” ©王嘉琪-其间摄影
房间内部根据需求进行了不同的布置。在操作间中,硬包板材的划分模仿了石材砌筑的比例关系,又一次降解房间尺度的同时与房间外空间材质进行对比。每一扇窗都包括一块不可开启的大玻璃窗和两面可开启的木板窗,用以区分视线和通风的不同需求。开启和闭合木板窗的行为,同时为房间和公共空间增添了许多生动的画面。
△ 抵抗重力的“漂浮感” ©王嘉琪-其间摄影
抽象的体量、虚实关系的对比使生活馆具备了可被投射在外部环境之中的强烈特征。尤其是当夜幕降临,光透过白色的体量,再穿过玻璃幕墙映射在园区之中,有如城市中的一盏灯,为晚归的办公人群和到此活动的周边居民点亮了夜晚的生活。这个原本内向的空间突破了建筑的边界,成为了城市中的装置艺术。
△ 城市中的装置艺术 ©王嘉琪-其间摄影
与一般类似案例首先区分公共和私密区域的做法不同,该项目的设计始于房间。首先确定每个房间所需的大小,再在空间上分别对其进行定位。在空间结构清楚的情况下,再次梳理其所带来的功能、流线、结构、管线布置等问题。其结果是空间虚实分明、大小连续变化,增加了公共空间中动线上体验感的同时,扩大了小房间感知上的面积。面对同质化的城市公共空间,创造了一个舒适宜人的活动场所,也许是生活馆能够带给这片城市最为独特的体验。
△ 黄昏时空间中的光影变化 ©王嘉琪-其间摄影
△ 楼梯转角 ©王嘉琪-其间摄影
△ 一层平面图 ©垣建筑设计工作室
△ 二层平面图 ©垣建筑设计工作室
△ 剖面图 ©垣建筑设计工作室
△ 节点剖轴测示意图 ©垣建筑设计工作室
项目地点:陕西省西安市高新区都市之门 d 座
主创建筑师:李少翀、王毛真、吴瑞
设计团队完整名单:王紫悦、余帆、刘怡嘉、蒋姝君、邱浩然、李轩、胡祎航
合作建筑师:李兴辉(观易建筑)
设计时间:2019 年 8 月—2020 年 1 月
建设时间:2019 年 11 月—2021 年 2 月
建筑面积:272 平方米
施工:西安郎之道建筑有限公司(钢结构)、馨木美居
软装:室-VENTRICLE
摄影:王嘉琪(其间摄影)、李少翀、胡祎航、王琛
视频制作:王琛、李少翀
视频版权:垣建筑设计工作室
客服
消息
收藏
下载
最近
















































