查看完整案例


收藏

下载
& “居住空间希望能够跟居住者达成空间情绪的共鸣,建立某种平和和默契。所以在设计过程中我希望抓住客户的情感诉求作为出发点…”
"The living space hopes to reach a spatial emotional resonance with the residents, to establish a kind of peace and understanding. So in the design process, I hope to grasp the customer's emotional appeal as a starting point..."
▼客厅LIVINGROOM
客厅大面木色的墙面,很好的提升了家里的温馨度,黑色边柜跟整体的电视墙做了很好的体块比例,增加高级感。
▼餐厅DININGROOM
餐厅设计,是美学与功能的融合,更是感性与理性的平衡。从而营造了一种静谧、优美的无穷境界。有一种空间,交错时光,回味、想念,一道美好又感动的思念。
由中轴线贯穿公领域及私领域,相互分割参透,以水染木皮与灰色地面串联出整体空间的重要联系。这是空间与空间的串连,亦是感情上的连结。
▼卧室BEDROOM
主卧透过空间的虚实处理,分离了休闲区与睡眠区,衣帽区等功能区域,形成一个共享与私密的自由空间。
▼卫生间BATHROOM
卫生间通过大理石花纹演绎极简与极致的内在精神,其不拘一格的设计体现了当代人对简朴旷达生活的追求。
仔细品味材质原始姿态下所建构而成的安谧,空间围绕形塑出的温润朴质。
沉淀后,从容的面对空间与自身之相互对话的滥觞。
项目名称 |內徑
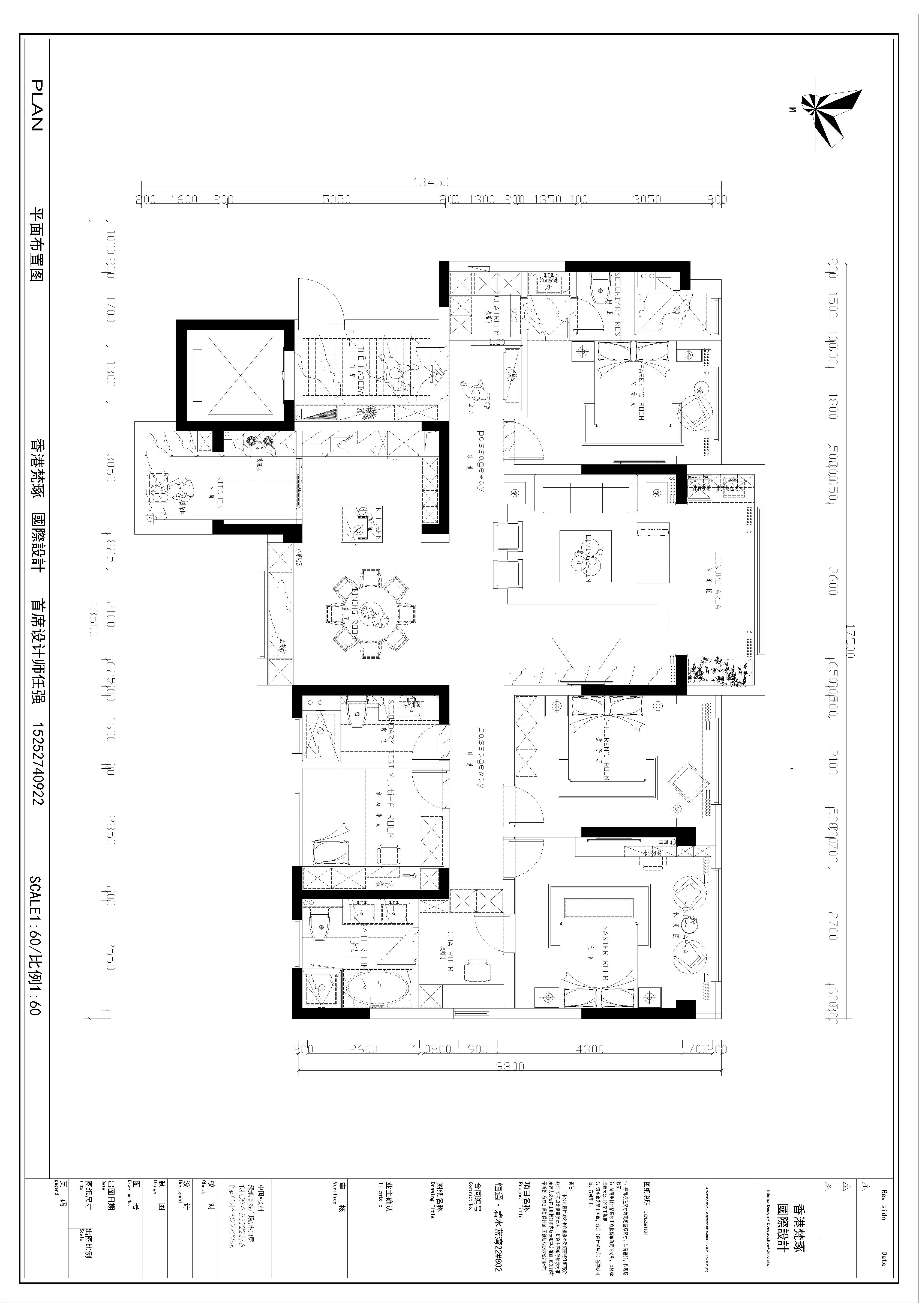
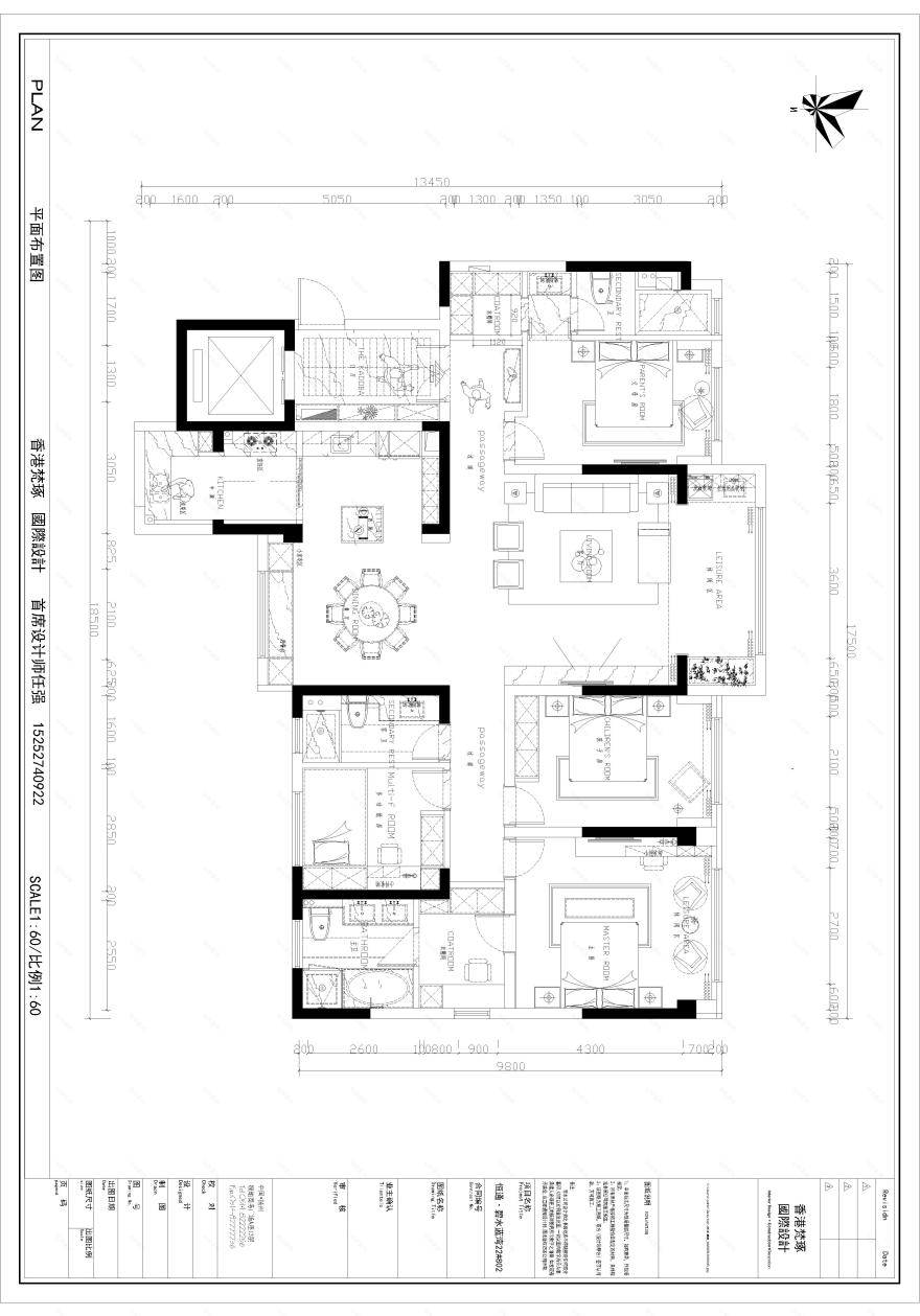
项目地址 |碧水蓝湾 扬州·邗江
设计团队 | 梵琢设计
设计周期 | 2020-5/2020-6
建筑面积 | 190㎡
项目类型 | 平层住宅
客服
消息
收藏
下载
最近










