查看完整案例


收藏

下载
项目名称:比利时L型乡间别墅
位置:比利时
设计公司:Michel Prégardien Architecture
这是位于郊区的乡村单位,这个单户住宅融入了这样一个当代语言分类代码:与街道连接的垂直空间,简单的体量,入口的庭院从街道倒退进来,天然的原材料。微微倾斜的地面,融入了梯级和露台,建立了各自的容量,打造了复杂的建筑长廊,逐步把来访者引入一个用木材和水泥建造的缠绕梁柱结构空间。这样,通过简约的外部结构,室内空间营造各种模糊性:同时充分与外部联系,但系统地被柱子间断,控制视觉,建立品质...这样营造室内单位的感觉。这个单位通过主楼梯和跨过两部分空间的镂空步道得到进一步延伸,通过不断的材料呈现,提供不同空间之间的空间连贯性。这个构思的效果是一个不断变化的家(光,透视、感觉...)为这里的居民提供一个每天更新的居住环境。
比利时L型乡间别墅外部实景图
比利时L型乡间别墅内部实景图
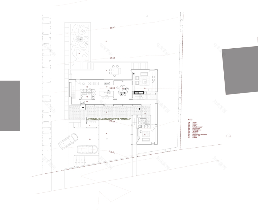
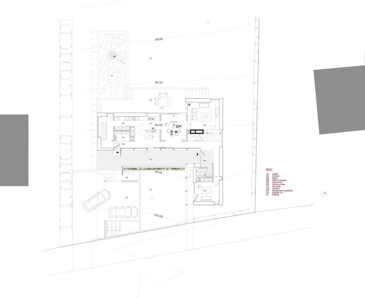
比利时L型乡间别墅平面图
客服
消息
收藏
下载
最近




















