查看完整案例


收藏

下载
英文名称:Commercial residential villas
位置:巴西
设计公司:Vão Arquitetura
“The Ownerless House nº 01”坐落于巴西圣保罗州Avaré城,是三个相邻建筑之中的第一座。与往常独户住宅不同, 作为一个商业住宅投资项目,业主希望该住宅可以具备充分的空间灵活性,以适应未来不同居住家庭的各种需求。住宅打破传统,将由外至内的布局打造成一系列开放与闭合的连续空间,光与影配合着季节和天色的变化在空间里呈现出变化的律动之感。从外形上看,住宅如同矗立在场地中的雕琢物,斜面的红墙在平面上创造出透视效果,旅程便从这透视灭点开始。入口花园为公共空间与居住空间营造了良好的过渡,屋顶的镂空三角形照亮了其下的公共空间,一个悠闲长椅也被刻意放置于此,为街道观景提供了种种便利。
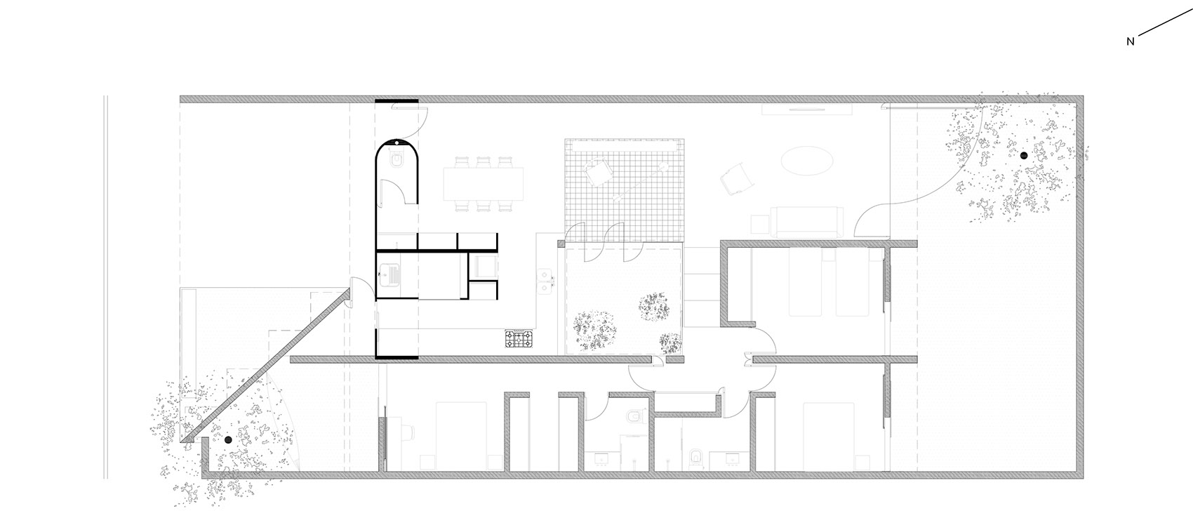
居住平面由一个60厘米长的坡度分为上下两个层面,其一容纳了社交和服务功能空间并与主入口直接相连。另一则容纳私密空间如卧室和卫生间,需经过一条台阶抵达。住宅入口设于立面的混凝土墙壁上。除作为住宅外墙外,该混凝土墙壁与内部隔墙共同围合成居住空间里的厨房,洗手间和其他服务性设施。客厅,餐厅和厨房围绕住宅中央的内置庭院展开,围合庭院的玻璃墙壁既限定了各个空间,又在视觉上拉近了各空间之间的距离。中庭及其外围区域于地面层略向下凹陷,并铺以亮丽多彩的液压瓷砖。一方镂空的藤架顶置于中庭之上,该镂空区域各部分均由预制构件现场拼接而成,以保证其最终形态的同一性。这
一建
造方法参考了巴西建筑师Rino Levi的手法,他曾在市中心的混凝土居住建筑中使用类似的预制构件,使建筑入口更显轻盈通透之感。
nº01商住别墅外部实景图
nº01商住别墅外部夜景实景图
nº01商住别墅内部实景图
nº01商住别墅平面图
nº01商住别墅剖面图
nº01商住别墅立面图
nº01商住别墅细节图
nº01商住别墅示意图
客服
消息
收藏
下载
最近








































