查看完整案例


收藏

下载
Australia in XYZ villa
设计方:Mark Aronson建筑设计事务所
位置:澳大利亚
分类:别墅建筑
内容:实景照片
图片来源:Douglas Mark Black
项目规模:120平方米
图片:33张
摄影师:Douglas Mark Black
既有的城市海滨别墅坐落于林荫大道上,林荫大道很宽,两边树木成排,还有肥沃的路边草坪,连接着利德维尔的珀斯郊区和印度洋边的文布利。原始建筑于1962年由GE Swallow建筑师设计,是六十年代早期西澳大利亚州典型的现代主义建筑。别墅包含倾斜度低的金属屋顶和粉刷过的多尼布鲁克石及砖块做成的墙面。室内有红柳桉树地板和狭长的砖砌物。别墅的场址是倾斜着的,原始建筑与脱离街道的车库呈层级式分布。别墅场址呈南北向,因为与海滩相距1000米远,再加上树形成的隔离层,别墅并不会遭受来自海洋的强西南风的袭击。
客户是一对年轻的、具有专业设计意识的夫妻,他们希望将别墅向花园延伸,以便更好的利用外部的、隐私的生活空间,并使别墅户内外的生活方式特点最大化。别墅里有一个整修过的厨房,厨房所在的位置穿过了别墅的后墙。这个设计没有保留任何六十年代房屋的特色,但在生活区和花园之间形成了一堵视觉上的屏障。房主最近修建了一个游泳池,并希望多做些改进。
译者:蝈蝈
The existing City Beach house is located at The Boulevard, a tree-lined wide drive with generous grass verges that connects the Perth suburbs of Leederville and Wembley with the Indian Ocean.The original dwelling was designed by architect GE Swallow in 1962, and is a beautifully intact example of early 60’s West Australian modernist Architecture. It comprises a low-pitched metal roof, with Donnybrook Stone and painted brickwork to the facade, whilst internally Jarrah floorboards and slim natural brickwork are expressed.Located on a sloping site, the original building is split level with a double garage off the street . The `site is on a North-South alignment and is protected from the worst of the strong southwesterly gusts from the ocean, being a distance of 1000m away to the beach and sheltered via adjacent trees.
The clients, a young and design conscious professional couple, wished to extend their house into the garden to make better use of their private outdoor living space, and maximise the indoor/ outdoor lifestyle.The existing condition of the house incorporated a renovated kitchen, which was located across the back wall of the house. This element did not retain any original features of the 1960’s house, but formed a visual barrier between the living spaces and garden. The owners had recently built a swimming pool and wished to make more of this.
澳大利亚XYZ别墅外部实景图
澳大利亚XYZ别墅外部侧面实景图
澳大利亚XYZ别墅外部夜景实景图
澳大利亚XYZ别墅内部实景图
澳大利亚XYZ别墅内部客厅实景图
澳大利亚XYZ别墅内部房间实景图
澳大利亚XYZ别墅内部局部实景图
澳大利亚XYZ别墅模型图
澳大利亚XYZ别墅草图
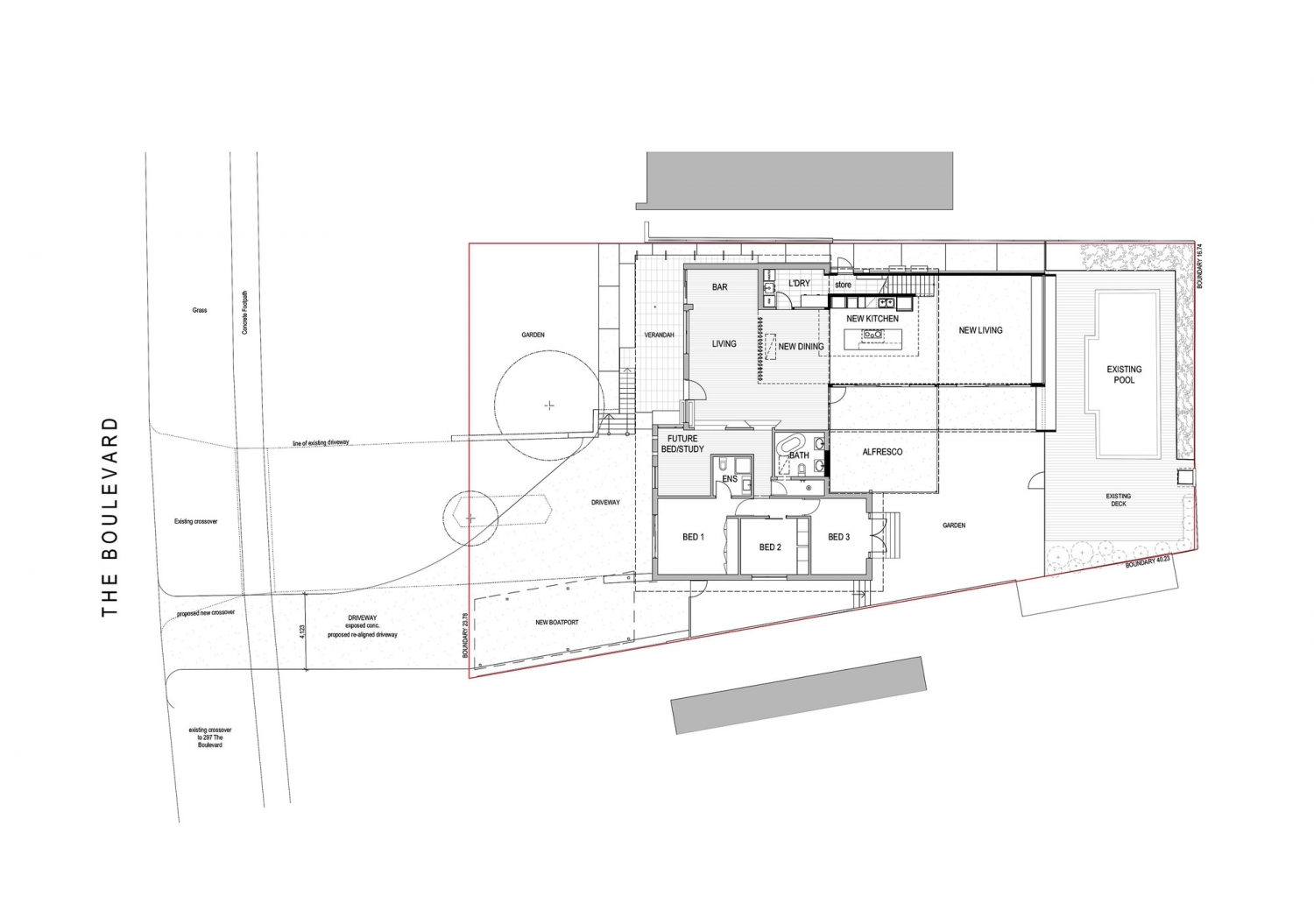
澳大利亚XYZ别墅平面图
澳大利亚XYZ别墅北立面图
澳大利亚XYZ别墅南立面图
澳大利亚XYZ别墅西立面图
澳大利亚XYZ别墅剖面图
客服
消息
收藏
下载
最近



































