查看完整案例


收藏

下载
House in Restelo / Leonor Duarte Ferreira + pmc arquitectos
设计方:Leonor Duarte Ferreira + pmc arquitectos
位置:葡萄牙
分类:别墅建筑
内容:实景照片
合作人:Irene Cunha, Carmo Caldeira
建筑年份:2011
建筑设计负责人:Leonor Duarte Ferreira + pmc arquitectos – Miguel Passos de Almeida, Carlos Sousa Coelho
项目规模:690平方米
图片:18张
摄影师:FG+SG – Fernando Guerra, Sérgio Guerra, Courtesy of Leonor D
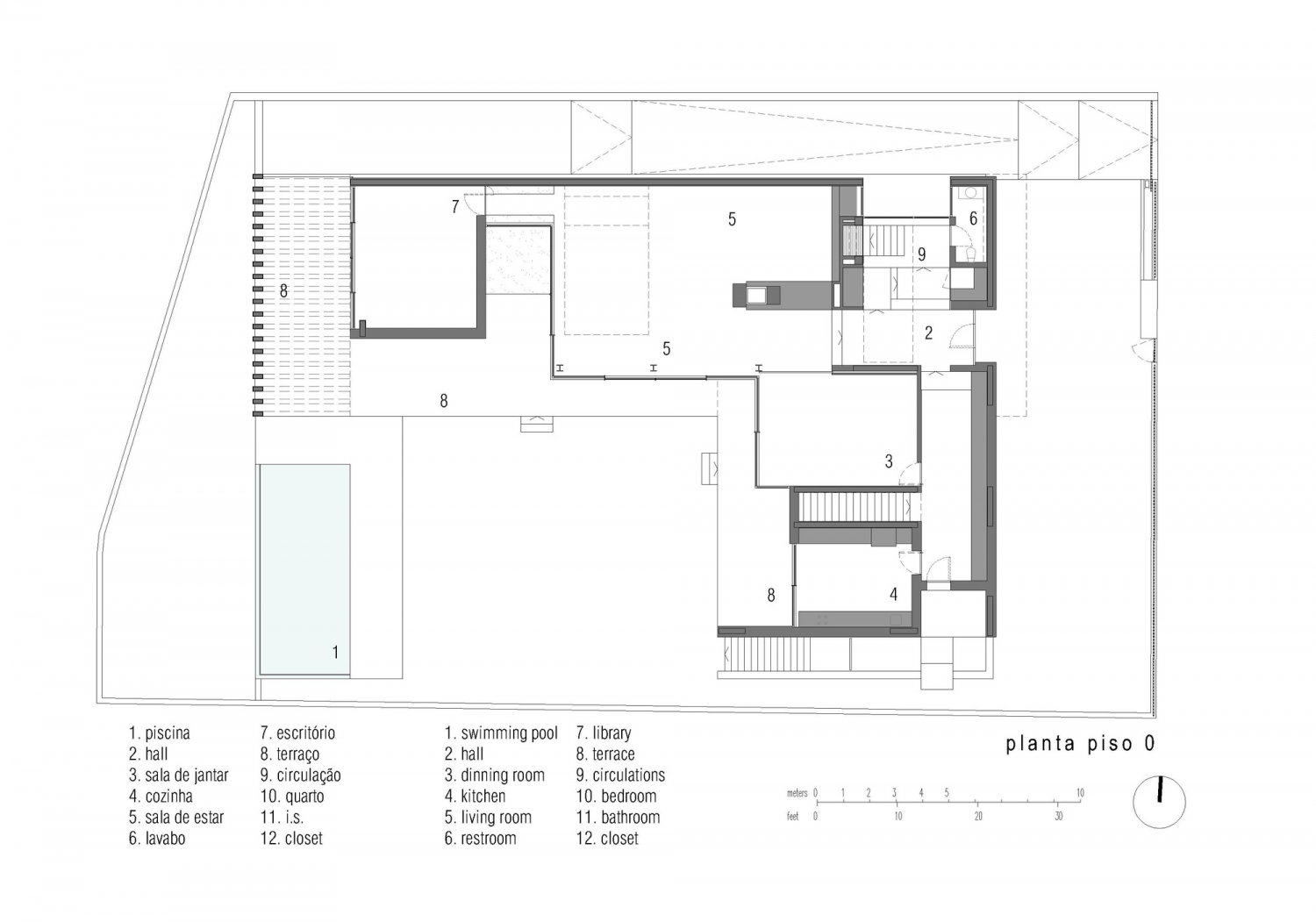
这是由Leonor Duarte Ferreira 与pmc arquitectos联合设计的Restelo别墅。场地位于里斯本一个居住区内,用地近似矩形,面积达914.2平方米。场地纵向有2米高差,东西走向,最高点位于快速路一侧。
对地形和朝向的考虑决定了别墅设计的方向。设计团队试图通过充分利用太阳走向与现状地形的优势,强调别墅与土地之间的关系。
空间组织方面,建筑分为三层,其中地上两层、地下一层。建筑整体分为两个主要体块,一个较大一个较小,两者拼成L型的平面。较高的建筑体沿着东西走向布局,而较低的建筑体块仅有一层高,与街道走向平行。每个建筑体块通过庭院和阳台等形成室内外强而有力的延伸关系。这些过渡空间还有助阻隔自然光线。双层高的天花高度加强了楼层就之间的联系,如大堂与客厅。建筑底层的空间关系密切,大厅是别墅最为流动的空间,通过水平逐步增加高差,形成极具活力的场所。
建筑二层设有4间卧室,每间卧室都有独立厕所。主人套房另有一个衣柜和小型私人健身房,对着客厅夹层开放。为了使卧室这一层的空间更加有趣,设计团队通过天窗引入光线。通过双层高的客厅楼梯进入主卧室。卧室朝南,西部的大扇窗户设有可操作的水平百叶窗。这些百叶窗同样应用到别墅背面,形成卧室这一层的单
一建
筑语言。
建筑地下室则布置了车库、设备用房、储物室、游戏室/电影室、音乐室、一间卧室与两个厕所。其中一个厕所供游泳池所用。
译者: 艾比
Architects: The site, with an almost rectangular shape, has 914.2 m2 and is inserted into a residential neighborhood in Lisbon. Topographically the site is characterized by a drop of about 2 m, with the longest axis, oriented east / west, with the highest point on the side of the access road.
Site
The way the house is implanted on the ground arises on one hand from the regulatory implementation of polygons, and on the other hand from the intention of creating a garden with a south facing pool, sheltered by the volume of the house.
Thus, the unevenness of the terrain and its orientation determined and conditioned the way the house develops. We sought is a strong interaction between the house and the land, taking maximum advantage of solar orientation and existing topography.
Spatial Organization
The house is organized into 3 levels, 2 floors above ground and one underground.
Volumetrically, the house is designed in two volumes, a larger one and a smaller one, forming an L-shape. The taller and more compressed volume is designed along the east / west axis, and the lower body, only one story high, is laid out parallel to the street.
Each of these volumes is organized to provide a strong inside / outside relationship by extending interior spaces to the outside through courtyards and balconies. These transitional spaces are also crucial to protect large glass surfaces from the sun. There is a strong link between the floors through double ceiling heights, such as in the lobby and the living room.
On the ground floor, the spaces are very interconnected. The hall is the most fluid space of the house, with a very particular dynamic, created by the progressive difference in levels and the difference in ceiling heights.
The living room has two distinct areas. A more intimate area directly enjoys the fireplace, and another more open area is connected to the garden through a large glazed surface facing south. Still facing the garden, the dining room and kitchen are in the lower volume of the house, facing west.
There is also a multipurpose room facing west that communicates with an exterior area, covered by a concrete pergola which provides an interesting play of shadows to this space.
On the 1st floor are 4 bedrooms, all of them with individual toilets. The master suite has a closet and a small private gym, open towards a mezzanine over the living room.
In order to make the circulation between rooms on this floor more interesting, we provide zenith lighting through skylights arranged according to a pattern of the wall panel that integrates the bedroom doors. Access to the master bedroom is via a catwalk that crosses the double height of the living room.
All the bedrooms are facing south and west, and the large windows are protected by operable horizontal shutters that can be opened. These shutters are repeated on the opaque north facade, seeking to create a single language for this floor.
In the basement, in addition to spacious garage, building facilities and storage area, there is a game room / cinema, a music room, a bedroom and 2 toilets, one of them serving the pool.
里斯本Restelo别墅外观图
里斯本Restelo别墅外部局部图
里斯本Restelo别墅外部细节图
里斯本Restelo别墅内部客厅图
里斯本Restelo别墅内部走廊图
里斯本Restelo别墅
里斯本Restelo别墅总设计图
里斯本Restelo别墅二层平面图
里斯本Restelo别墅截面图
里斯本Restelo别墅南北立面图
里斯本Restelo别墅东部和西部立面图
客服
消息
收藏
下载
最近




















