查看完整案例


收藏

下载
France Tirepois apartment
设计方:Fabre/deMarien
位置:法国
分类:别墅建筑
内容:实景照片
图片:15张
Achard路是Bacalan区域的主干线,是波尔多码头的延长部分。项目坐落在两块小的未开发场址上,每一块场址大约600平方米。其中一块坐落在Achard路和Delbos路的交叉点上,这里坐落着建筑体量A;另一块场址坐落在后部,延长了cite Tirepois,这里坐落着建筑体量B。所有的关节都围绕着这个被保留下来的人行通道设置。在项目所在的街区中,这是最后一种,起码是唯一一个还保留着这种独特性质的区域。
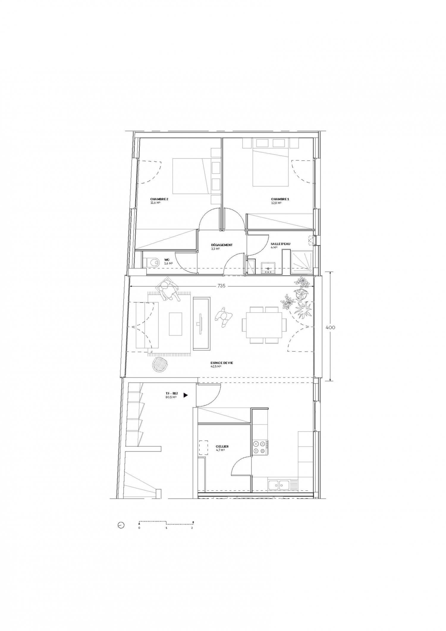
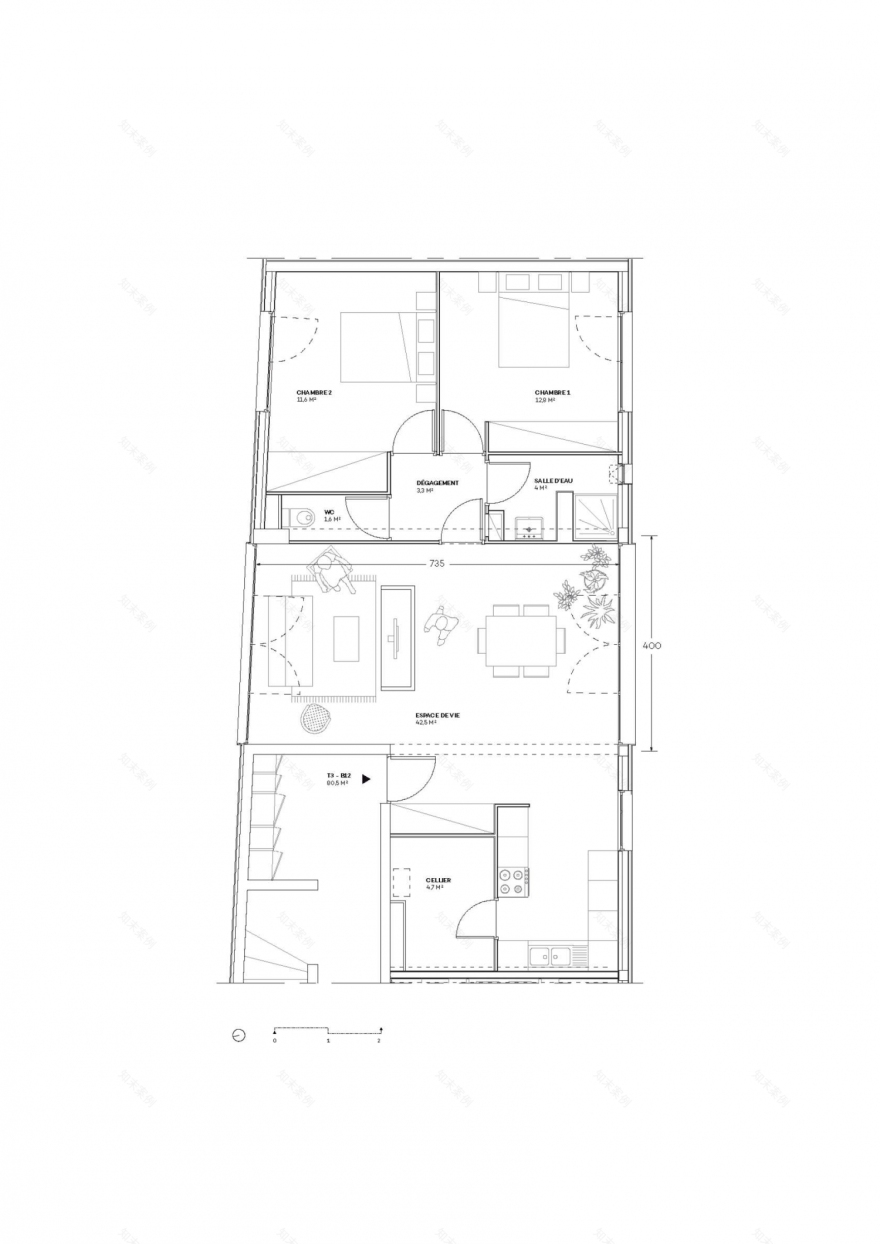
18套公寓遵循着同一个准则:生活空间被设置在中间,占据着建筑体量的全宽,并通过一个中级的全高滑动窗框大面积的向外部敞开,窗框上没有可见的过梁。每个生活空间的空间都是连续的,即没有柱子或者墙壁的阻隔,一直畅通无阻的生活空间最后被厨房、储藏室、卧室和盥洗室阻隔住了。阳台和凉廊这些典型的户外空间被融合进了建筑体量中,并增加了净楼面面积,两居室公寓的面积在71平方米到81平方米之间。
译者:蝈蝈
‘Rue Achard’ is the main artery in the Bacalan area created by the lengthening of the Bordeaux quayside. The project sits on two small Greenfield sites, each roughly 600m2, one at the junction of ‘rue Achard’ and ‘rue de la Delbos’ (building A), and the other behind running the length of the ‘cite Tirepois’, (building B). The whole articulate around this preserved field path. In the neighbourhood, it is the last of its kind – at the very least, the only one which kept this specific nature.
The 18 apartments follow a common principle: the living spaces are placed in the middle, occupying the width of the buildings and are largely open to the exterior by an intermediate floor to ceiling sliding window frame (no visible lintels), running the length of each space (no columns or walls)and are enclosed by the kitchen, storage spaces and the bedrooms and bathrooms. The typical external spaces of the balconies and loggias are integrated into the buildings and raise the net floor areas (71-81 m2 for a 2 bed apartment).
法国Tirepois公寓楼外部实景图
法国Tirepois公寓楼外部夜景实景图
法国Tirepois公寓楼内部实景图
法国Tirepois公寓楼平面图
法国Tirepois公寓楼示意图
客服
消息
收藏
下载
最近































