查看完整案例


收藏

下载
英文名称:Hangzhou Infinity Technology Park
位置:浙江 杭州
设计公司:绿城设计
我们印象中的厂房似乎是简陋、嘈杂的代名词,而英飞特集团,作为一家以LED见长的高科技企业,我们希望能在其总部大楼的设计中,打破人们对传统厂房的既定认知,结合互联网时代的多元碰撞思维,将多种功能空间融入其中,生成集生产、办公、科研为一体的混合型总部大楼。设计以多样化的功能诉求为出发点,将生产使用的大尺度空间,科研使用的研发专用空间,行政使用的普通办公空间,及代表企业总部形象的高端会所等多种功能空间融为一体,试图通过复合多元的功能组织,模糊各功能模块间的界限,打破不同阶层间的壁垒,将不同工种的人群聚集在一起,为生处其中的人们创造更多碰撞可能。
设计以两组首尾相连的流动体量为原型,将人们在时空转换中的感受与体悟融入其中,使相对抽象的建筑意向得到了具象化的表达。黑白分明的两组体块相互咬合、交织,白色是一线的生产团队,活力十足,黑色是踏实的科研团队,深沉内敛,穿插其间的透明玻璃体块,就如一注隐形粘合剂,暗示着两者相对独立又密不可分。为满足企业未来发展的不同需求,设计以“功能模块+中庭空间”的组织模式,为不同人群创造舒适的工作环境,配合风格多元的室内环境,在保证各功能空间紧密联系的同时,又保证了灵活高效的组织关系,同时也为未来空间的可变性寻得一种新的思路。
杭州英飞特科技园实景图
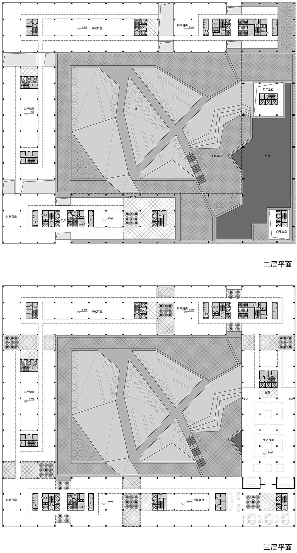
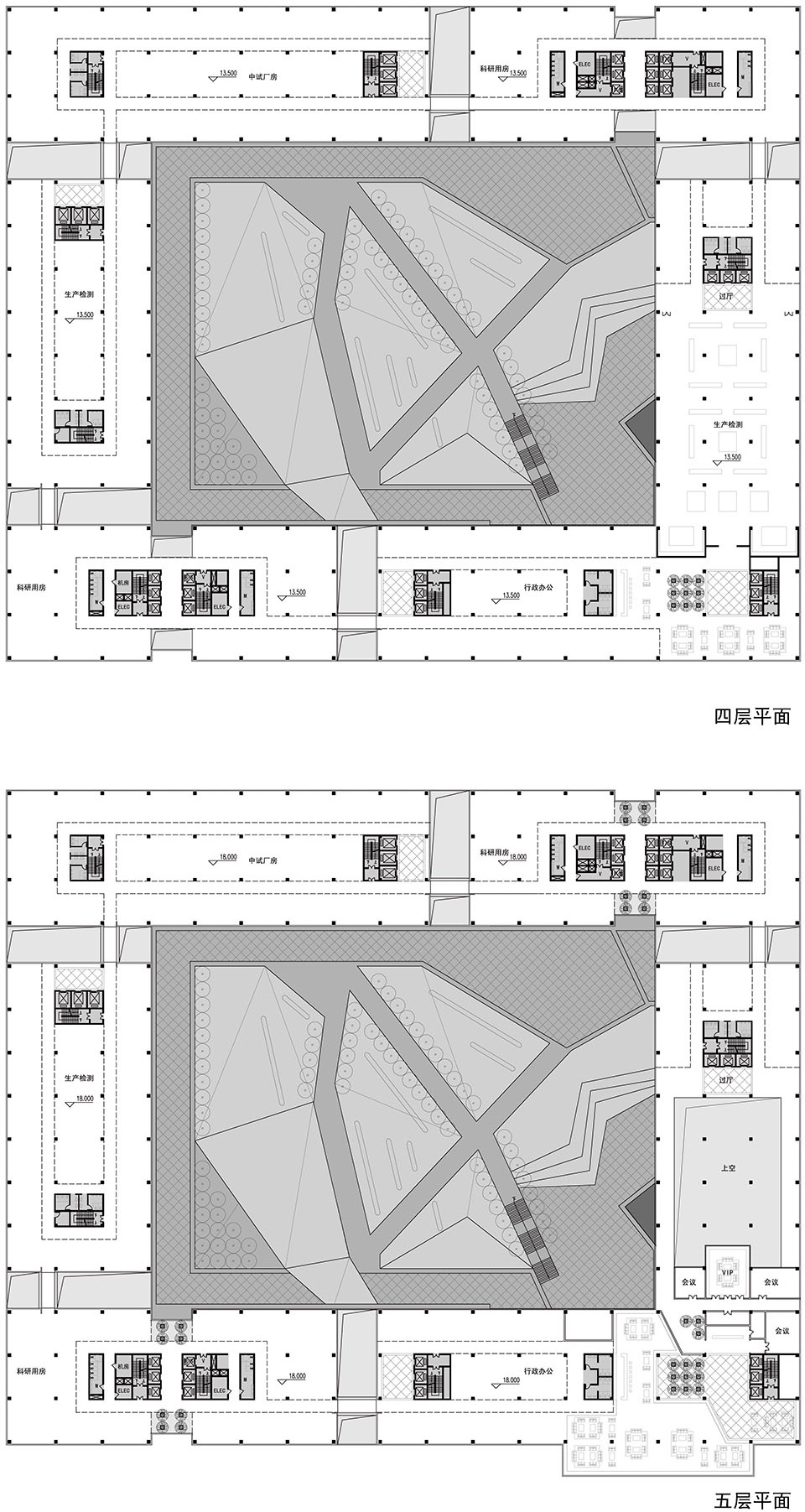
杭州英飞特科技园平面图
客服
消息
收藏
下载
最近




















