查看完整案例


收藏

下载
项目名称:法国Anis办公大楼
位置:法国
设计公司:DREAM、nicolas laisné architectes
Anis是一幢带有露台的办公楼,位于尼斯Méridia城市技术中心,由建筑师Dimitri Roussel和Nicolas Laisné设计。从其提供的办公空间来看,该建筑反映了各公司对于户外和绿地空间的关注,同时展现了创新与环境友好的特征。Anis是一幢带有露台的办公楼,位于尼斯Méridia城市技术中心,由建筑师Dimitri Roussel和Nicolas Laisné设计。从其提供的办公空间来看,该建筑反映了各公司对于户外和绿地空间的关注,同时展现了创新与环境友好的特征。大楼坐落在一片绿地的核心地带。一系列露台将花园包含在内,同时互相形成连接,可作为工作空间或非正式的会议空间。透明的立面使光线得以进入室内,悬挑的露台则能够抵御日晒,营造出可控制的适宜环境。设计的另一个重要策略是,将所有的走廊和通道移至建筑外部。由于走廊空间通常位于建筑的中心地带,因此这种移动至外部的做法使整个楼层的空间被解放出来。
方案还移除了建筑中常见的假天花板,使空间显得更加开阔。所有的管线设备均分布在地板下方。这些创新性的做法为使用者提供了最大化的布局自由度,走廊和通道也使建筑立面变得更加生动,同时为公司员工带来了能够俯瞰花园的非正式讨论空间。在不受既定条件限制的情况下设计并打造持久耐用的建筑,是一种十分重要的环保态度。详细来说,Dimitri Roussel和Nicolas Laisné希望通过Anis来打破标准企业地产的设计框架,例如常见的玻璃幕墙,通常意味着它是一个能源密集型的项目。建筑师通过该项目树立了一个可持续设计的典范。经过优化的设计策略能够应对各种气候状况,例如根据朝向设计的悬挑、冬季通过太阳能的应用来降低供暖能耗、夏季提供遮阳以改善工作条件等。走廊和通道区域能够在调节气候的同时最大程度地实现自然通风。
法国Anis办公大楼外部实景图
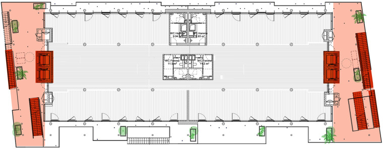
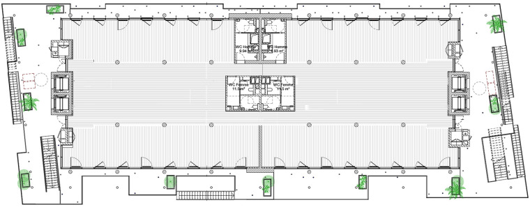
法国Anis办公大楼平面图
法国Anis办公大楼轴测图
客服
消息
收藏
下载
最近



















