查看完整案例


收藏

下载
项目名称:德国 MHK 新总部大楼
位置:德国
设计公司:AS+P Albert Speer,Partner GmbH
摄影师:BECKER LACOUR
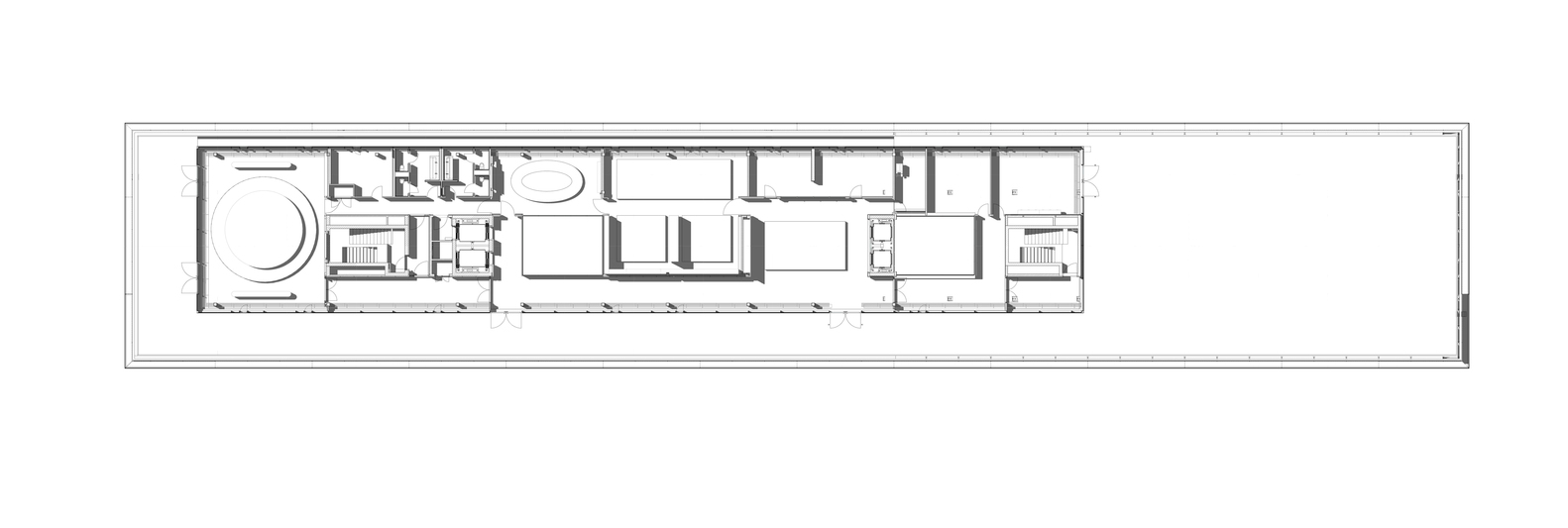
作为全球最大的国际化家居及商用地面材料供应商,MHK集团年营业额达到60亿欧元,和很多细分领域隐形冠军一样,MHK集团建造这座园区的目的不仅仅是通过可实现的建筑和景观技术展示自身实力和抱负,更想为这座城市与自然之间的割裂提供织补和缝合,并为城市创造一处可完美融合于原有肌理的新地标。MHK集团委托AS+P主持整个园区的景观规划和园区内三座建筑物的建筑、室内一体化设计,让城市通过MHK园区完美过度到自然怀抱中。面向城市的界面,园区以开放欢迎的姿态和独特的结构设计展示MHK新的企业形象:主体建筑—MHK欧洲新总部大楼总长度112米长包括一个32米的悬挑结构的建筑入口,大悬挑结构在保证足量工位和功能空间的前提下减少了建筑的占地面积,释放出更多的地面景观空间,同时展现了公司的雄心壮志。无立柱支撑仅通过2根四层楼高的巨柱支撑的钢桁架体系实现,结构极具挑战性。透过建筑外立面尺寸为8.10x3.20米的双层玻璃幕墙,设计结构从内部可清晰辨认。玻璃幕墙与楼层高度一致,确保了与建筑一致的平和、均匀外观,通过对自然进气口进行预处理,兼具降噪和节能效能。位于悬挑结构下方的水渠将建筑与天光倒影其中,与建筑有机连接起来。悬挑结构下方的镜面材质饰面板倒映在自然水景上,加强了建筑入口的标识感。一层二层通过通透的玻璃门廊,使得建筑内外部无缝融合。
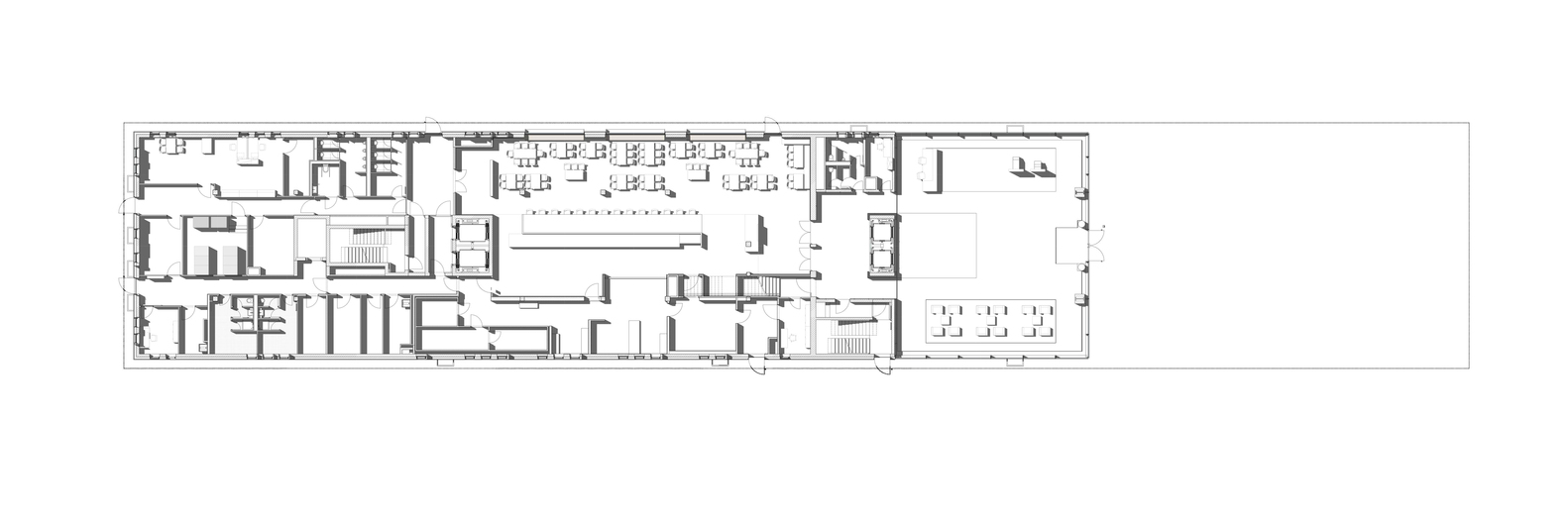
总部建筑的3-6层用于办公,并设有餐厅和会议区等。办公层空间通过1.35米的模数网格进行功能划分,高度灵活的空间可按需配置。 每个办公室都设有可开启式窗户以及内、外遮阳设备 ,建筑通过冷却翼板以及安装在楼板中的自然通风系统来调节温度。建筑的北部和南部各有一个阳光中庭,自然光源可以直接进入办公区域,也可以为员工交流创造宜人的氛围和场所。园区的水渠将引导访客到达水渠尽头的论坛中心。论坛中心配备最新的会议和多媒体支持设备,可以举办各种文化、学术、庆典活动。除了三座建筑外,整个园区被千种植物覆盖,其中光杜鹃花品种就超过600种,杜鹃花岛点缀于开阔的草坪区,既是步行节点供人驻足观赏、交谈、休憩,又达成了园区内“一步一换景”的效果。考虑到杜鹃花喜阴的特性,配备了不同季节呈现不同花色的高大树木,兼顾功能性和观赏性。MHK集团欧洲总部园区和总部大楼从规划、建筑、景观、室内等全专业一体化对标德国
绿色建筑
(可持续建筑委员会)DGNB铂金认证的最高标准,结合海绵城市的雨水回收再利用系统、屋顶太阳能光电板、生物颗粒燃料等技术,将一座企业的经济实力和社会责任通过建筑这个载体完美传达,也为所在的这座城市提供了一处赏心悦目的绿洲。
德国 MHK 新总部大楼外部实景图
德国 MHK 新总部大楼内部实景图
德国 MHK 新总部大楼平面图
德国 MHK 新总部大楼剖面图
客服
消息
收藏
下载
最近



























