查看完整案例


收藏

下载
/ 极 度
现代简约就是把环境带进生活
把生活带进设计
Modern simplicity is to bring environment into life
life into design
【项目信息】
项目名称 / 万科大家
设计风格 / 现代轻奢
全案设计 / 星杰国际设计
设计师 / 朱墨
居住情况 / 五口之家
主色调 / 黑、白、橡木色
主要材料 / 石材、实木地板、硅藻页岩
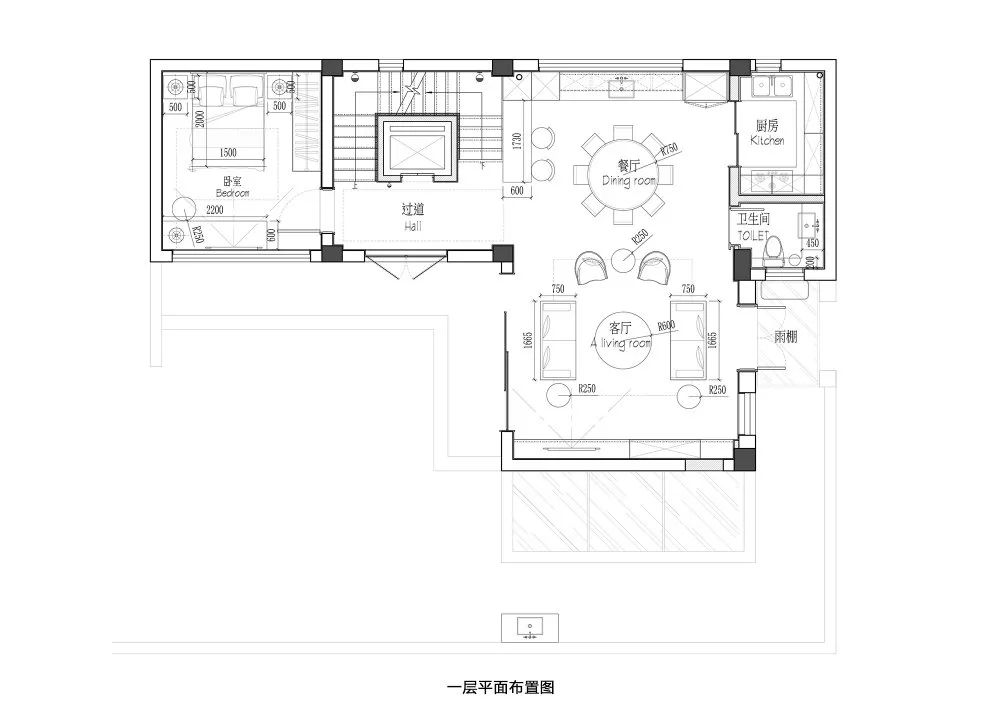
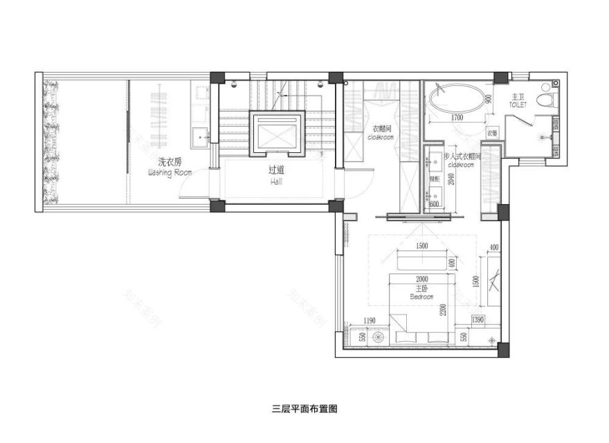
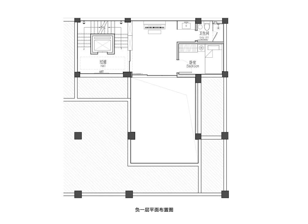
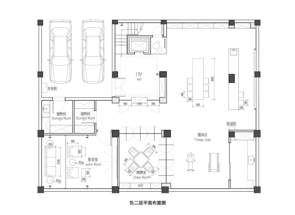
// Design layout 设计布局
// Design scheme 设计方案
& & 客厅 Living Room
几乎只有黑与白的空间,却丝毫不会让人感觉到单调。以前瞻性的设计笔触,给予前瞻性的生活品位,在平淡和谐中凸显强烈的感触,利用简洁的线条和软硬有别的材质,配合不落俗套的摆件和家具,把酷气和帅气全面呈现,带给人耳目一新的感觉。
引进内院中大自然的阳光、空气和树木,把满腔闲情溶化于浓淡有致的碧青和原木中,让人在紧迫的城市生活节奏下享受那难得的一刻闲暇。
已经被赞过无数遍的万科大家户型,给了设计师尽情发挥的空间。对称式的家居摆放,让明亮的客厅显得饱满圆润,圆形的石材茶几,压得住空间的气势。
& & 餐厅 Restaurant
餐厅水吧区的窗利用黄铜作边框处理,形成了一幅天然的画框,将窗外一年四季的美景都裱框在视线中。
圆形的餐桌满足五口人的日常就餐,可方便增减席位,也是便于家中亲戚朋友的拜访。餐桌上方的叶形灯具是客厅中的唯一的悬挂式灯,视线触及的其余灯具,均用筒灯和线灯做点缀,尺寸拿捏得刚刚好。
& & 主卧 Master bedroom
一尘不染、素净澄明。设计师用平静的心灵看世界,利用淡淡的家具布局把原有的空间净化,把屋主的气质和品位含蓄地表现出来。
& & 父母房 Parent's room
窗明几净,雅致清新,60后的父母对新中式都有一种情怀。设计父母房时,设计师朱墨在确保现代风格不会显得突兀的情况下,增加了些许新中式的元素,床头的台灯和背景壁纸的选择,还有窗前的桌凳,都是现代新中式的代表。
& & 地下室 Basement
地下室玄关的两道条纹瓦楞玻璃移门,可以让你在地下室各个空间自由穿行。在外奔波一天的业主,回到家中需要的是种放松、休闲的感觉。通过室内和室外的关系,将这种放松、休闲的心情和感觉带进室内当中,这才是设计的初衷。
地下室随处可见的无边框画,无拘、无束、无框的表现形式受到越来越多的人们的喜爱,也是现代装饰风格中的潮流表现元素。
地下二层共用了一处天井,为了让光照友好的出现在地下室的每一层,设计师利用多扇可360°旋转的玻璃门,最大限度地增加了空间的灵活与流通性。
跳出思维框框,跃进广阔的视觉空间。以简约笔触演绎现代豪宅的气派与和谐,为偌大的空间带来家的感觉,令人开怀。
// Designer profile 设计师简介
朱墨
从事设计工作13年
星杰国际设计 总监设计师
· 擅长风格
现代简约、欧式、北欧、美式、简美、中式、新中式、混搭、法式、简欧
· 设计理念
好的设计是人与空间的契合。
· 所获荣誉
2010年 苏州市样板房装饰优质工程奖
2012年 荣获中国陈设艺术大赛优秀奖
2013年 荣获软装设计三等奖
2014年 荣获筑巢优秀奖 山东翔宇豪生大酒店
2015年 国际空间设计大奖 艾特奖
2016年 第七届中国国际空间环境艺术设计大赛 筑巢奖
· 代表作品
万科大家、雅戈尔璞墅、禧悦、仁恒观棠、海和院、白塘壹号、湖滨四季、铜雀台、国宾一号、金科王府、置地美庐、太湖高尔夫山庄、绿城御园、中南世纪城、棠樾、时代御湖、悦山墅、中海独墅岛、招商小石城……
客服
消息
收藏
下载
最近



















