查看完整案例


收藏

下载
+1
喜欢是一种感觉,写在孟冬晚风里
红蓝是一种色彩,柔在花信年华里
分享是一种喜悦,甜在时间记忆里
而你是有关圆满的幸福+1
设计公司 / 喜屋设计
设计时间 / 2019 夏
项目地址面积 / 眉山公园一号 115㎡
设计 / 刘晶晶 刘佳丹
摄影 / 筑像摄影
文案 / Adam
高迪曾说“曲线属于上帝”
是的,我们打破墙体和功能的固定界限,将空间本身变得流动且粘稠,具化为层层水漾,呈现视觉流动感。
仪式感,就是使其某一天与其他日子不同,使某一时刻与其他时刻不同
宽敞的门厅满足充分的储物功能需求后,不必再添置其他,只需等待着每一个归家之人便好。
灰蓝与深蓝是自由梦幻与高雅沉稳的相遇,零星的几抹红,是来自海洋的星。
变换位置后的客厅,拥有更为开阔的视野和采光通风,通过颜色的分割创造出充满对比的空间,产生个性化的色彩环境,表达独特的空间情感
尽管很多时候大家都会忽视,但是地毯的选择绝对至关重要—— —块状图案的拼色地毯像是被风吹皱的海面,麦凡家的沙发与高低茶几的搭配恰到好处。
凭借Maximalism(极繁主义)的回归,我们希望暂时忘记“少即是多”,并拥抱“越来越多”。用多一分的蓝,多一分的红,多一分的灰,多一分的白,多一分的黑,多一分的情来创造这个永远+1的暖居。
现场制作的橱柜,与后期厂家定做的柜门、石材台面、五金件一同构成合理又方便使用的厨房。只要每个环节默契配合,齐心协力都能做好每一个工艺。
2020年的年度流行色是蓝色,它可以抚平来自工作生活感情中产生的焦虑,满足人们对“可靠、稳定的渴望”,平和治愈着那颗捎带浮躁的心。
蓝色也更加适合每一个人。
全屋所有储物柜均选用兔宝宝免漆板工人根据设计图纸现场制作,柜门选用进口艾格板材,保证环保、工艺、功能、实用上的高标准。
小面积地使用一块暗粉色,是对女孩的承诺。
3公分石膏板的吊顶方式,我们叫它“单眼皮”。
也不落下风,也能为空间增添许多浅淡而不浓烈的美好,像润物细无声一样。
我们想在卫生间这个小小的空间里,也可以融入极繁主义的精髓:图案的跳跃、颜色的对撞、巧妙的拼接、重复的元素,来共同构成这个和谐甜美的卫浴角落 。
生活的意义在于生活本身
我们祝愿每一个热爱生活的你
万事顺遂,好运+1
原始平面图 / Original plan
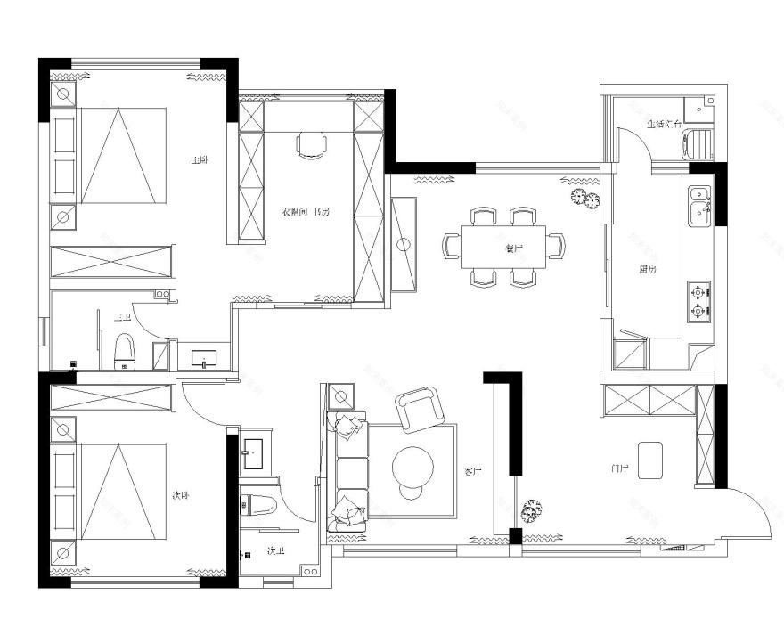
平面布置图 / Layout plan
客服
消息
收藏
下载
最近





















