查看完整案例


收藏

下载
T H R E E & T E N D E S I G N
空间设计 | 叁拾创设
地址 | 金环交通
设计风格 | 简约的现代风
本案以简约的现代风为本案的设计风格
这一风格很好的使整个空间在兼具沉敛深厚的同时还为空间增加了一种独特的文化品位
从整个空间的搭配来说简约风和现代设计“自由搭配”引导了一种与众不同的审美思想
CONTENTS
平面图纸 ··· ··· ··· ··· ··· 01
草图预览 ··· ··· ··· ··· ··· 02
素雅与自然 ··· ··· ··· ··· ··· 03
////////////////////////////////
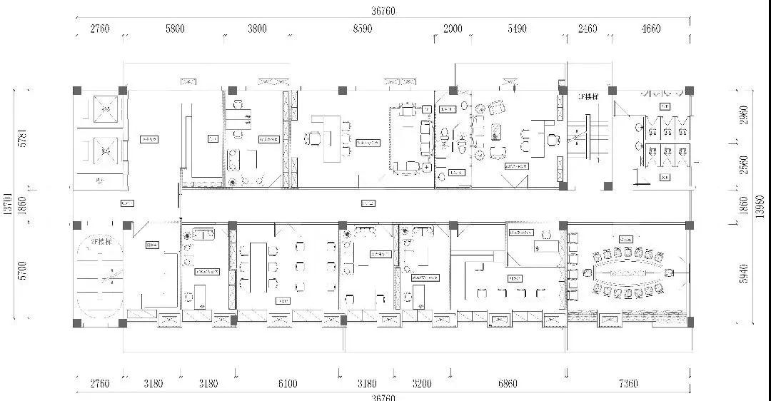
ART | 平面图纸
简介
在整个平面布局方面,我们利用,组合家具的运用,打掉部分非承重墙用柜子作隔断。往门边、拐角等地方设置储物间或储物柜。充分利用整个场地的空间采取开放或半开放式设计。空间的弹性利用可以改变空间的大小、尺度,也可以形成新的空间效果。造成一种新的空间气氛,以至影响人对空间的心理感受,最大的特点就是多功能。
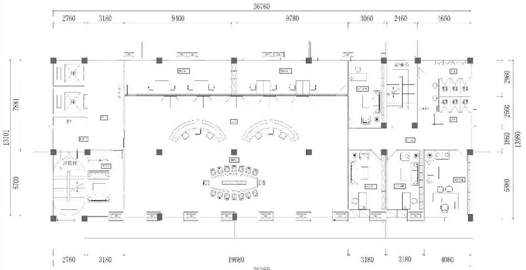
ART | 草图预览
在办公楼空间中,我们通过每个室内功能的不同利用灯光的变幻效果,来给整个办公楼的每个区域形成鲜明的区分。
THREE&TEN DESIGN
金环交通 办公楼
客服
消息
收藏
下载
最近
















