查看完整案例


收藏

下载
Beijing happy twist head office
位置: 北京
分类:办公建筑
内容:实景照片
图片来源:ikuku华人建筑
图片:20张
本案例为一项老建筑改造类项目。设计过程中包含了对老建筑、历史的思考、新旧建筑协调性的考量以及对主题性多义室内空间的探索。使用建设方是以“开心麻花文化发展公司”为主体的“西城原创音乐剧基地”。项目位于北京市西城区新华1949文化设计创意园区5号库、6号库老厂房内。园区前身为1949年成立的北京新华印刷厂,历史上承担着重要的国家重点图书和文件的印制工作,至今已有六十多年历史。
使用方希望充分利用两栋厂房,通过合理设计,规划出满足70人左右的办公空间+350人左右的小剧场+售票、等候以及新剧发布、聚会等活动的公共共享空间。不同功能空间要整体、连贯,便于使用。建于40年代的5、6号库厂房,主体为砖混结构,钢木结合形式的构造梁架,建筑尖顶处高约10米,外观为红砖墙面,高大、素朴。巨大的钢木结合梁架,结构精巧,造型精美。现在看来仍具有高超的建筑结构工艺水平。经过岁月洗礼的木梁屋顶散发着静谧的艺术气息和斑斓的色彩。
首创于2003年的“开心麻花”舞台话剧,代表了主流观众年轻、时尚、潮流前沿的娱乐精神和生活态度。作为设计师隐约感觉到这种独有空间和使用者的相互交融,将会是一场生动、鲜活的碰撞,是一场注定会有惊喜的相逢。“保留精美绝伦的钢木梁架,保留素美、磅礴的建筑外观”;“创造层次丰富的自然建筑、室内空间”;“用原生态的手法和材料还原娱乐精神和生活态度”。强烈的建筑历史存在感,促使我们准确而迅速的形成了设计思路。南侧厂房作为办公场所,北侧厂房设置为剧场,两栋厂房中间加建一处新建筑作为共享支持空间。
位于两栋旧厂房中间的新建筑,采用同厂房相同的尖顶造型,最高处高度一致。通过钢锈板材质的带状造型将两栋旧建筑连接起来,优雅对称而个性鲜明。作为整体建筑组合的核心,通过一处连桥穿过水面可进入室内,有一种静谧的仪式感。新建筑内部为一洁白的二层空间,分别连接办公室和剧场。可作为售票、等候、新剧发布和聚会等活动,独立而整体。
南侧厂房的办公空间内,延续钢木结合梁架的形式和色彩搭建了二层空间,穿过斑驳红砖墙后的楼梯可上至二层。新开放的天窗引入了久违的阳光,阳光下入口前厅处种植了一棵巨大榕树,树荫下为三处纸板材料构筑的半开放洽谈空间,使用时可将半圆纸板滑动围合,保证一定的私密性。这种自然、延续、立体的空间处理手法使整个办公空间个性鲜明、舒适自然。借助北侧厂房的空间尺度,轻松的设置了一处350人左右的小剧场,马道、排练厅、监控室、化妆间一应俱全。
北京开心麻花办公总部外部实景图
北京开心麻花办公总部外部夜景实景图
北京开心麻花办公总部内部实景图
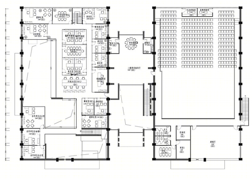
北京开心麻花办公总部平面图
客服
消息
收藏
下载
最近






















