查看完整案例


收藏

下载
英文名称:France LA LICORNE Office building
位置:法国
设计公司:PERIPHERIQUES Marin+Trottin Architectes
建筑位于Laval城,一个紧凑的场地中,它闪耀的建筑外貌设计令其成为该社区的地标性建筑。建筑拥有商务酒店的外貌,散发着迎宾般的热情。其工作空间如同一系列酒店套房和客房般,环绕中庭而设,并彼此串联。这种纵向的建筑构造和连续的房间分布,让内部空间形成自由的组合串联形式。基于项目的种种要求,设计师决定将建筑打造成采光良好,有利于通风的办公会客场所。按照项目要求,建筑平面被定义为一个个30到50平方米的工作空间。然而建筑结构1.35米的格局促使其他形式的内部分区成为可能。立面遵循采光最大化的设计原则。建筑入口隐蔽在遮阳板之下,无数光线透过立面的倒影在地面形成悦动的光影,建筑立面活泼而有趣。建筑在不同的天空映射下展现多样风采。
法国LA LICORNE办公楼外部实景图
法国LA LICORNE办公楼外部夜景实景图
法国LA LICORNE办公楼局部实景图
法国LA LICORNE办公楼内部实景图
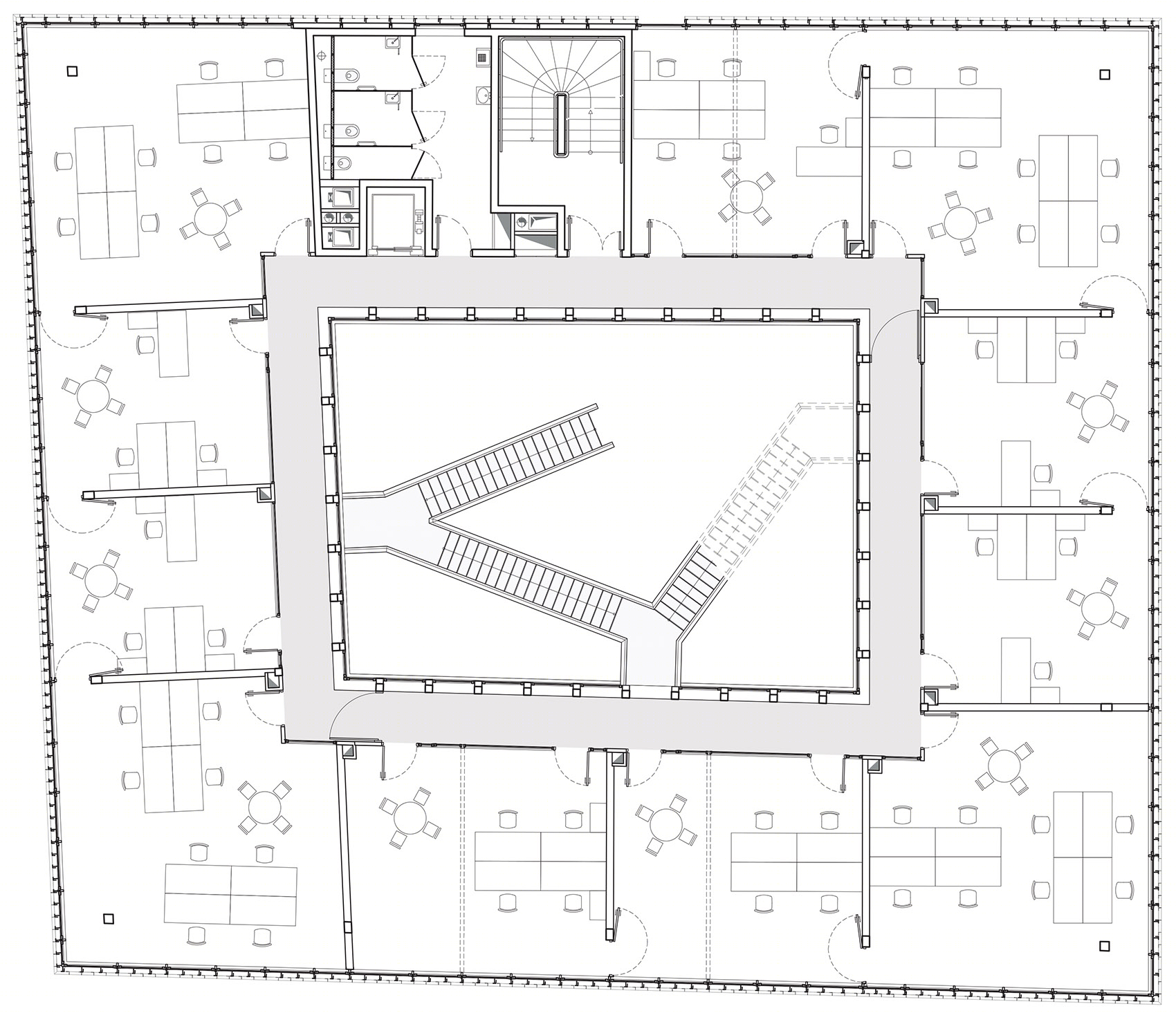
法国LA LICORNE办公楼平面图
法国LA LICORNE办公楼立面图
法国LA LICORNE办公楼剖面图
客服
消息
收藏
下载
最近
































