查看完整案例


收藏

下载
Great Harmony Xinhua Bookstore and China Mobile office
位置:山西 大同
分类:办公建筑
内容:
设计方案
图片来源:郁枫
图片:7张
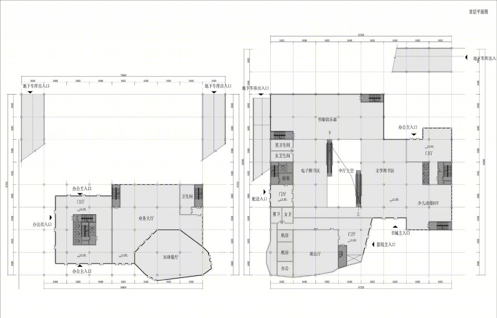
该项目为大同市新华书店、中国移动分公司办公楼。在政府组织的设计招标中,两座建筑作为一个标段进行方案招标。本方案在各家投标方案中获得第一名,但因为其他原因方案未实施。除了业主的任务书,规划局通过城市设计控制了建筑的基本体量与高度。按照已有的城市设计要求,两座建筑毗邻规划在一个街区内。本建筑方案遵循新区城市设计,从群体建筑体块组合、形态出发,研究项目在整个新区城市设计中的位置,以及建筑独有的个性、特色。考虑到新华书店和移动大楼位于兴云街的中部,高度上处于整条街道中的低谷。设计从街道设计的角度分析,通过大体块的切削、组合的一种大虚大实的形态更加呼应“雕塑之都”大同的城市气质。
北魏文化中的雕塑艺术,堪称人类的瑰宝,其中最具代表性的为著名的云冈石窟。在本方案中,我们努力体现大同作为雕塑之都的城市气魄,展现出大同的雄浑大气、刚劲有力的城市精神。本方案设计了雕塑感强烈的建筑立面,既隐喻了大同的石窟、又隐喻了传统的篆刻文化。本方案中,移动大楼的3G体验厅与新华书店的电影厅均以独特的造型、特殊的材质与主要建筑体量形成了鲜明的对比,其理念源自于“石窟中的大佛”、“展龛中的煤雕”。每当夜幕降临,这些“大同瑰宝”透射出朦胧的色彩,展现出引人入胜的魅力,也将成为城市的活力之源。
大同新华书店与中国移动办公楼效果图
大同新华书店与中国移动办公楼模型图
大同新华书店与中国移动办公楼平面图
客服
消息
收藏
下载
最近















