查看完整案例


收藏

下载
英文名称:England Alphabeta Office building
位置:英国
设计公司:Studio RHE
这是由 Studio RHE 设计的 Alphabeta 办公楼,位于英国伦敦。该项目旨在通过标识性的设计与办公文化的营造,创建一个现代化、多元而与众不同的办公空间。该设计通过在 750 平方米的中庭共享休闲设施与屋顶平台之外空间提供宽敞的与社交空间,从而探讨典型办公空间边界的模糊性。该中庭被设计为一个极其积极的空间,而不仅仅是一个入口流线空间或等候空间。为此,首层设置了一系列的干预设计,以鼓励各种各样的活动和功能。包括了 5 米长的厨房台、平行式的阅览区、合适的咖啡厅与糕点区、会议桌以及软家具。译者:筑龙网 艾比
The ambition was to create a modern and vibrant office space that would stand apart from its competitors by offering a compelling signature design and embracing recent changes in work culture.
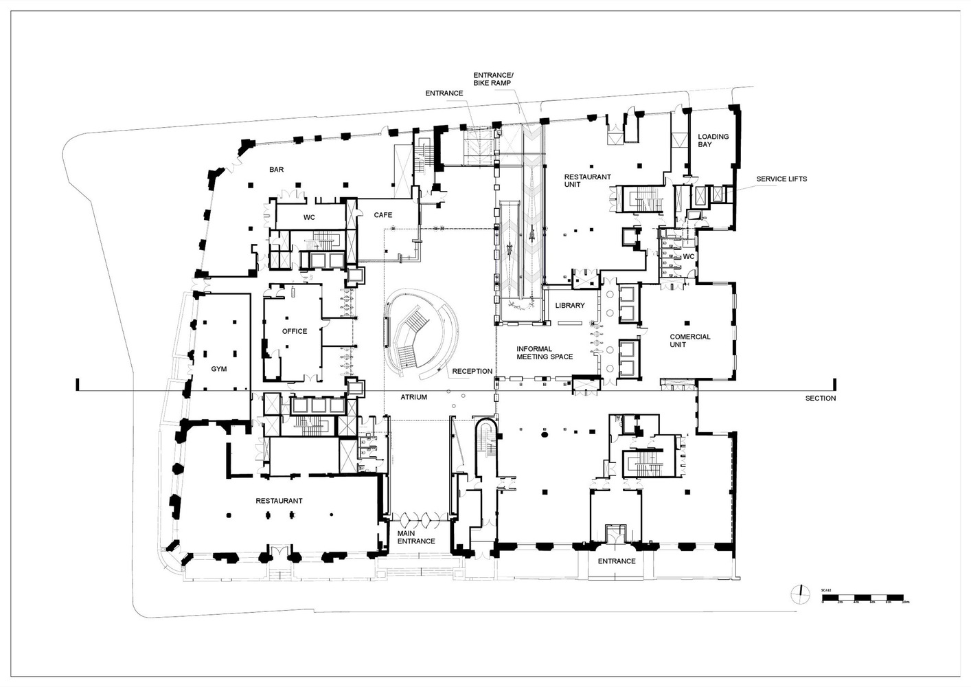
The design explores the blurring of the boundaries of what constitutes typical office space by offering extensive work and social space outside tenancies in the form of the 750sqm atrium, shared leisure facilities and roof terraces. The atrium is envisioned to be a fully active space not merely an entrance route or waiting room. To ensure this a series of interventions at ground level have been installed to encourage a range of activities and uses. These include a 5m long kitchen table, a panelled library area, a fitted cafe and patisserie, meeting tables and soft furnishing.
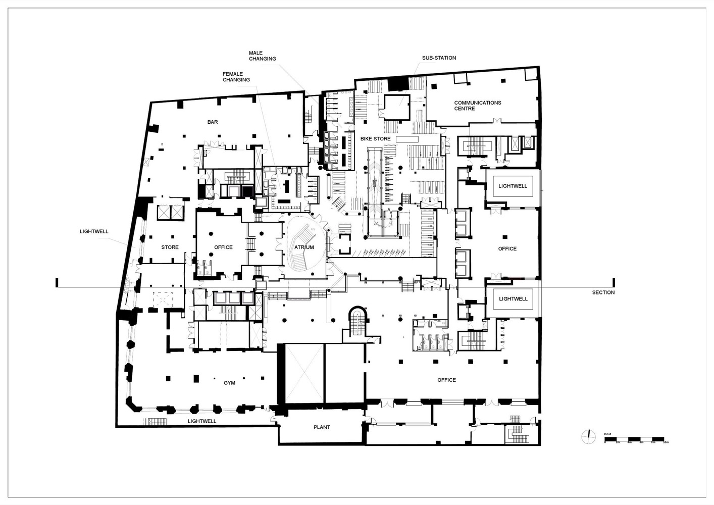
Cycling is seen as key part of modern urban living and encouraged through the creation of a large cycle store at lower ground level offering spaces for 250 bikes and adjacent changing rooms and lockers. Access to the cycle store is direct from street level via a new ramp that descends to the lower level. Glazed openings separate the ramp from the atrium allowing views of passing cyclists descending through the building that further animate the space.
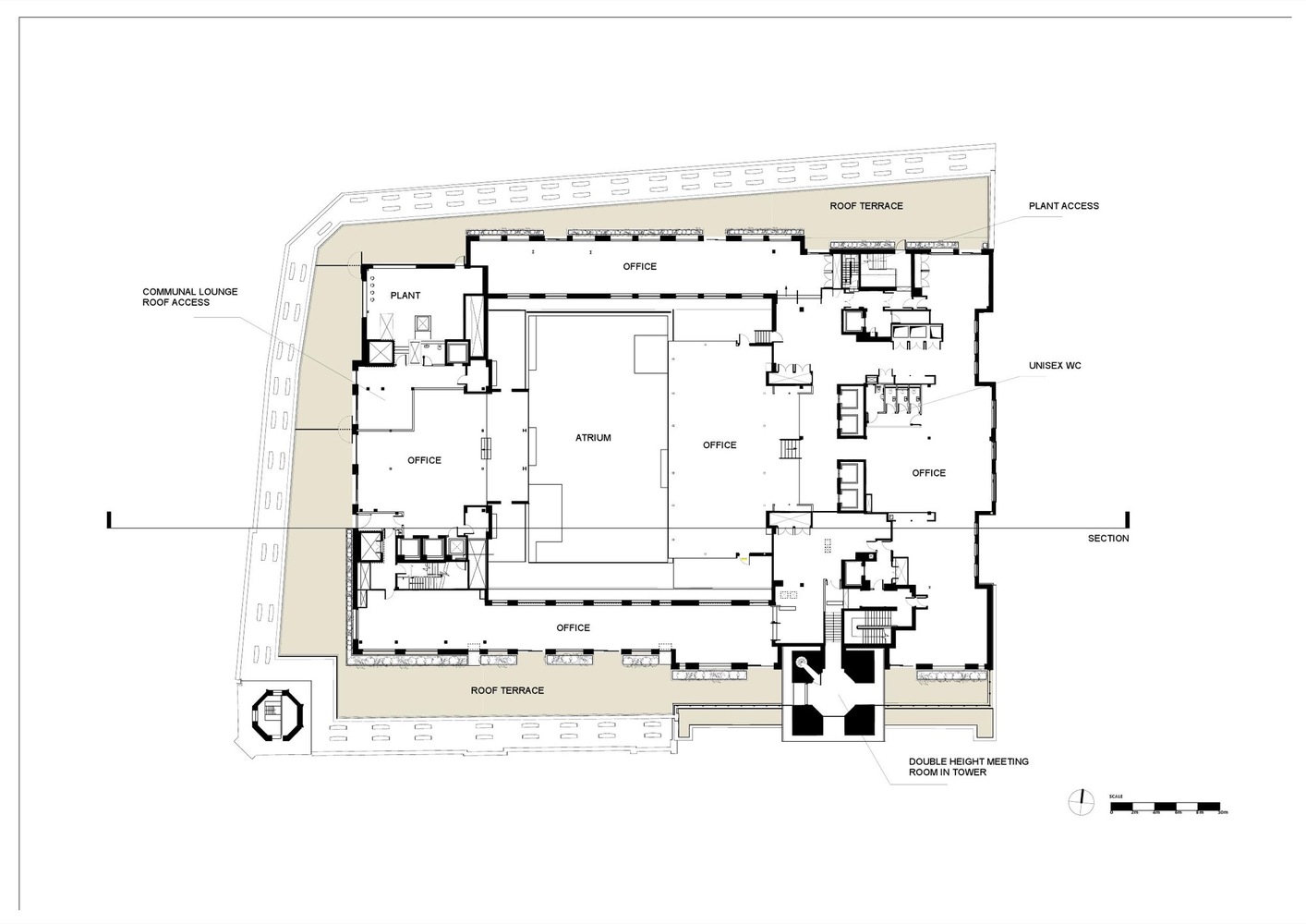
The design re-modelled the existing roof scape which clashed with the historic roof elements. In their place a new level of office space and roof terraces has been created. Materials have been selected to compliment the existing and large glazed openings created to frame the views over the city.
The design embraces the complexities and eccentricities inherent in the existing building rather then trying to overcome them. Exposed masonry, varying ceiling levels and level changes in floors are celebrated rather then hidden with finishes. Existing features that were previously inaccessible such as the buildings two towers have been opened up to create idiosyncratic meeting spaces.
Product Description.The polished concrete effect atrium floor finish is Solacir by Grace and was installed by Floored Genius Ltd. The this resin finish provided the look we were after whilst also working well over the a varying depth of screed due to the uneven historical floor slabs
英国 Alphabeta 办公楼外部实景图
英国 Alphabeta 办公楼外部夜景实景图
英国 Alphabeta 办公楼内部实景图
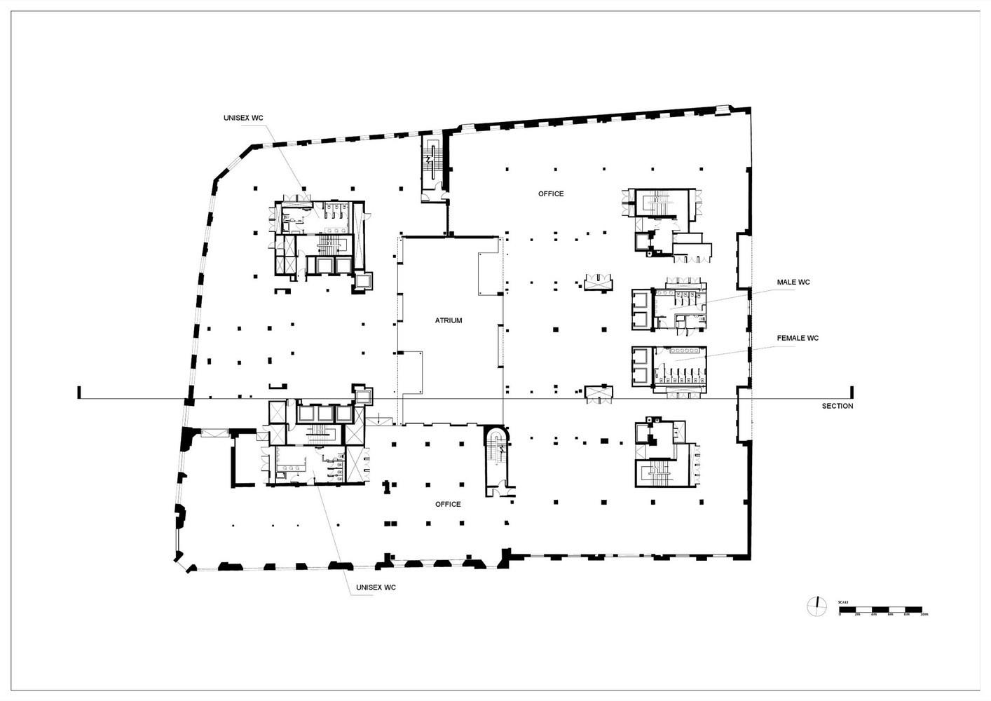
英国 Alphabeta 办公楼平面图
英国 Alphabeta 办公楼示意图
英国 Alphabeta 办公楼跑面图
客服
消息
收藏
下载
最近









































