查看完整案例


收藏

下载
Swiss BLKB bank rebuilding project
设计方:Nissen & Wentzlaff Architeknte
位置:瑞士
分类:办公建筑
内容:实景照片
委托人:Basellandschaftliche Kantonalbank Arlesheim
图片:26张
摄影师:Ruedi Walti
这是由Nissen & Wentzlaff Architekten设计的BLKB银行翻新与扩建项目,位于巴塞尔乡村州Arlesheim的历史核心区。两层高的通道创建了宽敞的银行入口空间,光线充足。新建筑故意略微向外旋转,有助开放银行入口,突出其在前面十字路口的枢纽作用。沿主街的建筑立面被设计成大型幕墙。
译者: 艾比
The property is located in the historical heart of the municipality of Arlesheim, Canton Baselland. The two-storey passageway creates a spacious entrance to the bank and is flooded with light.The new construction was deliberately rotated outward slightly from the building lines of the façade.This helps to open up the bank’s entrance and accentuates the crossing in front of it as a major junction for pedestrians. The façade on the Main Street is designed as a large screen.
瑞士BLKB银行改建项目外部实景图
瑞士BLKB银行改建项目外部局部实景图
瑞士BLKB银行改建项目外部侧面实景图
瑞士BLKB银行改建项目外部夜景实景图
瑞士BLKB银行改建项目内部局部实景图
瑞士BLKB银行改建项目内部实景图
瑞士BLKB银行改建项目外部门口实景图
瑞士BLKB银行改建项目总平面图
瑞士BLKB银行改建项目剖面图
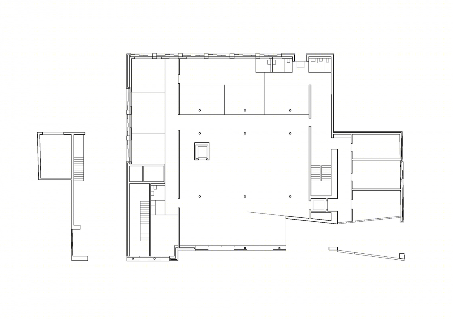
瑞士BLKB银行改建项目平面图
瑞士BLKB银行改建项目分析图
客服
消息
收藏
下载
最近




























