查看完整案例


收藏

下载
Zhengzhou just Amy hotel
设计方:如恩设计工作室
位置:河南 郑州
分类:宾馆酒店建筑
内容:实景照片
设计团队:lyndon neri & rossana hu (principals-in-charge), alex mok (合作人), lina hsieh lee (资深建筑设计师), louise ma
承包人:sundart, shanghai dong yuan construction & renovation co., ltd., cim craftic interior make limited
景观设计单位:广州景观建设有限公司
委托人:中国河南建业
图片:42张
摄影师:pedro pegenaute
这是由如恩设计工作室设计的郑州建业艾美酒店,位于中国郑州。该建筑由一系列堆叠的盒子构成,以彼此错落的方式堆叠组成,切分庞大建筑体量,同时又与周围的建筑产生生动的视觉对比。该项目将是河南省的一个地标式建筑。成为游客和当地居民的一个探索景点。建筑共25层,由5层高的裙楼(公共区域)和提供350间客房的主楼(私人区域)组成。盒子的大小不一,其玻璃幕墙分别采用不同色调的绿色玻璃。由黑色及咖啡色金属饰板构成的盒子侧面,以穿孔的方式构成一种河南本地花卉纹理——月季花。
裙房的灵感来源于附近的历史遗迹——龙门石窟,它将石灰石绝壁的山洞之中开凿出最精美的中国佛教文化雕像。通过在中央中庭周围开凿各种开孔,以加强其雕塑感的表达,从而视觉上联系公共区域的多个楼层。通过顶层的天窗,让自然光束撒入整个空间,在镶嵌着灰色沉积砂岩的墙壁上移动。绿色的有色玻璃窗和序列排布的枝状吊灯悬挂在上方,营造一个丰富多彩的氛围。
译者: 艾比
for the recently completed ‘le meridien’ hotel in zhengzhou, china, neri&hu design and research office have conceived a tower which is composed of stacked frames around its façades. the strategy serves to break down the large scale of the structure, while creating an identity for the building which is envisioned as a landmark for the henan province. conceptually, the building is imagined as an ‘archive’ of new and old artifacts, which become a point of discovery for travelers as well as regional residents. the 25 floor high-rise is comprised of a 5-storey podium at its base containing public functions, and 350 private guestrooms in the levels above.
multiple box volumes in the tower’s composition are cantilevered outward, and treated with different tints of green glazing. these elements are further distinguished by their black and coffee colored metal cladding, which is textured with perforations to create patterns that reference the local henan wild rose.the design of the 5-storey podium is influenced by the regionally historic longmen caves, a prominent example of chinese buddhist art carved into limestone cliffs. a sense of excavation is expressed through various openings surrounding the central atrium, which visually connect the public areas across multiple floors. above, skylights provide shafts of daylight which serve to highlight the sedimentary pattern on the gray sandstone clad walls. green tinted windows and a sequence of chandeliers suspended high in the space help to produce a colorful ambience.
he main idea behind the design of the guestrooms is to express a contrast between light and dark. the living and sleeping areas are defined by their gray walls and a stained timber wainscot, while the bathrooms are entirely finished in white and glass materials.to disrupt the monotony of typical hotel elevator lobbies and room corridors, three-storey atriums are composed throughout the tower, and accommodate art installations.
le meridien zhengzhou includes three restaurants and a rooftop bar, with each receiving a different architectural treatment. the japanese restaurant features walnut boxes hung from the ceiling at different heights, creating a dynamic form above the dining area. a chinese restaurant contains private eating rooms, distinguished as black mesh volumes. below, an all day dining restaurant is lit by illuminated volumes which protrude from the ceiling.
郑州建业艾美酒店外观图
郑州建业艾美酒店外部图
郑州建业艾美酒店内部局部图
郑州建业艾美酒店
郑州建业艾美酒店南向立面
郑州建业艾美酒店西北部海拔图
郑州建业艾美酒店西向立面
郑州建业艾美酒店西北部海拔
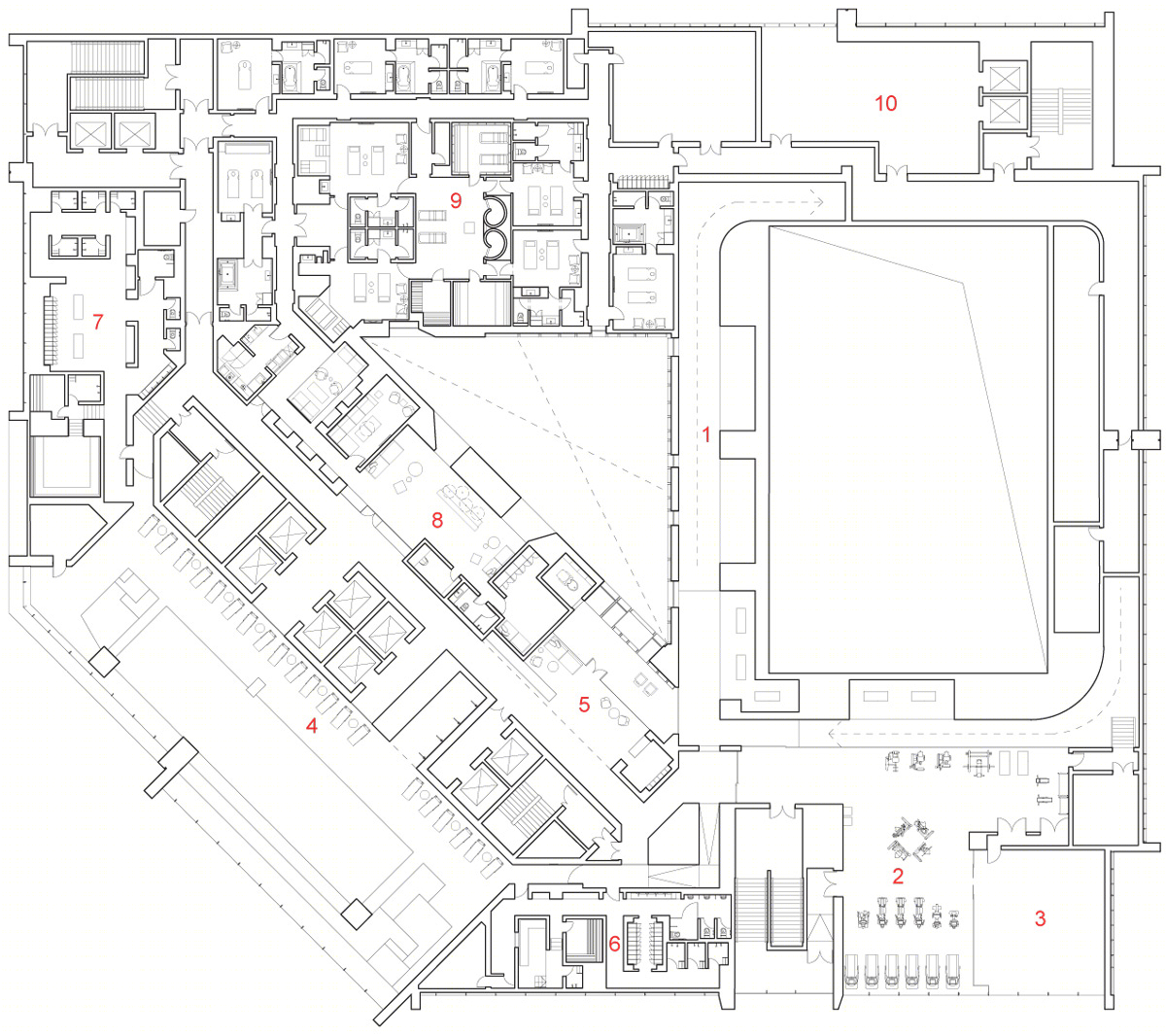
郑州建业艾美酒店平面图
郑州建业艾美酒店截面图
客服
消息
收藏
下载
最近












































