查看完整案例


收藏

下载
家,就是经历世间艰难之后让心灵停靠的港湾。在人生的海洋中打拼疲惫之后,回到属于自己的这个家。这个小港,风平浪静,没有灯红酒绿的浮躁,没有莺歌燕舞的妖娆,只有温情,只有安宁。
项目名称:望府
项目地址:绍兴丨柯桥望府中和园
项目性质:整体软配设计
项目面积:515 平方
项目风格:摩登美式
软装设计:JULIE 软装设计
项目主材:JULIE 品牌家具,灯具,墙纸,窗帘,后期配饰
设计师说:一边是较为传统的硬装基础,一边是喜欢时尚的业主,如何用软装设计来平衡两者之间的差异,要与硬装相协调,又要弥补硬装缺少的时尚和温馨感。
一层软装平面布置图
一层软装设计方案丨客厅部分
软装设计方案与实景的完美落地实现,在本案中体现的淋漓尽致。
软装上我们采用沉稳的棕色系与黑色系家具来稳住整体。
皮质家具沙发稳重大气,加以不同饱和度的黄色系配饰点缀,沉重中不失小温馨,同时又点亮了客厅气氛。地毯流动性的花纹样式让整体空间多些层次感。
一层软装设计方案丨玄关过道部分
利用丰富的色彩软装搭配与原本冰冷的硬装结合,将奢华时尚的艺术风采呈现出来。打造出一个华而不俗的温馨居所。
一层软装设计方案丨餐厅部分
整体空间的用色以柔和的暖色系为主,硬装大理石与深色木作餐边柜结合,线条丰富稳重,搭配暖色系餐椅点缀,营造出优雅浪漫的生活气息。
软装搭配中以稳重安静为考虑因素,在整体设计中以让人沉静的蓝色为点缀色,与整体硬装相结合。简约大气的床背造型搭配弧型床头柜,金箔贴面的柜面效果,使得空间效果上多了一些奢华品味。
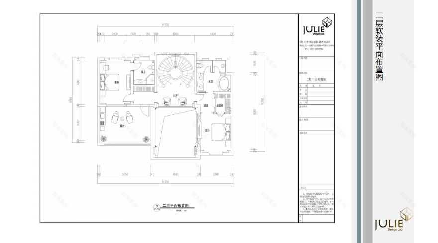
二层软装平面布置图
二层软装设计方案丨主卧部分
主卧中,深色沉稳木作背景框造型搭配金箔色彩的木质软包家具,打造出优雅而舒适的居住环境。
二层软装设计方案丨次卧部分
去繁杂的喧闹,回归于恬静与纯粹。淡淡的蓝色系与白色系交织的居室设计,整体不失清新自然的活力。
二层软装设计方案丨过道及三楼玄关部分
扶靠着楼梯向下俯瞰,客厅的一切尽在眼底。楼梯过道处也搭配整体空间色彩感觉,用暖色系来充斥每个角落。
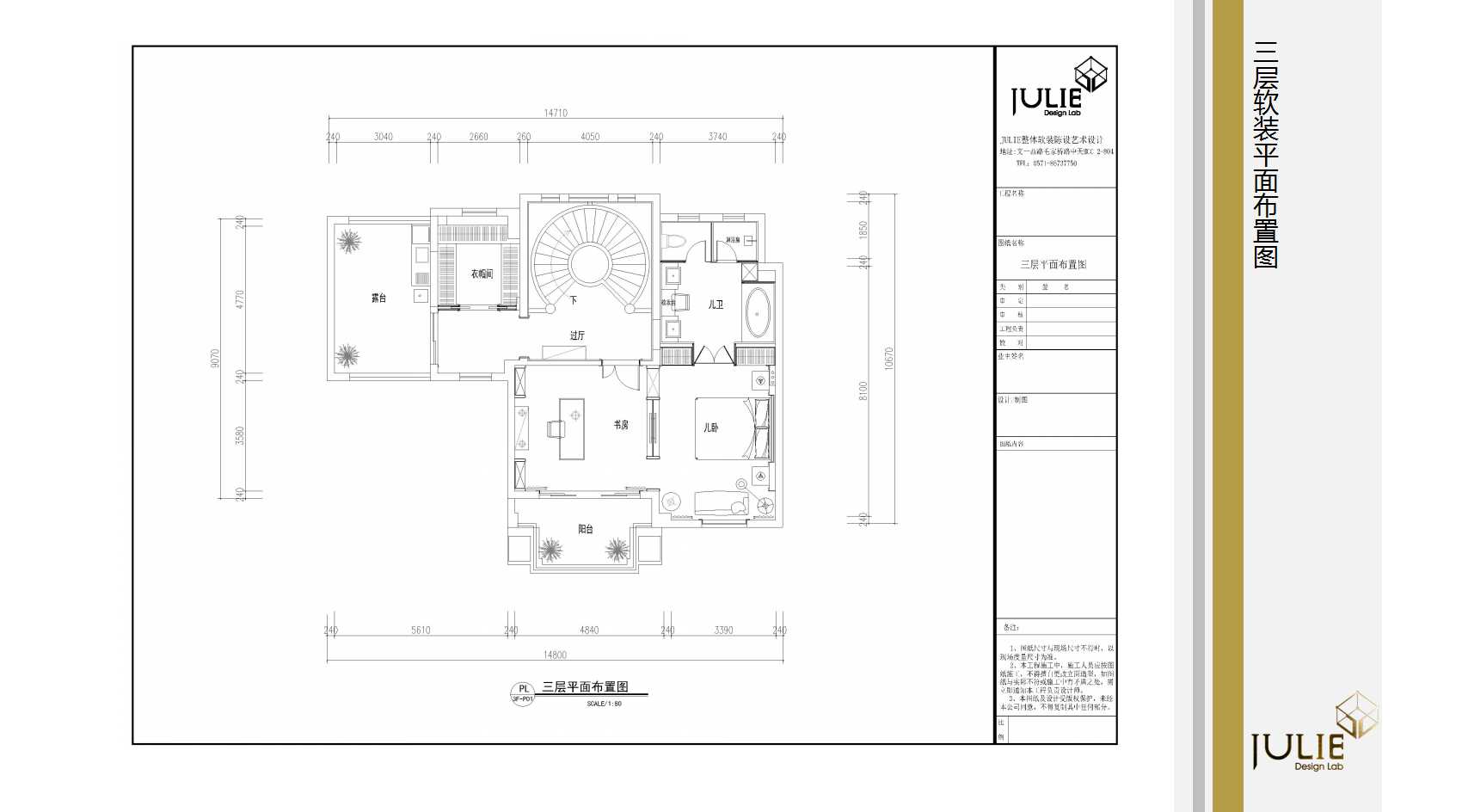
三层软装平面布置图
三层软装设计方案丨儿卧部分
灰色是沉稳考究的态度,也是高雅柔和的意向。色泽亮丽的橙色皮质床背景靠包造型,作为暖色系中最温暖的颜色,使得整体空间氛围活力满满,不失情调。金属质感的壁灯,吊灯款式简约大气,亮光打造的黑色床头柜,款式实用大气,条纹黑白地毯更为空间多些流动韵味。
金箔做旧的造型角几,搭配艺术石膏人头像,更是凸显出居住者一颗热爱艺术的诚挚之心。
三层软装设计方案丨儿卫部分
浴室中采用爵士白大理石,整体感觉开阔大气。
三层软装设计方案丨书房部分
儿卧套房整体色系统一灰色系,又与整体氛围相结合。黑白条纹地毯为整个空间增添了灵动的色彩层次感。
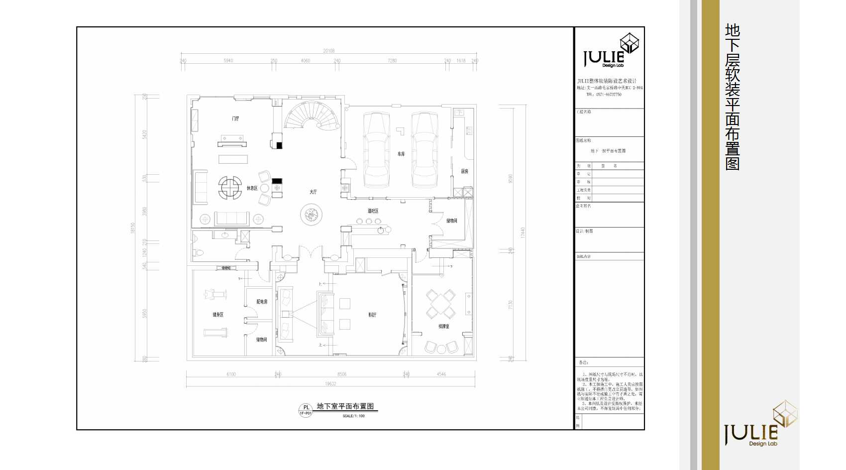
地下一层软装平面布置图
地下一层软装设计方案丨休息区部分
整体白色护墙板造型清爽明亮,玻璃与金属结合的多功能茶几造型,使得空间看上去大气有层次,独特音律造型的装饰墙面挂件与色彩丰富饱满的装饰墙面挂画更为空间墙面增加多变性。
独特优美的家具造型与精巧的软装搭配,专属品牌定制让精致的生活态度以最美的姿态展现出来。
地下一层软装设计方案丨部分
金属质感与木质框架结合的端景台,精细美观。搭配装饰挂画与小配件的结合,共同营造出一个靓丽雅致的视觉端景。
结合硬装基础,融入高品质的定制家具,从小细节,小端景中品味奢华格调。
楼梯为圆弧式楼梯,呈弧线形从三楼延伸到地下室。大理石阶梯与木质扶手搭配金属质地造型独特的栏杆。
在空旷的空间中显现出美观大气的气质。搭配水滴状的长形吊顶,让层次感发挥的淋淋尽致。
【JULIE 整体软装设计】公司地址:杭州市西湖区中天 MCC2 幢—804
客服
消息
收藏
下载
最近





































































