查看完整案例


收藏

下载
Fear of what the distance involved.
Go one step further step in the landscape,
the further step of joy. Happiness,on the road.
怕什么路途遥远。
走一步有一步的风景,进一步有进一步的欣喜。
幸福,在路上。
项 目 地 址丨金 隅 学 府
项 目 面 积 丨1 4 9 ㎡
项 目 风 格 丨个 性 美 式
项 目 性 质 丨开 发 商 精 装 整 体 软 配 设 计
项 目 设 计丨JULIE 软 装 设 计
项 目 摄 影丨林 峰
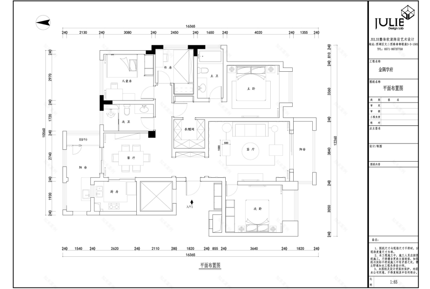
— 软装平面布置图 —
该户型建筑面积149平,由于是开发商精装房,布局结构基本没有改变。由于精装房的柜子并没有很全面,所以在硬装完善环节,增加了次卧、儿童房与书房的柜体。为了能够更加美观,将客餐厅、书房的壁纸以及主卧和客厅的硬包进行了更换,来弥补一些精装房的不足。
— 玄关 —
一进门,白色的整体木作玄关柜,简洁又实用。冷色调灰色大理石地面,搭配暖色调黏土色壁纸,完美中和了空间的色调。
— 客厅 —
客厅整个空间的颜色是暖黄色与深蓝的撞色搭配,代替了原本土气的米黄色花型壁纸,暖黄色壁纸让空间更加温馨。
大面积深灰色大理石地面太过生硬,添入暖色调地毯,缓解大理石地面的冰冷。蓝色系家具点缀,让空间更加有层次感。在家具的选择上,相比华丽的外观,业主更加注重舒适性。希望在结束一天的工作之后能够慵懒的躺在沙发上看着电视,因此在选购的时候选择了功能性沙发。
— 餐厅 —
客餐厅相同色系,让空间更加统一。爵士白大理石餐桌简洁时尚,搭配暖黄色美式餐椅,温馨而不突兀。个性美式餐边柜,兼具了美观与实用。黄色系挂画与蓝色花瓶,以及其余配饰让空间更加的丰满。
— 次卧 —
相对于客餐厅的蓝黄搭配,客卧选择了更加青春活泼的明黄色。暖灰色美式铆钉床,与亚克力现代床头柜的结合,时尚个性。同色系配饰,让空间更加完整。
— 儿童房 — 相对于其他空间,儿童房更加的童趣,同时色彩也更加丰富。蓝白美式儿童床,兼具储物与美观,搭配蓝色系个性床品,以及那么多的恐龙玩具,简直就是男孩子的天堂。
— 书房 —
书房原本的空间就比较小,但是考虑到偶尔会有人过来住,所以要做一个书房与卧室兼具的空间。做榻榻米房的话,空间不是很允许,因此做翻板床是最理想的做法,同时上方还能做为书柜,完美的利用一切空间。色系也是沿用了客餐厅的色系,形成呼应。
客服
消息
收藏
下载
最近

































