查看完整案例


收藏

下载
硬装设计:朵墨设计
软装设计:朵墨设计
文字/手绘:老 程
摄 影:刘 伟
地 点:重 庆
设计时间:2015 年初
【Chapter1】
2014 年年底,我坐在壁炉旁烤火,不时翻转着手心手背,冬天的火真是温暖啊,仿佛凝固的血液一下流动了起来,看着炉子里不时跳动的火苗,高高低低,像正在演奏的交响曲,干柴烈火,劈劈啪啪。
“你好”!一个陌生的声音打断了我我一回头,眼睛亮了……她叫大姚,美女,瘦瘦高高,长头发,戴了鸭舌帽,咧开的嘴露出整齐的牙齿,很欧范,很自然!对于这类毫不掩饰的露齿咧嘴笑的男人和女人,我都能秒生好感,尤其是大嘴,总能给我坦然又诚恳的感觉。
不记得我们聊了多久,只记得很轻松也很开心,而关于家的主题,她只丢了一句话:只要是美的东西,我都能接受。然后就点了烟!烟头的青烟飘进火炉,加入了交响曲。
【Chapter2】
他叫阿信,是大姚的准老公,高个,帽子,双手放裤兜,文青一位。
阿信说话很轻,话不多,用他的话说:只要大姚喜欢,我负责跑腿就是了。
10 月,他们将结为连理。在这之前,他们有很严格的分工,阿信负责新房,大姚负责婚礼。
【Chapter3】
是的,什么也不说,让自己站在我面前,然后吐出这要命的几个字,“只要美的东西,我都能接受!”真是字字若金!相比大多数客户一踏厚厚的文字资料,大姚的这几个字简直是精简到了极致,同是设计师,恐怕要么会崩溃,要么很欢喜。而我,是欢喜兼淡淡忧伤。欢喜的是,自由发挥空间大,忧伤的是,对于这对即将进入婚姻生活的 90 后,我不仅要负责房子的美貌,还要负责如过来人般的实用建议。而这实用不是客户提出来要什么,而是我告诉他们应该要什么?两者不同的是,前者满足即可,后者是基于我的生活经验,与使用者难免有习惯上的冲突。不管啦,大姚这个单子我接了,因为我身上的每个细胞都在叫嚣着我想去做一个符合大姚气质的空间,因为她是如此独一无二。阔腿裤,时而又是酷酷的帽子配上大号夹克与牛仔短裤,牵一只气球,神气活现,不变的是,她永远都在直接痛快的表达着自己的内心,如此千变万化,却毫不凌乱,反倒是由此诞生出她自己的一套气候。独立而快活!我试图想为大姚找一个可以表达她的美的元素,从而成为她新房设计的主导核心,结果却发现如此之难。我慢慢回忆着我们的谈话,她多次提到会把好看的丝巾和有意义的包装袋装裱起来当装饰,这个很有个人情感色彩的点让我印象很深,构思之前,脑海里一直有一幅漂亮丝巾的画面飘来飘去。一天,和朋友聊康定斯基,这幅叫《构成 8 号》的作品让我眼前一亮,它的冲击力在我大脑里爆炸开来,重组,切割,反射这些词语撞击着我,如果说里希特听约翰凯奇的音乐创造出了他的刮插系列的作品是出于感同身受,那么这样的体会同样受用于我看到这幅“构成 8 号”创造出的大姚的家。很快,我便由它生出了我的平面划分。一幅很棒的平面构成。康定斯基的《构成八号》原作
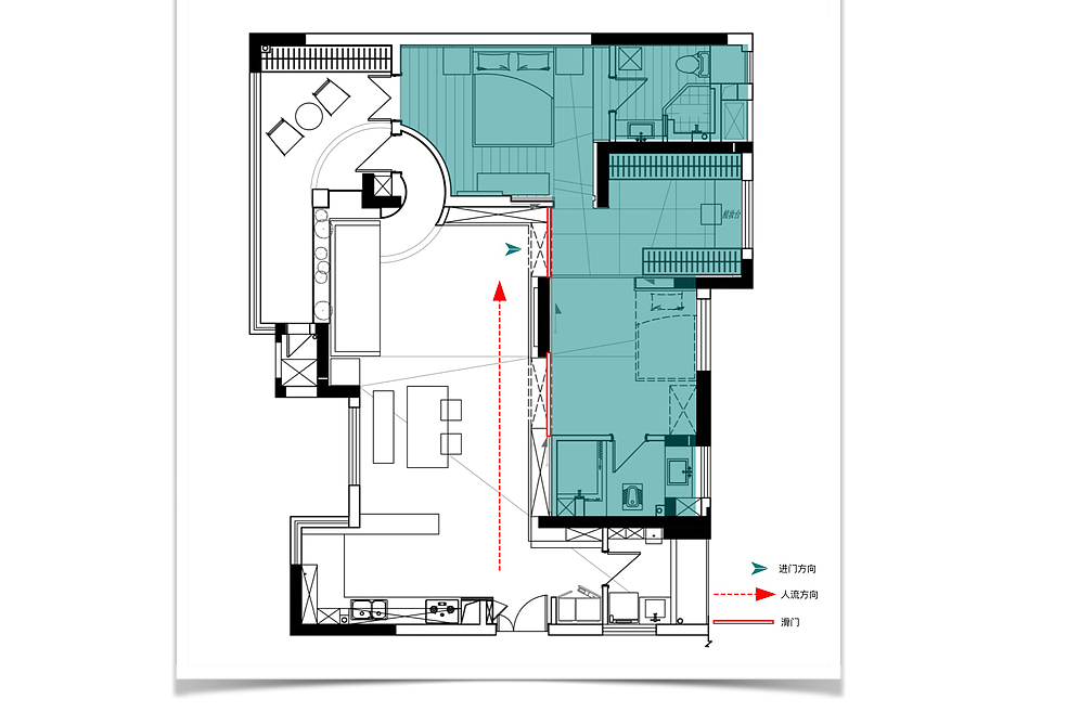
【设计说明】本案为普通的三室一厅的住房,东南朝向,对面采光,有很好的通风和采光条件。由于居住者是即将成家的年轻夫妇,他们的生活面临着各种可能。如二人世界,各自独立,朋友来访,更或者几年以后的小孩问题等,如只是做简单的三室划分,就像生活被宣布了终生缓刑般的悲哀。那辛苦买来的房子二分之一都会被锁在门背后,剩下的二分之一,拿来急促着用。我们不要做这样的“傻子”。整个案子以地面:木地板,石材,水泥面,花砖等不同材质的平面构成为主线,通过几何图形的切割,重组,以及延伸来模糊房间的界限,从而达到满足客户的不同时期不同需求,犹如魔方般自由组合。变成一室,两室,甚至三室。让空间充满期待和想象。增加了对美的解读,这都来源业主的气质,让这份美多了质感。【原始结构图】
【改动后的平面布置图】
【地面构成】
【材质填充】加入材质后的地面构成全面又具体地表达了业主的审美观和性格的多面性木地板,代表温暖石材,代表华丽水泥面,代表真实水泥花砖,代表精致构成对美的诠释。
平面空间分析篇
空间的多种可能性,秘密在于藏在柜子背后的滑门
【一室】目前状态,朋友聚会,空间通透,宽敞
【一室套房】朋友偶尔留宿
【一室大套房】需要书房时
【两室】未来有宝宝后
【三室】有了宝宝后客人偶尔留宿
立面空间手绘篇
【门厅】墨绿色的书架源于客户爱看书,爱搜集小物的需求,颜色来源于前期设计师对于业主的色彩测试。整个书架贯穿始终,将公区和私区巧妙分离。
入户门厅鞋柜的功能也藏其中,不知不觉包揽了收纳功能,还设计了挂衣服的位置和座位,让回家和出门都从容不迫,下面镂空处是懒人准备的置鞋处。
右侧是生活阳台的入口,地面材质延续到你看得到看不到的地方。
【厨房】一台好戏除了突出主角的性格特点,像厨房这样跟随在客厅这个主角旁的一线配角就要又精彩还不喧兵夺主。
厨房整体用了最干净的白,不夺目,但精致得体。
完美衬托客厅,与客厅形成虚实对比,增加疏密变化。
镜片材质的加入和吧台的造型是为了破掉厨房体积上的“实”和“整”同时与地面的构成交相辉映,就像后台的独白,说的是前台的事。
【客厅】书架的大跨度存在与地面的大行其道形成静与动的对比,加大空间的张力。
书架的填充正是业主生活的真实写照,所谓展出的是品味,隐藏起来的是智慧。
【衣帽间】衣帽间的设计最讨巧,在延续了主题材质的石材和木地板的基础上,加入了镜面的元素。增加梦幻感,扩大空间延伸。每个女生心中都有个大衣帽间的梦因灵感来自于魔方,百变。同时与卧室相连,巧妙又好玩。
【主卧】木地板从地面延伸到墙上,以一段突出 100mm 藏灯带的墙体结束,加上没有主灯,利用墙上的灯带将人的视觉往下压,将注意力集中在床上,最有归属感的地方。让卧室安静得只剩下睡个美美的觉。卧室到卫生间的地面做了抬高,内置灯带,增加仪式感和空间区分。
【主卫】因干湿分区严格,地面用了木地板,光脚进卫生间再也不怕冰冷了!淋浴区延续了客厅的绿,马桶后面的飘窗台放着大姚收藏的画和刚种下了绿叶!
空间实景篇
整个案子在我们和阿信的努力下,终于得到了落地。期间,对于毫无装修经验的阿信来说是一件既幸福又郁闷的苦差事,他也许怎么都想不到,自己平生第一次装修房子,为自己,为大姚,为了他怀揣着各种幸福的家,是如此来之不易。再一次为他的小家赋予了如此不同的意义。这远远比一句:我爱你,更厚重和永久!
10 月底,在海南。他们终于告别单身,远在重庆的我,送了他们一句狠狠的祝福!
2017 年 6 月,当我再次走入这个家的时候,我看到了这样的画面:阿信在厨房做着刚琢磨出来的高颜值臊子面,大姚坐在吧台前,叼了一根烟,看着阿信,眼里带着笑。洗衣机里面的衣服即将洗完,那是大姚的任务,原来,他们家都是分工合作。哈哈!
设计师续言
当方案在现实平地而起的时候,我相信不只是我,所有的参与者看到最后的呈现都是很开心和很有成就感的吧!
整个空间并没有去急急地填充满,现在不需要餐桌,就让餐厅空着吧,等需要了,再添置。一切物件以需要为原则,让家通透点,留着喘气。
日子还长着呢,每一次的填充,都是居住者对生命的尊重!
每次在敲键盘之前,我总是血脉喷张,手脚发麻。
努力平静后是感恩,真的很庆幸我能在每个经手的案子都能享受如电击般的感觉。
很美妙!
本文为【朵墨设计】版权所有
欢迎转发朋友圈
客服
消息
收藏
下载
最近












































